知末
知末
创作上传
VIP
收藏下载
登录 | 注册有礼

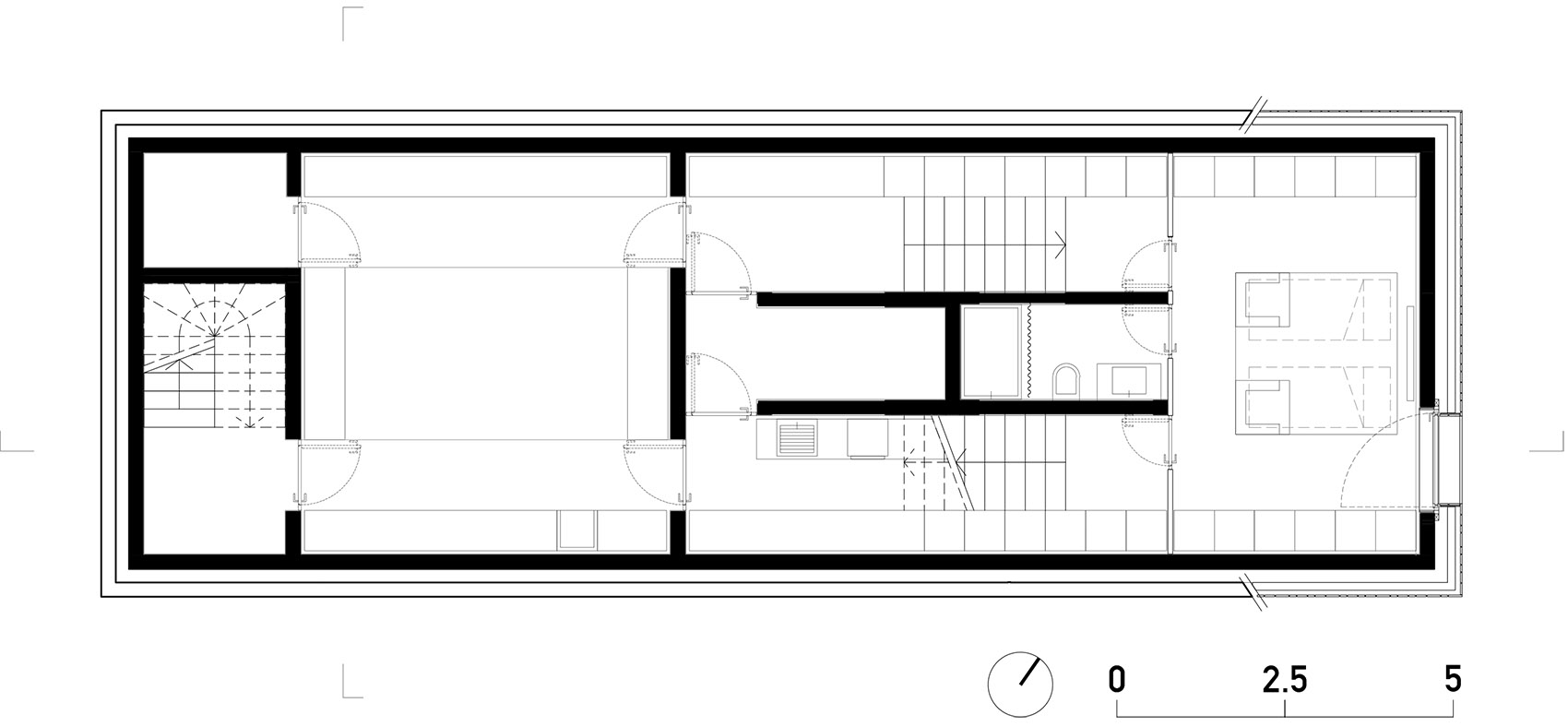
斯洛文尼亚住宅

2017/04/07 14:21:00
查看完整案例
微信扫一扫
收藏
下载
项目的设计遵循当地建筑规范,尊重周边传统建筑形态和历史文脉,参考了当地住宅标志性的三角形屋顶,并充分考量了建筑的体量和材料因素。同时,烟囱住宅还体现了以使用者的需求为本的住宅改造方式。
斯洛文尼亚住宅-1
斯洛文尼亚住宅-2
斯洛文尼亚住宅-3
斯洛文尼亚住宅-4
斯洛文尼亚住宅-5
斯洛文尼亚住宅-6
斯洛文尼亚住宅-7
斯洛文尼亚住宅-8
斯洛文尼亚住宅-9
斯洛文尼亚住宅-10
斯洛文尼亚住宅-11
斯洛文尼亚住宅-12
斯洛文尼亚住宅-13
斯洛文尼亚住宅-14
斯洛文尼亚住宅-15
斯洛文尼亚住宅-16
斯洛文尼亚住宅-17
斯洛文尼亚住宅-18
斯洛文尼亚住宅-19
斯洛文尼亚住宅-20
斯洛文尼亚住宅-21
斯洛文尼亚住宅-22
斯洛文尼亚住宅-23
斯洛文尼亚住宅-24
斯洛文尼亚住宅-25
南京喵熊网络科技有限公司 苏ICP备18050492号-4知末 © 2018—2020 . All photos and trademark graphics are copyrighted by their owners.增值电信业务经营许可证(ICP)苏B2-20201444苏公网安备 32011302321234号
客服
消息
收藏
下载
最近