查看完整案例

收藏

下载
项目名称:内蒙古森塔纳艺术博物馆
位置:内蒙古 包头
设计公司:内蒙古大建筑设计有限公司
她天生独来独往。由内蒙古工业大学教授张鹏举设计的Scentana美术馆位于呼和浩特以东的南北河如意河以东。其灰黑色的外观和“奇特”的形状并没有吸引许多繁忙的行人和城市客人。似乎她始终存在于一个看不见的理想王国中。自出生以来,寂寞似乎一直是她的命运。但是,作为城市的见证人,她准备去看这座城市,看着这个动荡不安的世界。以相对温和的态度进入环境是一条与周围建筑类型设计不同的定律。在材料方面,它应用了合成且内向的灰黑色花岗岩,并通过覆盖停车场设置了倾斜的草坪,从而使建筑形态在沿路的视点上不会显得过于突兀和明显。在消除了建筑给城市带来的不确定性和张力之后,观众的注意力集中在建筑物外部环境所创造的积极空间上。
通过观看者来简化高级建筑的室外入口,从而增加了围墙,使坡道和楼梯紧密移动,从而净化了内部体验的空间,这与从一楼到一般的建筑实践不同,通过隐含的方式体验建筑的变化,从高低不平的城市街道到大气渲染,将体验的空间变化变成纯粹的内省。此外,基于这种和平的展开方式,建筑物与外部环境之间的“分隔”使建筑物具有了从一个地方移动到另一个地方的沉思氛围。同时,强烈的仪式感使观看者具有从精神到宁静的内在动机。同时,建筑物的内部和外部,明亮与黑暗,封闭与开放的对比形成了鲜明的对比,使观看者感受到了情感并经历了变化,并内省地同意通过阅读这种变化作为特定主题对象在一个认知过程中,即从自身到外部世界,然后从外部世界回到自己的循环过程。经验是空间设计的基础,而自省是结果。建筑物与观看者之间的交流成为影响观看者理解的重要因素。通过优化建筑功能和净化建筑物的外部空间,建筑形式和形状设计可以在视觉上增强建筑规模,使其在与周围建筑物不同的外部空间中更具纪念性和仪式性。
纯形式也为净化观看者的思想提供了物质基础。展馆空间高度差异的变化,使建筑空间的内部不仅不断变化,而且还保证了空间的内部身份,使观众在按顺序移动时可以实现精神与空间的融合。展厅的 在相互连接的四个展厅中,高度差用于反映变化并统一表达变化。同时,观众的内心感受,以及展馆高度差异的变化,以一种重生的方式回到了四个季节展厅的尽头。这里的空间建设达到了高潮。在院子的加工上,西方园林的加工不同于传统的院子围成的院子,四合院被墙壁和房屋包围,围绕着两层形式的空间连接高大的院子而不是建筑空间的冗余,或者只是没有顶部的建筑物,但将其引入建筑物的外层空间内部,保持建筑物内外逻辑和秩序的呼应,并丰富了建筑物的内容,以增强对建筑空间的认知。意外的,封闭的,开放的,浮躁的和安静的空间体验之间的对比,揭示了“千里风送秋雁,可以陶醉高楼大厦”的悠然自在的心情,其作用与陶元明相同'。
内蒙古森塔纳艺术博物馆外部实景图
内蒙古森塔纳艺术博物馆外部实景图
内蒙古森塔纳艺术博物馆内部实景图
内蒙古森塔纳艺术博物馆内部实景图
内蒙古森塔纳艺术博物馆内部实景图
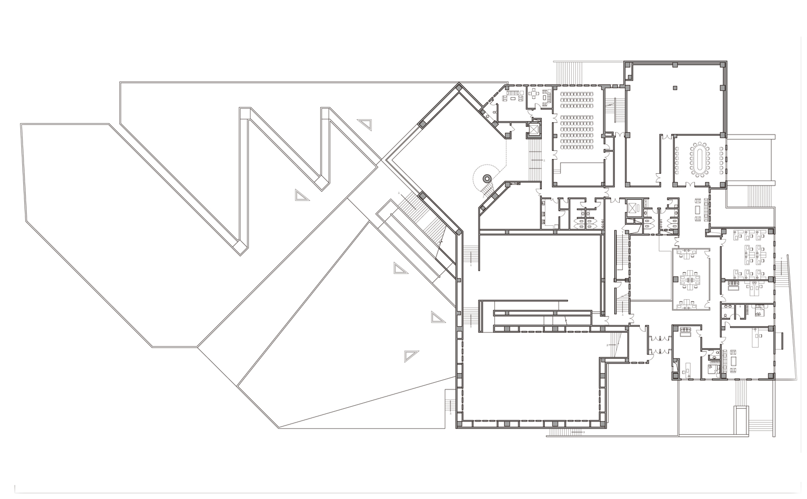
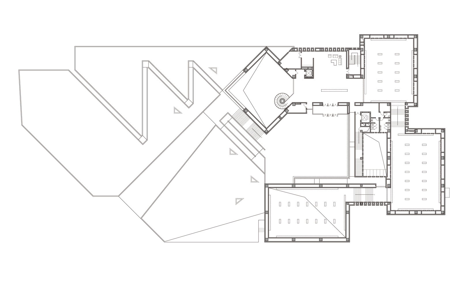
内蒙古森塔纳艺术博物馆平面图
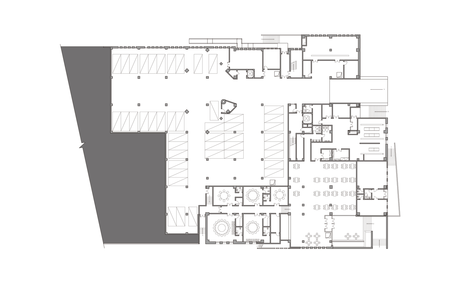
内蒙古森塔纳艺术博物馆平面图
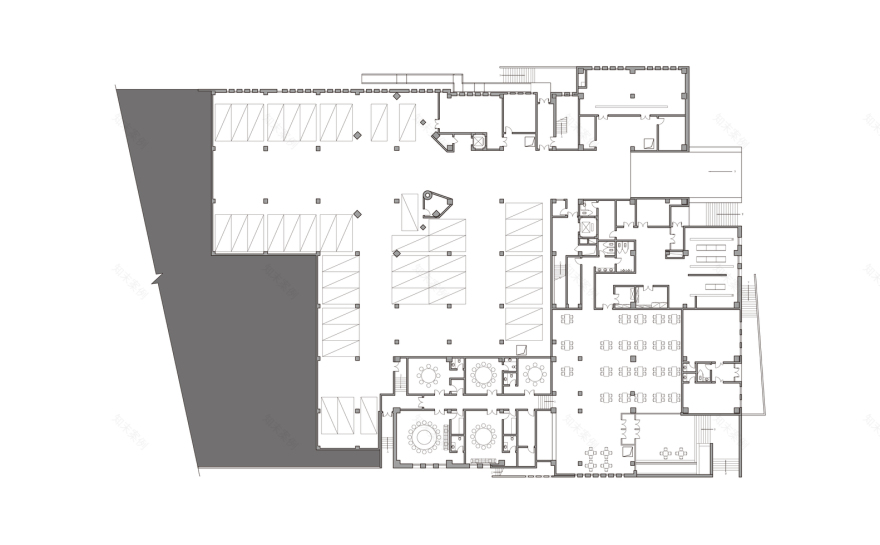
内蒙古森塔纳艺术博物馆平面图
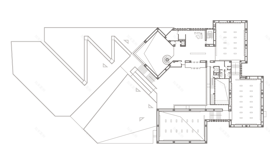
内蒙古森塔纳艺术博物馆平面图
内蒙古森塔纳艺术博物馆立面图
内蒙古森塔纳艺术博物馆立面图
内蒙古森塔纳艺术博物馆剖面图
内蒙古森塔纳艺术博物馆剖面图
客服
消息
收藏
下载
最近
















