查看完整案例

收藏

下载
项目名称:瑞士新校舍和体育馆
位置:瑞士
设计公司:Rykart建筑股份公司
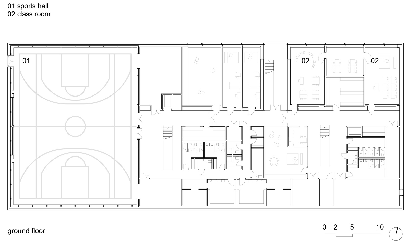
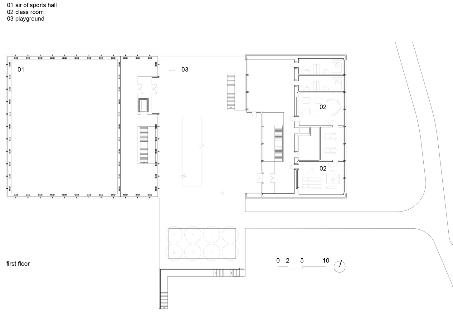
PZHS(听力和语言教学中心)的校园位于村庄外围的一个历史建筑群中。历史上成长起来的城堡和教堂区是一个引人注目的,暴露在一个小山谷边缘的设施。此外,该地区拥有一个宽敞的校园作为另一个特色和学校的伟大品质。现有的设施将扩建为一个多功能体育馆和四个教室。新建筑位于绿色山谷的边缘。风景保持自由,地形保持不变。建筑从地形中发展出来,因此高度显著降低。因此,城堡和教堂区的轮廓仍然是免费的。这座建筑在山坡上只有一层,而在山谷边上有两层。一个广场在体量的中间伸展开来,作为一个校园。该建筑可以通过这个广场从地面的斜坡进入。通过滨海艺术中心的入口是定制的,以举办有大量游客的活动。光线充足的门厅让人们可以看到下层的体育馆。
两层通过一个宽敞的楼梯相连。体育馆可以分开,因此可以通过两个独立的入口进入。更衣室和储藏室也位于底层。楼上的两个教室面对着绿色的山谷,而底层的教室可以看到果园。每个班级都有一个集体活动室。这些可以灵活使用,并允许游戏、学习和治疗并行运行。实体化仅限于混凝土、玻璃和木材。建筑简洁明了的几何形状因材料选择的减少而得到加强。由于是用混凝土建造的,这座建筑可以嵌入到地形中。这个混凝土体的内部衬有木材。正在建造温暖、适合儿童的房间,音响效果特别好。透过宽大的窗户,可以看到大厅的整体结构。该项目作为试点项目实施,采用BIM工作方法和数字建筑模型。第二步,修缮学校的历史建筑。
瑞士新校舍和体育馆外部实景图
瑞士新校舍和体育馆外部实景图
瑞士新校舍和体育馆外部实景图
瑞士新校舍和体育馆外部实景图
瑞士新校舍和体育馆内部实景图
瑞士新校舍和体育馆内部实景图
瑞士新校舍和体育馆内部实景图
瑞士新校舍和体育馆内部实景图
瑞士新校舍和体育馆内部实景图
瑞士新校舍和体育馆内部实景图
瑞士新校舍和体育馆内部实景图
瑞士新校舍和体育馆内部实景图
瑞士新校舍和体育馆内部实景图
瑞士新校舍和体育馆内部实景图
瑞士新校舍和体育馆平面图
瑞士新校舍和体育馆平面图
瑞士新校舍和体育馆平面图
瑞士新校舍和体育馆剖面图
瑞士新校舍和体育馆立面图
客服
消息
收藏
下载
最近






















