查看完整案例

收藏

下载
项目名称:土耳其 Izmir游泳馆
位置:土耳其
设计公司:Notmimarlik
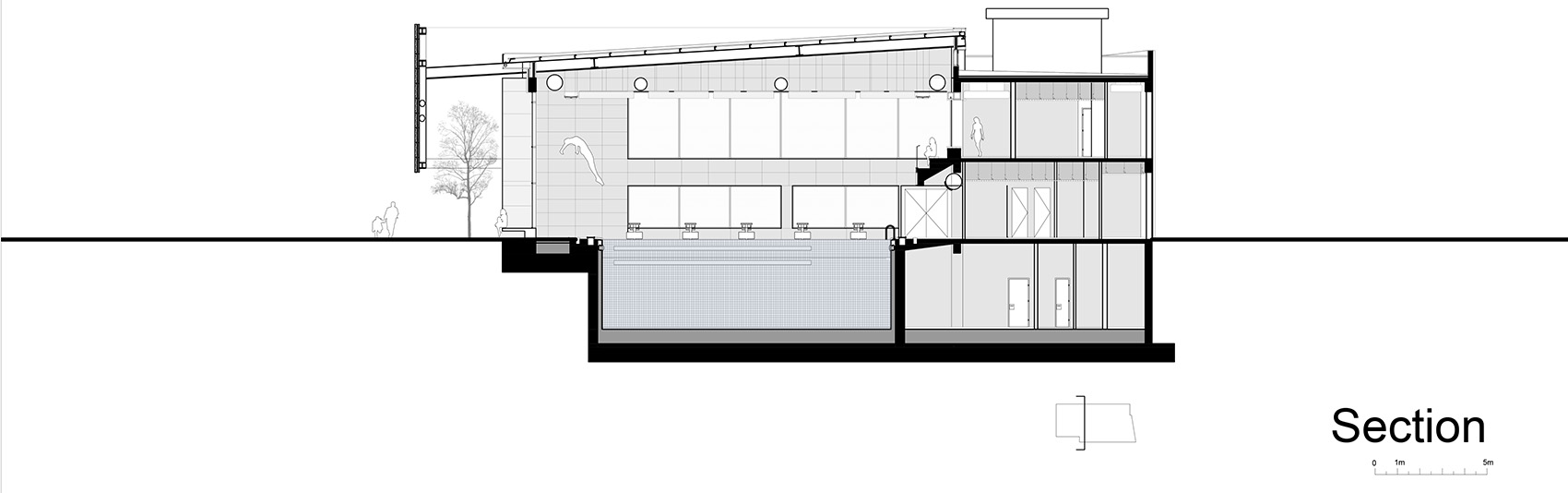
市民可以通过自行车、私家车或公共交通工具到达游泳馆。由于其重要的地理位置,每日经过建筑前的人流量相当大,因此,设计旨在以建筑吸引人们的关注与好奇心,激起人们对水上运动的兴趣,最终达到鼓励人们保持日常运动习惯的目的。建筑内设有一座4米深的半奥运会标准泳池,可容纳200名观众,此外,还提供了各种水上运动课程,如:水下橄榄球和游泳等。建筑还设有体育馆分区,以满足运动员的需要。设计团队认为保证建筑的视觉通透性是非常有意义的,这种设计能够让人们能够透过建筑的外壳看到周围的环境,同时也能够将建筑内部的场景呈现在路人眼前。在某种意义上,游泳馆半透明的外壳既起到了围合建筑空间又起到了保护建筑物内使用者的作用。该建筑外壳采用了对比鲜明的编织手法建造,尽管它看起来十分完整,但实际上则是由成千上万个小碎片组成的。从外观上看,玻璃石材外壳似乎有些沉重,但悬挂式的设计却使外壳结构漂浮于地面之上,进而抵消了沉重感。实体建筑外壳,由于采用了玻璃石材质而变得轻盈透明。
设计的首要目标便是利用外壳渗透进建筑内部以及反射出来的光线,营造出灵活多变令人难忘的光影氛围。建筑外壳上缝隙的位置、大小和随机性,以及从外壳渗透到室内的光线产生的光影游戏,共同营造出建筑的独特体验。废料的回收与再利用是本项目设计中最具价值的部分之一,且该策略在美学和实用功能方面都具有不俗的表现。填满玻璃石的半透明立面起到遮挡外界视线保证室内隐私的作用,同时允许自然光线进入室内场馆之中。另一方面,外壳本身就达到了吸引路人的目的。在白天,半透明的建筑外壳过滤了光线,而在夜晚,人造照明反射在玻璃石上,均能够营造出独特的视觉体验。本项目独特的建筑外壳设计,证明了废弃材料中曾被人被忽视的巨大潜力,进而为建筑师提供了更加广泛的选择。除此之外,屋顶上的太阳能电池板也在一定程度上满足了建筑的能源需求。可以说,Izmir游泳馆既满足了当地市民对于水上运动设施的需求,同时也向大众呈现出一种极具创新性的设计方法。
土耳其 Izmir游泳馆外部实景图
土耳其 Izmir游泳馆外部实景图
土耳其 Izmir游泳馆外部实景图
土耳其 Izmir游泳馆外部实景图
土耳其 Izmir游泳馆外部实景图
土耳其 Izmir游泳馆外部实景图
土耳其 Izmir游泳馆外部实景图
土耳其 Izmir游泳馆外部实景图
土耳其 Izmir游泳馆外部实景图
土耳其 Izmir游泳馆内部实景图
土耳其 Izmir游泳馆内部实景图
土耳其 Izmir游泳馆平面图
土耳其 Izmir游泳馆立面图
土耳其 Izmir游泳馆剖面图
土耳其 Izmir游泳馆剖面图
土耳其 Izmir游泳馆剖面图
客服
消息
收藏
下载
最近



















