查看完整案例

收藏

下载
项目名称:西班牙安东尼奥·马丁运动场
位置:西班牙
设计公司:Cortesía de DIAZ DONCEL建筑师事务所
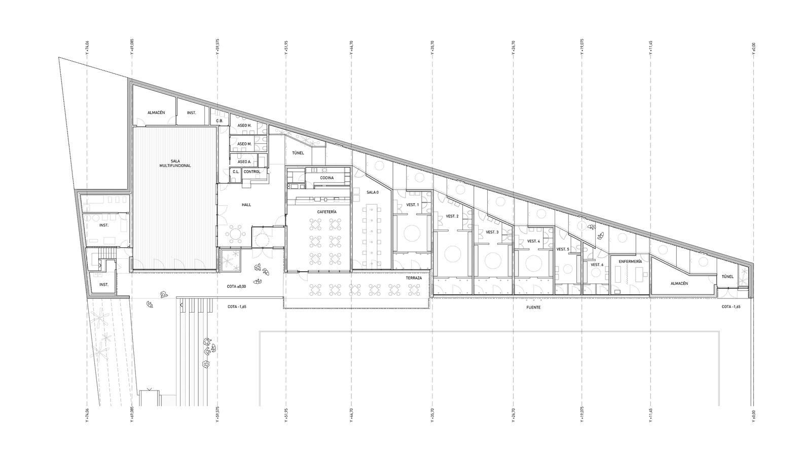
该项目是由托雷洛多内斯市议会组织的建筑竞赛的结果,该竞赛包括在一个陡坡和非常紧凑的场地内设计一个可以进行足球和橄榄球练习的场地,附楼配备更衣设施、咖啡厅和多功能室。足球橄榄球场地面积被调整到尽可能大,按照资源优化和环境整合的逻辑,在地块的中间层建立了水平平台。这使得平衡土方工程成为可能,利用挖掘的土地作为填充区。主楼占据了地块的上部,作为挖掘区域的围护结构。其屋顶花园还设有11个停车位。在内部,不同的空间在坡道上展开,通过更衣室隧道下降到球场的水平。公众也从街道通过斜坡进入,因此无需电梯即可完全进入该综合体。侧面看台充当建筑物的入口层和球场之间的过渡。主立面交替使用外露混凝土板、玻璃板和经过处理的木板条,除了具有防晒功能外,还有助于使整体形象更加统一和自然。地下建筑的概念,在屋顶上有很强的绝缘性,只有一个朝南的外墙,有利于减少能源需求。没有百叶窗的玻璃板从立面线向后退,在夏季通过悬臂屋顶投下的阴影保护它们免受不良热量的影响。所有空间都有自然采光,无论是通过立面的窗户还是屋顶的天窗。这些被动措施辅以支持热水生产的地热系统,以及非常有效的热回收通风和空调系统。
西班牙安东尼奥·马丁运动场外部实景图
西班牙安东尼奥·马丁运动场外部实景图
西班牙安东尼奥·马丁运动场外部实景图
西班牙安东尼奥·马丁运动场外部实景图
西班牙安东尼奥·马丁运动场外部实景图
西班牙安东尼奥·马丁运动场外部实景图
西班牙安东尼奥·马丁运动场外部实景图
西班牙安东尼奥·马丁运动场外部实景图
西班牙安东尼奥·马丁运动场外部实景图
西班牙安东尼奥·马丁运动场内部实景图
西班牙安东尼奥·马丁运动场内部实景图
西班牙安东尼奥·马丁运动场内部实景图
西班牙安东尼奥·马丁运动场内部实景图
西班牙安东尼奥·马丁运动场内部实景图
西班牙安东尼奥·马丁运动场内部实景图
西班牙安东尼奥·马丁运动场内部实景图
西班牙安东尼奥·马丁运动场内部实景图
西班牙安东尼奥·马丁运动场内部实景图
西班牙安东尼奥·马丁运动场平面图
西班牙安东尼奥·马丁运动场平面图
西班牙安东尼奥·马丁运动场平面图
西班牙安东尼奥·马丁运动场剖面图
西班牙安东尼奥·马丁运动场剖面图
西班牙安东尼奥·马丁运动场剖面图
西班牙安东尼奥·马丁运动场剖面图
西班牙安东尼奥·马丁运动场剖面图
西班牙安东尼奥·马丁运动场剖面图
西班牙安东尼奥·马丁运动场立面图
西班牙安东尼奥·马丁运动场立面图
客服
消息
收藏
下载
最近
































