查看完整案例

收藏

下载
项目名称:澳大利亚拉筹伯大学运动公园
位置:澳大利亚
设计公司:MJMA,沃伦、Mahoney
摄影师:德里克·斯塔威尔
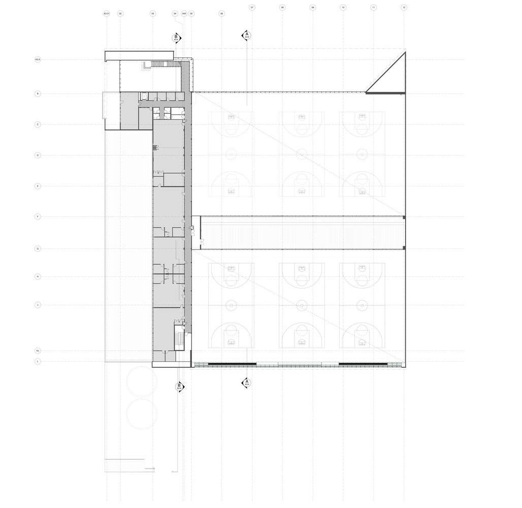
我们的“集中”策略将关键功能组合到一个充满活力的中心中,从而显着提高效率并将不同的用户聚集在一起。墨尔本拉筹伯大学拉筹伯大学运动公园,被设计为澳大利亚同类设施中的第一个。这个庞大的站点将学术研究和教学功能与世界一流的专业,州和社区俱乐部的比赛设施融为一体。我们通过竞争性招标获得了该项目。已经制定了高层总体规划,将建筑物分布在一个巨大地点的多个位置。我们要做的第一件事就是通过广泛的咨询和用户小组研讨会,与客户和利益相关者讨论该计划。基于这些发现,我们然后制定了一个非常不同的总体规划。我们的新设计是基于“集散”策略构建的,该策略将高性能体育科学设施,教学和研究空间以及室内游戏设施并置在一处主楼中。这样可以减少整个站点的建筑,并通过共享运营和服务显着提高效率。至关重要的是,它还使体育公园变成了一个忙碌而充满活力的地方。运动公园不仅是一个学术中心,还是一个社区目的地,白天和黑夜,工作日和周末都很活跃。关键概念是将最大的活动集中在一个重心上,这自然会吸引广泛的参与者。学生,运动员,学者,体育行政人员和社区俱乐部成员齐聚一堂,将他们的精力,才能和经验集中在一个充满活力的枢纽中。
该设计的核心是位于室内和室外游戏区域之间的透明教学“栏”,该栏向两侧敞开,并创建了一个将代码和功能链接在一起的学习区。最先进的体育科学技术(包括高级生理学和生物力学实验室)已无缝集成到设计中。室外足球场直接流入建筑物,其超大型门使运动分析力板的运动员可以将球踢出建筑物。通过使精英运动成为可见和可及的活动,并鼓励人们参与娱乐活动,中央枢纽鼓励自然碰撞和异花授粉,带来发现和灵感。该枢纽尽可能靠近大学主校区,具有视觉和物理连接,可最大程度地提高可及性和参与度。它的前庭与主要的公共交通交汇处(大多数学生的抵达地点)对齐,并直接链接到校园的社交中心集市。总体规划允许随着时间的推移扩展设施和体育规则。该计划旨在限制中断和未来的资本支出,并确保可以将新增内容与当前设施有效集成。设计工作空间时会故意过剩,以在将来开拓潜在的转租机会。该项目得益于我们与多伦多同事MJMA的合作,MJMA是我们应邀合作设计和总体规划的国际体育建筑专家。
澳大利亚拉筹伯大学运动公园外部实景图
澳大利亚拉筹伯大学运动公园外部实景图
澳大利亚拉筹伯大学运动公园外部实景图
澳大利亚拉筹伯大学运动公园外部实景图
澳大利亚拉筹伯大学运动公园外部实景图
澳大利亚拉筹伯大学运动公园外部实景图
澳大利亚拉筹伯大学运动公园外部实景图
澳大利亚拉筹伯大学运动公园外部实景图
澳大利亚拉筹伯大学运动公园外部实景图
澳大利亚拉筹伯大学运动公园外部实景图
澳大利亚拉筹伯大学运动公园外部实景图
澳大利亚拉筹伯大学运动公园外部实景图
澳大利亚拉筹伯大学运动公园外部实景图
澳大利亚拉筹伯大学运动公园外部实景图
澳大利亚拉筹伯大学运动公园外部实景图
澳大利亚拉筹伯大学运动公园内部实景图
澳大利亚拉筹伯大学运动公园内部实景图
澳大利亚拉筹伯大学运动公园内部实景图
澳大利亚拉筹伯大学运动公园内部实景图
澳大利亚拉筹伯大学运动公园平面图
澳大利亚拉筹伯大学运动公园平面图
澳大利亚拉筹伯大学运动公园平面图
澳大利亚拉筹伯大学运动公园立面图
客服
消息
收藏
下载
最近


























