查看完整案例


收藏

下载
项目坐落于乌得勒支科技园内,是Genmab生物技术公司的全新科研大楼。Genmab公司在在哥本哈根和新泽西州普林斯顿均设有分支机构,本项目为该公司的办公总部,由cepezed事务所建筑部与室内设计部门联合完成。项目的设计理念基于Genmab开放的公司文化,以及公司内外的紧密互动。新建筑内部采光充足,具有极高的生态可持续性,为员工与访客提供了舒适健康的参观体验,以及鼓舞人心的工作氛围。
Recently the opening of the new premises of biotech company Genmab took place at the Science Park Utrecht. The new head office of Genmab, which has branches in Copenhagen and Princeton – New Jersey, is an integral design of cepezed and cepezed interior. The new building has been designed on the basis of an open work culture and intensive interaction, also with external parties. With a high sustainability score and ample daylighting, the new building offers a comfortable, healthy and inspiring (work) environment for employees and visitors.
▼项目外立面,appearance of the project © cepezed | Lucas van der Wee
项目位于乌得勒支科技园的主要通道上,风格简约现代,设计完善且细致,十分引人注目。出于节能的考虑,建筑体量尽可能地紧凑。错位的设置,使办公楼的两翼更充分地利用了场地的条件。建筑立面采用了竖向的设计语言,封闭的铝板与通透的玻璃幕墙形成虚实对比。玻璃幕墙的结构框架均隐藏在铝板后,使得整个立面效果干净流畅。
The new Genmab is a striking, cleanly styled and detailed building located directly on the main access road of the Utrecht Science Park. The building is as compact as possible. The alignment of the two bays contributes to a good fit with the location. The bay façades are vertically articulated, and here the frames of the glass components are concealed behind the aluminum external finish of the closed elements.
▼铝板与玻璃幕墙形成虚实对比,aluminum contrast with glass © cepezed | Lucas van der Wee
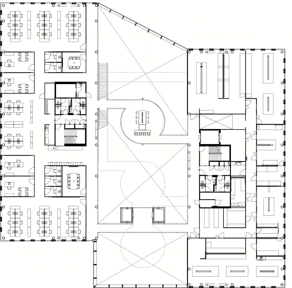
科研大楼功能包括办公室、实验室以及完备的配套设施,如会议中心、礼堂、科学咖啡馆和餐厅等。建筑采用了开放式的大跨度结构,开敞的室内空间给人以畅通无阻的视觉体验。两个错位的五层办公楼组成项目的主体,中央设置了四层通高的中庭。停车场则位于地下,占据了整个场地的面积。
The program comprises offices, laboratories and an extensive range of supporting functions such as a meeting centre, auditorium, science café and restaurant. The building has an open structure with large spans and long sight lines. Above ground, it consists of two five-story bays positioned out of alignment with each other, and an atrium in between. Underground there is a parking garage that takes up the entire footprint.
▼剖面图,section © cepezed
Genmab是一家国际运营的生物技术公司,主要从事癌症抗体的开发与研究工作。在过去的几年里,公司逐渐发展壮大,对办公场地的需求也相应增加。该公司始创于丹麦,北欧的血统使其对设计的要求精益求精。此外,新总部的设立,对增加公司知名度,促进员工互动,以及优化外部合作来说,都是一个绝佳的机会。在此情况下,cepezed事务所承此重任,致力于将新科研大楼打造成Genmab的名片,以吸引顶尖研究人员。
Genmab is an internationally operating biotech company that develops therapeutic antibodies for the treatment of cancer. Over the last years, the company has grown substantially, leading to the need for new premises. Its Scandinavian origins called for a special focus on design. In addition, the new-build has been seized as an opportunity to give the firm more visibility, to increase interaction between the employees and to collaborate more effectively with external partners. The building was also intended to become a calling card to attract top researchers. cepezed and cepezedinterior were responsible for the design.
▼位于首层的Genmab公司前台接待空间,reception of the Genmab © cepezed | Lucas van der Wee
项目二层到五层的中央,为一个通高的带有广场性质的中庭。
The floor slab of the atrium is situated on the first floor and has the character of a plaza.
▼开敞明亮的中庭,the atrium has completely transparent façades with large open space © cepezed | Lucas van der Wee
▼由走廊看中庭,viewing the atrium from the corridor © cepezed | Lucas van der Wee
▼俯瞰中庭的休闲空间,viewing leisure area on the atrium from the top © cepezed | Lucas van der Wee
除此之外,建筑师还在中庭空间中设置了一系列直径超过八米的圆形平台。这些平台以阶梯的形式,逐层上升,宛如漂浮在空中的岛屿。平台上设有会议、讨论等灵活的工作场所。其中一个平台“岛”,被热弯玻璃幕墙围合,形成封闭的会议室,并配备有一张带有发光的公司logo的大型会议桌,以及一套定制的带有空调系统与展示功能的现代化设备。
Special elements in the atrium are the large islands, more than eight meters in diameter, which are positioned stepwise and seem to float freely in the space. On the islands there are spots for meeting, discussion and flexible working. One of them functions as a board room and is equipped with hot bent glass walls, a large table with illuminated company logo and a custom-made piece of furniture containing all the climate facilities and the most modern presentation equipment.
▼平台上设有会议、讨论等灵活的工作场所,on the islands there are spots for meeting, discussion and flexible working © cepezed | Lucas van der Wee
▼这些平台以阶梯的形式,逐层上升,宛如漂浮在空中的岛屿,large islands are positioned stepwise and seem to float freely in the space© cepezed | Lucas van der Wee
▼其中一个平台“岛”,被热弯玻璃幕墙围合,形成封闭的会议室,one of them functions as a board room and is equipped with hot bent glass walls © cepezed | Lucas van der Wee
▼会议室配备有定制的桌椅与现代化设备,board room is equipped with custom-made table and modern equipment © cepezed | Lucas van der Wee
其外立面完全透明,人们从室外便可以直观地看到建筑内部巨大的开放空间,项目因此成为周围环境中的亮点。中庭的周围还设置了其他辅助功能,例如咖啡吧以及开放式厨房。
The atrium has completely transparent façades, so that the large open space is prominently in view from the outside and makes a significant contribution to how the building appears to the surroundings. Surrounding this are other supporting functions such as a coffee bar and an open kitchen with front cooking.
▼中庭的外立面完全透明,the atrium has completely transparent façades © cepezed | Lucas van der Wee
▼中庭的周围还设置了其他辅助功能,surrounding this are other supporting functions © cepezed | Lucas van der Wee
▼中庭的旋转楼梯,spiral staircase in the atrium © cepezed | Lucas van der Wee
▼旋转楼梯细部,detail of the spiral staircase © cepezed | Lucas van der Wee
配套设施主要分布在项目的首层,如会议中心、礼堂、咖啡厅、健身房、自行车停放处、储藏室,以及垃圾处理室。
The facilities program with the meeting centre, auditorium and café, but also a gym, bicycle parking, storage areas and waste rooms, has been mainly housed on the ground floor.
▼位于首层的会议室,meeting room on the ground floor © cepezed | Lucas van der Wee
▼位于首层的咖啡厅,café on the ground floor © cepezed | Lucas van der Wee
项目的二层主要为办公空间,会议室紧邻中庭,而固定办公区则沿建筑的外立面排布。由三层到五层,中庭的两侧分别为办公区与实验区。相比于首层与二层,这三个楼层的层高更高,功能排布因此更加灵活,办公室与实验室可以相互转换。
In the office bay, the meeting spots are situated along the atrium while the fixed workspaces are mainly located along the façades. The upper three stories accommodate both offices and laboratories. Their gross height is higher, so that the program here can be flexible: offices can become labs and vice versa.
▼固定办公区沿建筑的外立面排布,fixed workspaces are mainly located along the façades © cepezed | Lucas van der Wee
▼办公区的咖啡吧与开放式厨房,café and open kitchen of the working area © cepezed | Lucas van der Wee
大量木材与其他天然材料的运用,使得整个室内风格轻盈,简约时尚。走廊与办公区采用了统一的木质地板与透明玻璃隔墙,在视觉上,将走廊空间扩宽。在可持续性方面,Genmab科研大楼获得了BREEAM优秀证书。
The interior is light, uncluttered and stylish, with a great deal of wood and other natural materials used. Corridors are optically widened by allowing their floor finish to continue into the transparent office spaces. In terms of sustainability, the new Genmab has the BREEAM Excellent certificate.
▼实验区位于三层至五层, laboratories on the second floor to fourth floor © cepezed | Lucas van der Wee
▼二层平面图,first floor plan © cepezed
▼三层平面图,second floor plan © cepezed
客服
消息
收藏
下载
最近




























