查看完整案例

收藏

下载
项目名称 | 伊顿公馆
项目地址 | 浙江嘉兴
设计面积 | 平层380㎡
室内设计 | 杭州辰佑设计
软装陈设 | 颜青软装
施工单位 | 梵品筑匠
主要材料 | 涂料:Novacolor诺瓦艺术涂料 水磨石:杭州瑞克瓷砖 全屋智能 : CLOWIRE克伦·威尔智能家居 全屋定制 : 博洛尼(海宁) 地板 : 德国汉诺地板(海宁) 卫浴:卡斯科、高仪(鸿鼎卫浴)
静雅里觅得自在的状态,空间被赋予开放、自由、豁达的性质。纹理与物料的碰撞打造出极简主义的空间,以艺术化陈列去回应深度诉求,也去真诚纯粹地回应“人、物、景、心”各自的空间承载以及此不同维度四者的内在关系与平衡。
视觉上的开阔,沉稳风雅的空间艺术形态。素色主色调衍生出纯粹且过目难忘的意境,以沙发为重心的生活形态渐次向外自由延伸,共同组合出丰富细腻的肌理层次,穿行与回溯间,满是生活哲意。
倾注自然塑型明净场域,从视觉享受至实用功能的构筑魅力,生活在一片随性轻盈的节奏下徐徐展开。白净赋以温度,墨色点睛赋力,亦追求艺术与功能的通融蕴意,以纯粹造境“无色”深意,自在状态游走于随性与随心之间。
慢煮清茶,细烹雪月,四方食事,一碗烟火人间。以墨色创造触感,隐匿在色彩尽头的色调,光、尘与水汽都弥漫其中,形成秩序美与层次感的视觉美学。餐厅不仅仅是柴米油盐的熏染,而是在被岁月浸润的发生和将发生的故事里,独属于个人的磁场正在形成。
融合一隅纯粹,以淡色构筑多元化的维度,延伸视觉效果的同时打破传统色群的压制,在空间中寻求微妙的平衡,以至达到和谐统一的视觉层次。视觉交汇的瞬间,隐逸宁静哲学应运而生,方寸之间,流动着可变的气息。
辟一隅静处的角落以寄闲情,在阔绰的自然光影下,与通透的格局形成对话,散发着无尽的韵味。而自在其中,清茶一盏,或闲书几页,每一刻的沉浸瞬间,即是可以保存起来的当下。
生活之味,如时光的纯酿,不动声色地营造浪漫和温度。空间选用的材料呈现出多样的质感和温度,试图强调不同的氛围和情绪,在明暗光线的作用下,每个空间都被赋予了其独有的特质。
在克制的立面中玩味肌理。细腻的材质搭配相辅,光影映照下的立体感,创造出丰富的视觉艺术享受,加上自然光的叠加变化,沉默与克制共融相生又极具趣味。
少了色觉的扰乱,延续干净、舒适的环境氛围,在不同的美学与机能平衡之中,透过光影虚实的比衬、材质平衡与意境的构造,找到了更加融合的处理方式,从而呈现治愈日常的生活场景,沉淀出一个使人内心安定的空间力量。
淡雅灰调,以自然光铺陈,内心安稳,悠然自在。至简,给空间增添了一份轻盈。一枝绿意点缀,一盏墨色吊灯与背景成趣,融入这温馨与雅致间,不用款款出彩,只需一笔点睛。
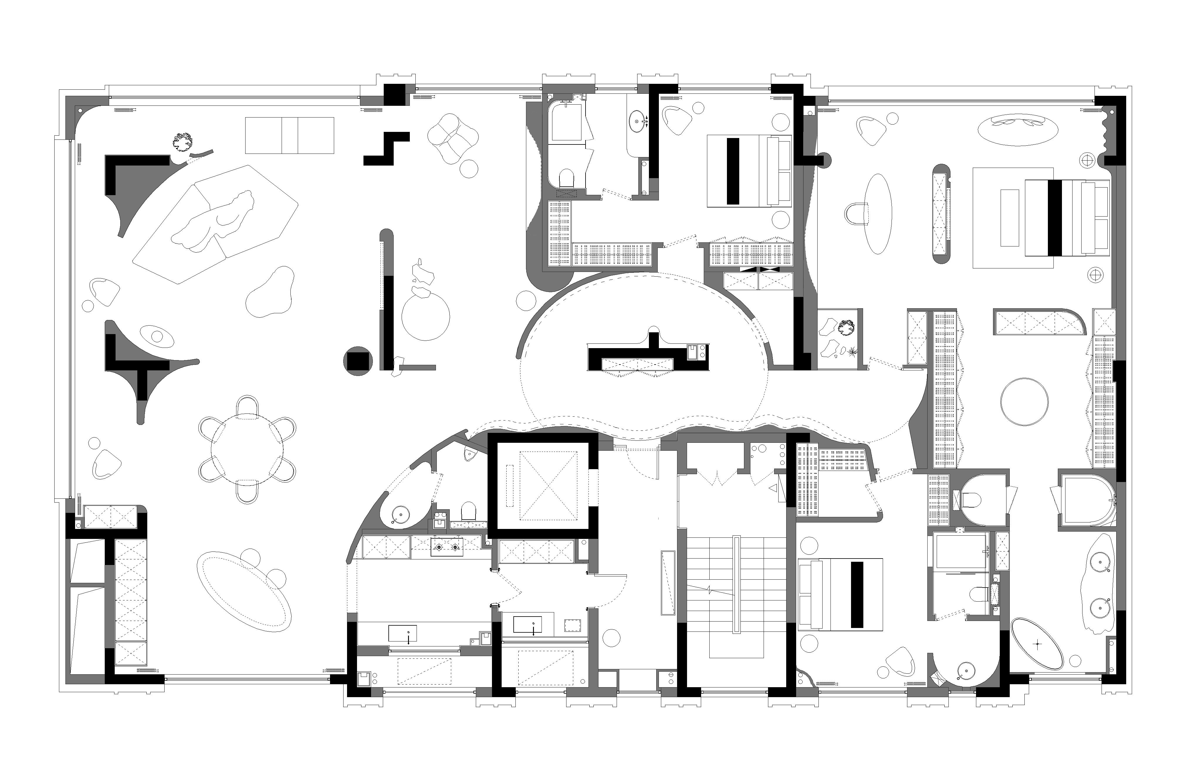
Floor plan
客服
消息
收藏
下载
最近



































