查看完整案例

收藏

下载
项目地点 ︱ 浙江杭州
项目名称 ︱ 璟宸府
全案设计 ︱ 辰佑设计
施工单位 ︱ 梵品筑匠
柔和而富有温度的调性,留白与木色的温婉细腻塑其空间的纯粹而文气。从材质肌理、线条平衡、功能延展,装饰的巧思俯拾皆是,明确到每一隅的,是对生活毫不将就的质感。
低饱和度的空间氛围最是浸润心灵,光影与线条勾勒出利落的空间,熹微般的日光透过纱帘,映衬在柔软的织物上,犹如静止的时光,悠然而又从容。将空间的自由与舒适娓娓道来
格局慢慢蕴开,开阔的客厅空间与兼有餐桌和岛台功能的餐厅,互通有无,一目了然的动线里是悉心度量过生活行走的精度。细节处的雕琢,材质的纹理,都指向居者的内心丰盈。
不同材质的碰撞,是诉说空间的语言。墨、白、灰独特的气质,简而不失质感,金属的质感和色彩与木质的温暖和质朴相互对比,黑色岩板的光泽和纹理则增添了一份深邃的艺术气质。
悬空的设计为楼梯增添了一份轻盈感和透明感,而玻璃扶手则使整个空间更显开阔和通透。暖灯的点缀为楼梯带来一份温暖和舒适感,注重细节和舒适性的体验的同时,呈现出一种高级而文艺的感觉。
镂空造型和柔和的暖光相结合,巧妙地利用了光线和材质,营造出一个通透而又舒适的氛围,同时将此处变成了一道艺术品。光线透过时投下的阴影和光斑,氤氲出独特而沉浸的场所,令人不自觉沉浸于空间的某一刻。
自成一方静谧天地,在表象的视觉之下,折射出空间的美学与视觉张力。木饰面的点缀让整个空间显得更为温暖和质感,同时也为空间注入了一份高雅和文艺的氛围。
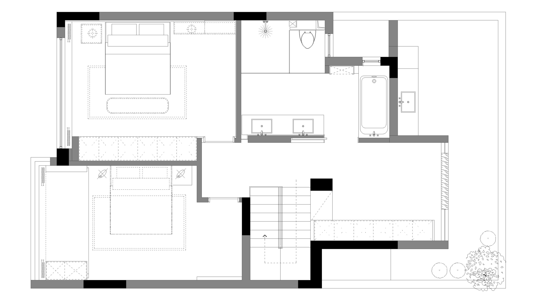
Floor plan
客服
消息
收藏
下载
最近























