查看完整案例

收藏

下载
形 色 安 澜 素 泊 境
意 气 微 琢 风 雅 颂
项目地点 ︱ 杭州滨江
项目类型 ︱ 办公展厅项目
硬装设计 ︱ 辰佑设计
软装设计 ︱ 颜青软装
施工单位 ︱ 梵品筑匠
形色之质,静若安澜。以一种柔和的方式浸润沉静、松弛的空间氛围,构建停留与沉浸的可能。侘寂之意塑其韵,至简之风立其格。
灵动的弧形与圆润的曲面元素在空间里错落叠加,优雅的视觉印象通过色调、肌理与形状,描绘 “裸
感“
美学
空间的素雅、质朴的自然特性,传达视觉空间的柔和与纯粹。
\
一器一皿,会有各不相同的元素散落在空间的某个转角,随着时间线里情节的生发,逐渐被感染上人情味,成为独家记忆的珍藏。
向内悦纳自我,在纯净的状态里出落得大方而沉敛,优雅而极具信赖。亦在一帧一帧静态的影像中,寻找美与功能的平衡。
以“融合”的姿态扭转整体观感,透过线性、体块等形式与功能场景的有序组合,巧妙承担共享、展览、座谈、休闲的复合功能。
居有颜骨,以优雅自持、以从容自若之姿,翘首未来。
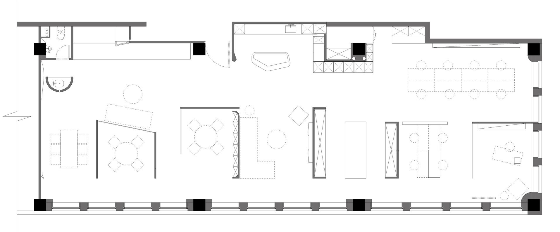
平面布置图
Floor plan
客服
消息
收藏
下载
最近

































