查看完整案例

收藏

下载
项目名称:印度孟买地铁
位置:印度
设计公司:Archohm
孟买都会区发展局也将开通首批几条地铁线路。这些车站由建筑实践工作室 Archohm 设计。孟买地铁站的设计考虑了各种关键细节,从提供整体外观的垂直百叶窗到提供急需的防雨和防晒的实际框架。地铁站的配色方案以其通勤系统为城市定位。最小的内饰和材料使“建筑”保持在通勤者的背景中。所有公用设施、灯光和管道都被精心隐藏,同时保持功能正常。已控制使用玻璃和铝以抵御海盐和雨水。最后但并非最不重要的一点是,横跨整个孟买的地铁柱和高架桥都标有清晰的彩色线条,这确实增加了孟买的视觉混乱,但作为导航标志。Noughts & Cross 工作室的 Andre J. Fanthome 巧妙地捕捉到了这一切。Studio Archohm 首席建筑师 Sourabh Gupta 说:“这是一个探索和表达设计力量的绝佳机会,而不是通常期望的单纯装饰。这个想法是构思一个前卫的系统,一套可以适应的部件并且仍然保持其身份完整。我们从挑选体验中的每一个痛点开始,以及在这个疯狂密集和紧凑的大都市形态中的车站形象。此后,我们通过清晰明了的架构解决方案系统地解决了这些问题中的每一个。在保持城市层面的美学同时在地方层面与地方和环境保持独特性是一项挑战。接入点、入口、艺术和图形将使每个空间看似相似的空间成为一个强大的地方,供站内通勤者和站外市民使用。”
印度孟买地铁外部实景图
印度孟买地铁外部实景图
印度孟买地铁外部实景图
印度孟买地铁外部实景图
印度孟买地铁外部实景图
印度孟买地铁外部实景图
印度孟买地铁外部实景图
印度孟买地铁外部实景图
印度孟买地铁外部实景图
印度孟买地铁外部实景图
印度孟买地铁外部实景图
印度孟买地铁外部实景图
印度孟买地铁外部实景图
印度孟买地铁外部实景图
印度孟买地铁外部实景图
印度孟买地铁外部实景图
印度孟买地铁外部实景图
印度孟买地铁外部实景图
印度孟买地铁外部实景图
印度孟买地铁局部实景图
印度孟买地铁立面图
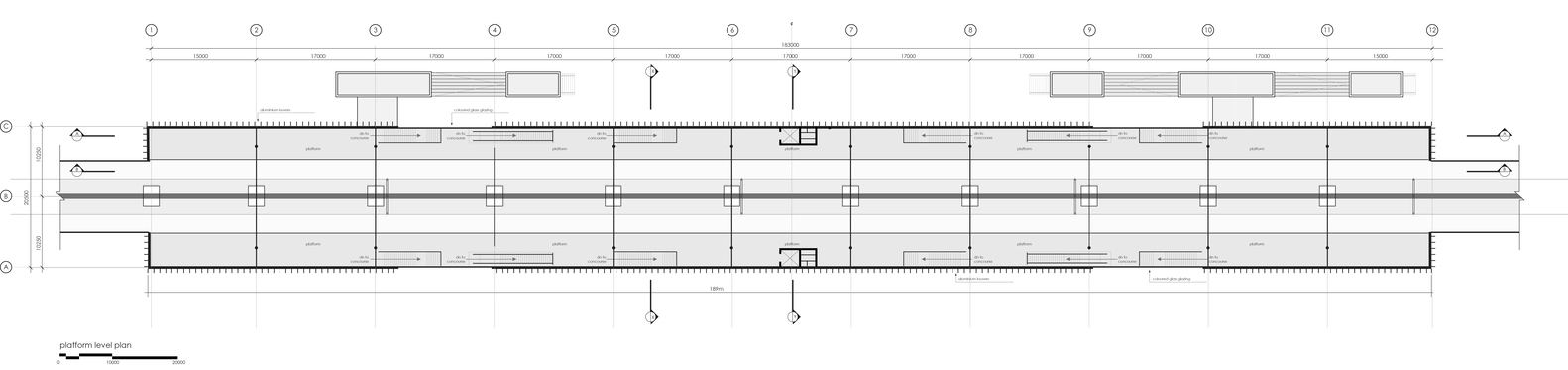
印度孟买地铁平面图
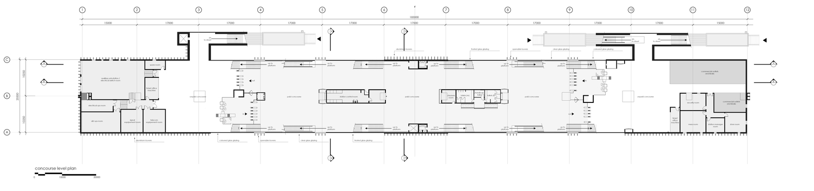
印度孟买地铁平面图
印度孟买地铁剖面图
印度孟买地铁剖面图
客服
消息
收藏
下载
最近




























