查看完整案例

收藏

下载
VMESHOU全新品牌形象店选址于北京三里屯SOHO商圈中的临街两层铺位,并力邀DOMANI东仓为其进行空间体验规划及室内设计,打造品牌在京的首个线下体验中心,同时也是面向合作伙伴的接待及交流场所。
场地建筑面积不大且层高并无优势,整体空间体感局促而单调。设计要点在于突破原始建筑结构的诸多限制,构建一个适用于多种使用场景、强可塑性与功能性,且能帮助品牌给人留下深刻印象的独特空间。
独特之处必生于跳脱框架的想象力,一场空间游戏就此展开。
空间重构:层次、尺度与呼吸感
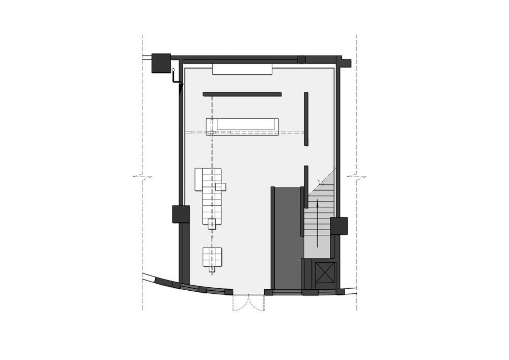
△ 空间分析图
楼梯由空间深处位移至侧面,并对楼板开洞位置进行重置,于入口处形成7米高的挑空区域。进店由此豁然开朗,并为接续的别有洞天埋下伏笔。
门厅与楼梯之间以墙体隔出走道灰空间,墙体平行而立,开合有序。在一层有限的平面面之内,门厅及接待台、走道、楼梯三者并行,空间相互独立而视线却偶有交集,迂回动线赋予逛店体验更为丰富的层次感,同时亦精准调动访客情绪。
而在沿阶梯盘行向上的过程中,二层核心功能区逐步显露,好奇心与窥探感引人入胜。
如同密斯的流动空间,以墙体的开合及分隔呈递恰到好处的尺度感与呼吸感,而值得玩味的空间形态和不断变化的视线范围令人沉浸其中,如游园般,每个角落都是值得探索的未知领地。
在这里,空间已成绝对主角。形式色彩各异的小型家具在其中灵活散布,亦与访客同样,作为独立的个体与整个场域体量达成微妙的平衡。其排列组合的可塑性足以兼容休憩或洽谈或更多使用场景。
隐喻:身体、视野与游走的意识
有趣的是,当人们身处其中,随时随处都可同时成为观察的主体与客体。每当凭栏驻足或抬头仰望,视线就成为行迹的补充,四方空间中仿佛上演着“身体”与“视野”的隐喻。而管线装置的介入,则进一步渲染了超现实的氛围感,并注入“意识”这一全新维度。身体仅存在于一处,视野却可借空隙打开,而意识互相交错、上升、穿墙、游走,无所不在。
“意识”随机游走却有迹可循。通过分析原建筑天花条件,将不可拆除的管道连同外露梁位进行包覆,以四种管径大小的圆管及进行穿插组织,局部嵌入灯管提供空间中的间接照明及重点区域照明,并赋予跳跃的橙色,形成贯穿空间的视觉焦点。 鲜活的橙色血液在空间中流动,成为强生命力的表征。具象化的意识牵引着视线,将其带离身体的桎梏。
纯粹肌理与光的加持
在精巧的空间结构之上,表面肌理纯粹而不失细节。大面积条状切割的砂岩呈递有节奏的重量感,成为空间主体基调,阳光板以其柔和的条纹与流动的光感形成呼应与对照,而天花灯膜则为建筑注入天光效果。虚实明暗,天然与精工,温暖包覆与轻盈超脱并存。丰富的光影变化令建筑体块呈递出强烈的黑白灰关系从而强化 “建筑感”,光从石墙间隙中透出,似乎近在眼前又遥不可及,体感与幻象相交融。
在理性与克制背后,是自由而松弛的想象力。
△ 首层平面图
△ 二层平面图
项目名称 | VMESHOU 北京三里屯店
项目地点 | 中国 北京 三里屯
项目面积 | 250.270104㎡
竣工时间 | 2021.8
项目业主 | 唯蜜瘦
主创设计 | 梁永钊 / DOMANI 东仓建设
协作设计 | 唐嘉颖、翟柱钊、张成 等 / DOMANI 东仓建设
工程单位 | 端艺装饰装修工程(北京)有限公司
项目摄影 | 吴清山
梁永钊 | Kingson Leung
中国新生代建筑室内设计师,注册高级室内建筑师,现担任DOMANI东仓建设创作总监,致力于研究空间视觉结构以及人物体验心理学,擅长于颠覆常规物理结构体验空间,创造出更高价值的复合体验空间。并带领团队获得全球多项国际大奖。
DOMANI东仓建设成立于2005年,坐落于中国广州。致力为不同行业的前瞻性客户提供顶级的建筑、室内及产品的创意与设计。并为市场贡献完整的高水准商业设计作品,来帮助众多企业获得全新的空间体验。及通过高溢价的空间作品带来卓越的市场反馈。其作品囊括诸多国际权威赛事殊荣,并成为亚洲地区顶级设计机构之一。
DOMANI东仓建设秉持严谨的职业态度、卓越的设计团队与全面的项目控管模式,并结合庞大的项目顾问资源系统,通过多元化的空间作品呈现更具国际视野的企业态度。
客服
消息
收藏
下载
最近




















































