查看完整案例

收藏

下载
项目名称:美国杰克逊霍尔机场QTA设施
位置:美国
设计公司:CLB Architects
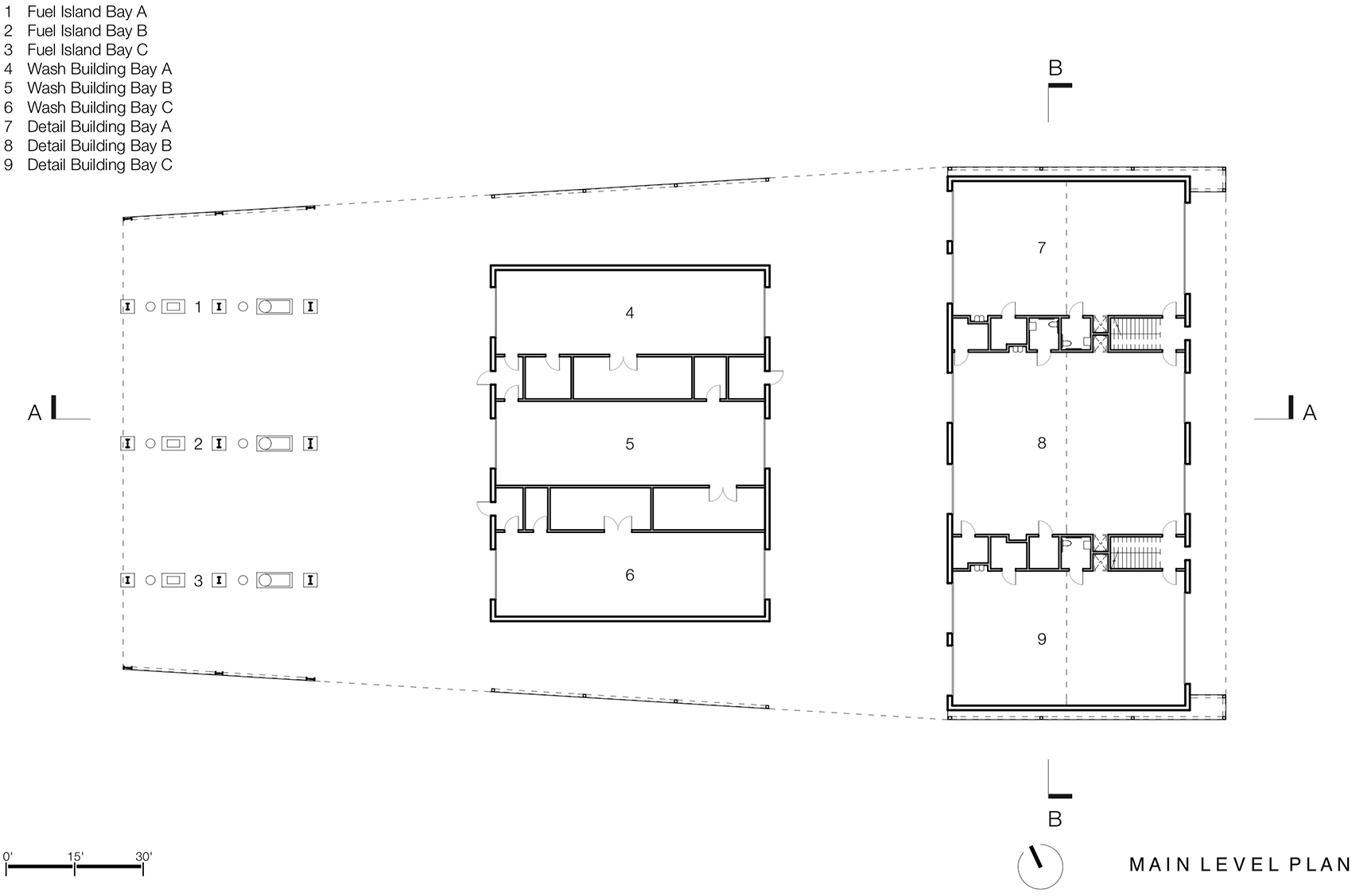
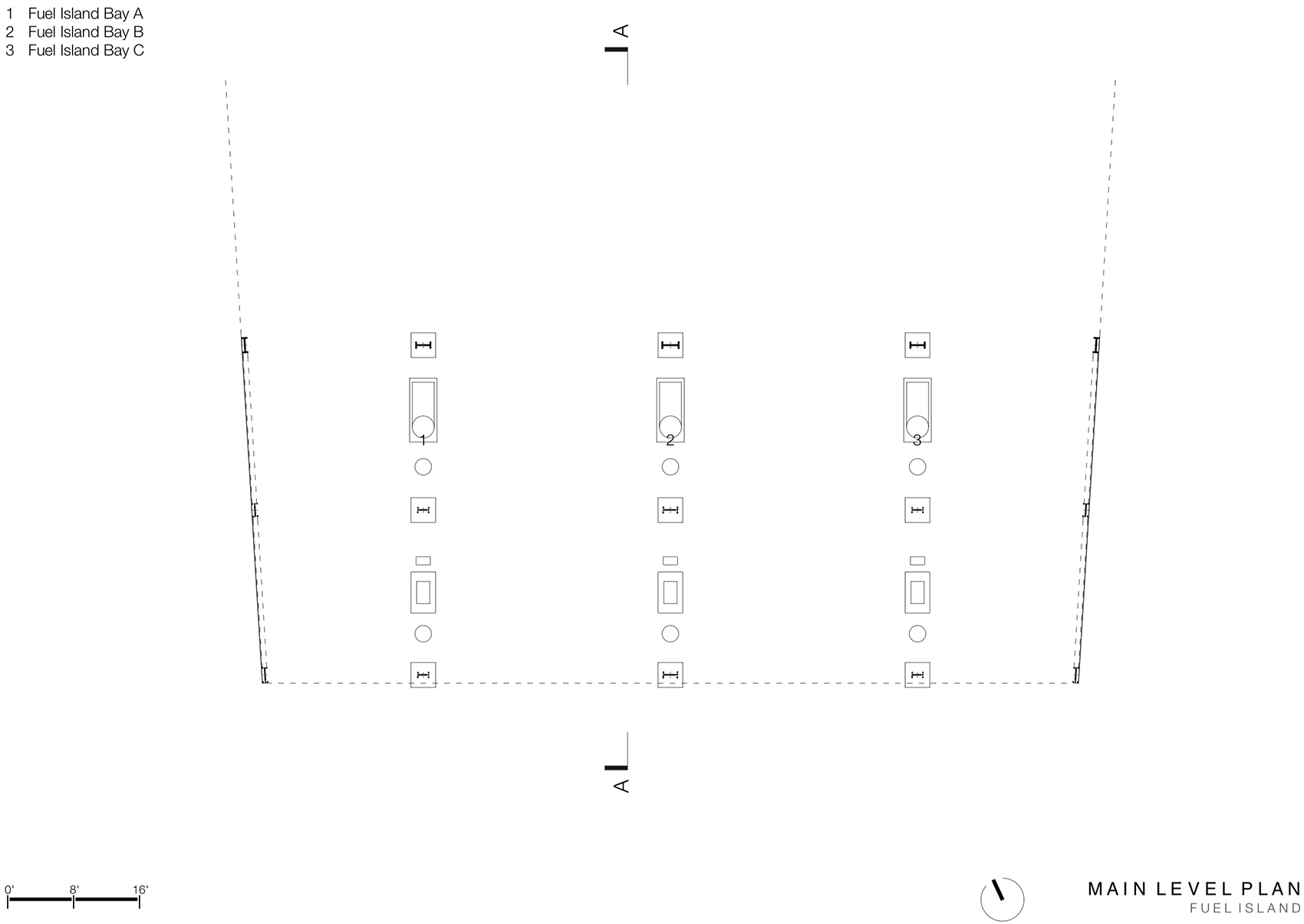
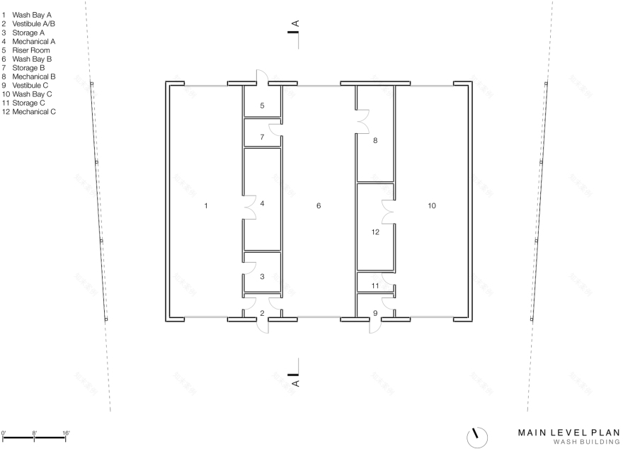
杰克逊霍尔机场既有的后勤租车运营设施组织欠佳、已经过时并且不再符合当代可持续性标准。杰克逊霍尔机场是美国唯一位于国家公园内的机场,为了更好地将这些功能组织起来,机场新建了QTA便捷中转设施。QTA位于机场南端,其东侧是通道、西侧是一排建筑物和飞机库,这些约束条件、日益增长的使用需求以及机场后期规划和发展决定了设施的总体布局和空间规划。最终方案简洁、紧凑而大胆。在运营高峰期,每家租赁公司每天可以在这里中转约200辆汽车。QTA提供了三个基本功能:加油、清洗和保养,这些功能被转化为一个加油站和两个分别用于清洗和保养的隔间。三个空间均位于庞大的矮屋檐下,屋顶在雨雪天气为两个隔间之间的空间以及外侧的加油站提供庇护。在综合体外部,锈迹斑斑的金属穿孔板将清洗和加油过程与公众视线隔开。每个功能均为独立隔间,服务于三家租车公司。加油、清洗、保养区域由南到北排列,其中清洗部分的面积为429平米,保养部分的面积为831平米(带有容纳设备间、仓库以及员工休息室的夹层)。设计采用生锈金属、混凝土、钢材和木材等材料,与机场航站楼的色调相呼应并融入周围环境。裸露的钢材具有双重作用,既用作结构,又可以提升综合体的工业美感。夹层对隔间开放,半透明隔板为两层空间带来自然光。低调的建筑细部提供了一个平台,增强了QTA所在环境——机场的激动人心的氛围。
美国杰克逊霍尔机场QTA设施外部实景图
美国杰克逊霍尔机场QTA设施外部实景图
美国杰克逊霍尔机场QTA设施外部实景图
美国杰克逊霍尔机场QTA设施外部实景图
美国杰克逊霍尔机场QTA设施外部实景图
美国杰克逊霍尔机场QTA设施外部实景图
美国杰克逊霍尔机场QTA设施外部实景图
美国杰克逊霍尔机场QTA设施外部实景图
美国杰克逊霍尔机场QTA设施外部实景图
美国杰克逊霍尔机场QTA设施外部实景图
美国杰克逊霍尔机场QTA设施外部实景图
美国杰克逊霍尔机场QTA设施外部实景图
美国杰克逊霍尔机场QTA设施平面图
美国杰克逊霍尔机场QTA设施平面图1.jpg
美国杰克逊霍尔机场QTA设施平面图
美国杰克逊霍尔机场QTA设施平面图
美国杰克逊霍尔机场QTA设施平面图
美国杰克逊霍尔机场QTA设施剖面图
美国杰克逊霍尔机场QTA设施剖面图
客服
消息
收藏
下载
最近






















