查看完整案例

收藏

下载
项目名称:法国多瑙河维特停车场
位置:法国
设计公司:COSA Colboc Sachet architectures
摄影师:卡米尔·加尔比(Camille Gharbi)
在Rhin大街和Alfred Kastler街交汇处,îlot-I,在多瑙河(Danube Vert)的面前,标志着史特拉斯堡的入口生态社区,并提出了有关交通方式变化和汽车未来功能的问题。这个生态社区有远大的抱负:在公共场所不设停车位,但在该区的两侧设有两个筒仓停车场。此外,没有分配的停车位,而是访客,白天居民(工人)和夜间居民(居民)之间的动态空间共享,这创造了城市活力,鼓励了骑自行车或电车的绿色出行,并降低了购置成本。公寓。为了保护街区不受交通影响,停车场结构在最繁忙的十字路口形成了障碍。该建筑体现了处理汽车的新城市优先事项:“智能城市”的出现使游客,白天居民(工人)和夜间居民(居民)之间动态共享停车位成为可能。停车场大楼在隐藏机制的工作中起着嵌齿轮的作用,由此不可避免地且不可避免地根据私家车来构想空间规划。它的建筑是由钢制成的节俭交织在一起的玻璃钢混凝土。反射的相互作用,铁匠铺组合的强迫性重复图案之美,尽管具有纯粹的功能性特征,却赋予这座建筑以明显的身份。
在Rh Rhin大街和Alfred Kastler街的交汇处,îlotI在多瑙河(Danube Vert)的面前,标志着斯特拉斯堡生态街区的入口,并引发了有关交通方式变化和汽车未来功能的疑问。这个生态社区有远大的抱负:在公共场所不设停车位,但在该区的两侧设有两个筒仓停车场。此外,没有分配的停车位,而是访客,白天居民(工人)和夜间居民(居民)之间的动态空间共享,这创造了城市活力,鼓励了骑自行车或电车的绿色出行,并降低了购置成本。公寓。为了保护街区不受交通影响,停车场结构在最繁忙的十字路口形成了障碍。该建筑体现了处理汽车的新城市优先事项:“智能城市”的出现使游客,白天居民(工人)和夜间居民(居民)之间动态共享停车位成为可能。停车场大楼在隐藏机制的工作中起着嵌齿轮的作用,由此不可避免地且不可避免地根据私家车来构想空间规划。它的建筑是由钢制成的节俭交织在一起的玻璃钢混凝土。反射的相互作用,铁匠铺组合的强迫性重复图案之美,尽管具有纯粹的功能性特征,却赋予这座建筑以明显的身份。
法国多瑙河维特停车场外部实景图
法国多瑙河维特停车场外部实景图
法国多瑙河维特停车场外部实景图
法国多瑙河维特停车场外部实景图
法国多瑙河维特停车场外部实景图
法国多瑙河维特停车场外部实景图
法国多瑙河维特停车场外部实景图
法国多瑙河维特停车场外部实景图
法国多瑙河维特停车场外部实景图
法国多瑙河维特停车场内部实景图
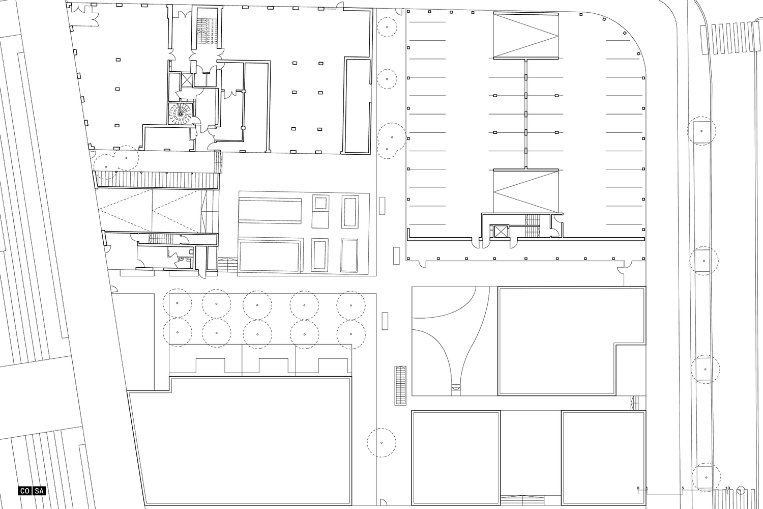
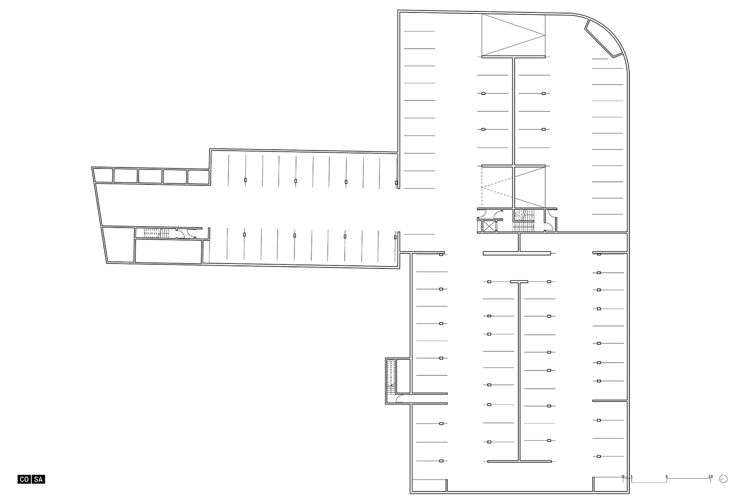
法国多瑙河维特停车场平面图
法国多瑙河维特停车场平面图
法国多瑙河维特停车场平面图
法国多瑙河维特停车场平面图
法国多瑙河维特停车场剖面图
客服
消息
收藏
下载
最近


















