查看完整案例

收藏

下载
东富酒家旗下珀炫·虎七餐厅位于国际一线品牌聚集地杭州大厦 B 座 B1F,创新潮菜与中式板前料理。
一场慵懒的“酒窖”私宴。安一方酒窖,品潮州食韵。幸浓酒如珀,享人间清欢。
葡萄酒庄的地窖风格松弛的深夜小酒馆氛围在此解构糅合
亚洲知名酒商 ENOTECA 深度合作,由 ENOTECA 旗下专家侍酒师团队专门设计酒单和选品。
俄罗斯松木黑瓦古堡式地砖与红砖墙面营造在地下酒窖享用美酒美食的氛围
私密的雪茄室,专业的调酒师,温润火炉带来卡拉瓦乔式的“酒窖光线”,恒温恒湿的物理环境,利于酒品、雪茄的储存转化。
空间分割错动带来视觉的丰富与纵深,室内造境,空窗框景,纳自然入室内,养心灵之疗愈。
框景造境的园林手法赋予贵宾室光和景,自然不断延续,食客得以在当下与传统、东方与国际、入世与出世之间诗意畅巡。
屋面黑瓦引入室内立面,粗粝的红砖,细腻的纸隔屏,虽处一方室内空间,亦如于山水间畅神。
以葡萄酒名来进行命名的贵宾室,将宴饮的松弛与轻盈带给了每一位来客。觥筹交错间,万千思绪纷飞。
名为“雷司令”的贵宾室
延续解构主义遗风
顶面被叠加重组
榫卯木质裸露其间
交织传统与现代,呈现变幻与革新
半隐于市
城市喧嚣在暖色线条中被隐藏
纯粹石材诠释不被定义之美
法国 LEGLE 餐具高端系列既有返璞归真质感,又有精致细腻自然肌理。食物于写意器型中自然而然,富有生机。
一方天地、一餐食,一场艺术盛宴,是坐在板前的你与主厨之间无比的信任以及对一期一会的渴望。
观“虎七”门头,与“珀炫”呼应。阵列松木,琳琅酒瓶。原始的古朴,精致的小资。空间语言贯穿整个餐厅。
“Bottle Shake”意为微醺后的我们,如同酒瓶子一样左右摇晃。疲倦后的一顿舌尖香气,欢笑中的一抹淡淡微醺。一场“酒窖”私宴,在恬静清夜中落下帷幕。
*原始场地照片与手稿*
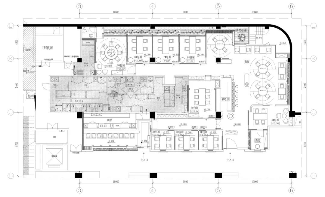
* 一层平面图 *
项目名称丨Project 珀炫·虎七餐厅 BOTTLE SHAKE·HU QI RESTAURANT
设计时间丨Design time 2023
完工时间丨Completion 2023
项目面积丨Area 400 ㎡
设计公司丨Company 大相设计 Daxiang design studio
设计团队丨Team 蒋建宇、李水、楼婷、柳永良、蒋泽锋、舒凯荣、张宇婷
特别鸣谢丨Specoal thanks 态度家居 Taiduhome
项目地址丨Location 中国 杭州 Hangzhou,China
项目摄影丨Photographer 形在空间摄影 HereSpace
客服
消息
收藏
下载
最近










































