查看完整案例

收藏

下载
项目名称:西班牙水果和蔬菜中心Raspa y Amagado建筑位置:西班牙
设计公司:FORarquitectura
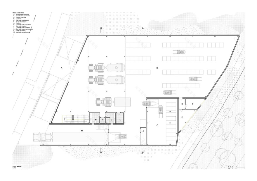
Axarquia地区是许多富有献身精神的农民祖祖辈辈足迹的标志。农业传统和它的乡土建筑引导我们从过去的角度来解决这个项目。从中,我们学到了形式、策略和姿态,当应用到建筑的使用和分配时,会引导我们走向结果。一栋1125平方米的建筑分为四个大空间,用于储存农业领域的产品和工具,我们在这里处理和保管原材料,直到将其出售。体积清楚地反映了那些出现在景观特定区域的传统形式,因此通过这种学习,屋顶排水、不同分区的使用组织以及立面所用材料的美学解释等问题都得到了解决。立面引入了现代元素,聚碳酸酯,这种材料在一些农业建筑中也很常见,如温室,它允许光线通过,同时保护我们免受外界影响。一个图案的姿态框定了中殿的某个内部区域,产生了一个丰富多彩的亮点,吸引了我们的注意力,并为内部活动带来了欢乐和活力。一座光的大教堂,注定要容纳来自大地的原材料,一个对大地的崇拜空间。
西班牙水果和蔬菜中心Raspa y Amagado建筑外部实景图
西班牙水果和蔬菜中心Raspa y Amagado建筑外部实景图
西班牙水果和蔬菜中心Raspa y Amagado建筑外部实景图
西班牙水果和蔬菜中心Raspa y Amagado建筑外部实景图
西班牙水果和蔬菜中心Raspa y Amagado建筑内部实景图
西班牙水果和蔬菜中心Raspa y Amagado建筑内部实景图
西班牙水果和蔬菜中心Raspa y Amagado建筑内部实景图
西班牙水果和蔬菜中心Raspa y Amagado建筑内部实景图
西班牙水果和蔬菜中心Raspa y Amagado建筑内部实景图
西班牙水果和蔬菜中心Raspa y Amagado建筑内部实景图
西班牙水果和蔬菜中心Raspa y Amagado建筑内部实景图
西班牙水果和蔬菜中心Raspa y Amagado建筑内部实景图
西班牙水果和蔬菜中心Raspa y Amagado建筑内部实景图
西班牙水果和蔬菜中心Raspa y Amagado建筑内部实景图
西班牙水果和蔬菜中心Raspa y Amagado建筑内部实景图
西班牙水果和蔬菜中心Raspa y Amagado建筑内部实景图
西班牙水果和蔬菜中心Raspa y Amagado建筑内部实景图
西班牙水果和蔬菜中心Raspa y Amagado建筑平面图
西班牙水果和蔬菜中心Raspa y Amagado建筑剖面图
西班牙水果和蔬菜中心Raspa y Amagado建筑剖面图
西班牙水果和蔬菜中心Raspa y Amagado建筑剖面图
西班牙水果和蔬菜中心Raspa y Amagado建筑立面图
西班牙水果和蔬菜中心Raspa y Amagado建筑立面图
客服
消息
收藏
下载
最近


























