查看完整案例

收藏

下载
项目名称:卢森堡domaine Claude Bentz酿酒厂
位置:卢森堡
设计公司:Jil Bentz工作室
卢森堡domaine Claude Bentz酿酒厂外部实景图
卢森堡domaine Claude Bentz酿酒厂外部实景图
卢森堡domaine Claude Bentz酿酒厂外部实景图
卢森堡domaine Claude Bentz酿酒厂内部实景图
卢森堡domaine Claude Bentz酿酒厂内部实景图
卢森堡domaine Claude Bentz酿酒厂内部实景图
卢森堡domaine Claude Bentz酿酒厂内部实景图
卢森堡domaine Claude Bentz酿酒厂内部实景图
卢森堡domaine Claude Bentz酿酒厂内部实景图
卢森堡domaine Claude Bentz酿酒厂内部实景图
卢森堡domaine Claude Bentz酿酒厂内部实景图
卢森堡domaine Claude Bentz酿酒厂内部实景图
卢森堡domaine Claude Bentz酿酒厂内部实景图
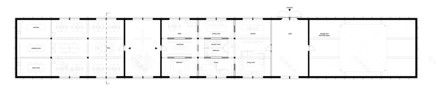
卢森堡domaine Claude Bentz酿酒厂平面图
卢森堡domaine Claude Bentz酿酒厂平面图
卢森堡domaine Claude Bentz酿酒厂平面图2.jpg
卢森堡domaine Claude Bentz酿酒厂剖面图
客服
消息
收藏
下载
最近




















