查看完整案例

收藏

下载
项目名称:芬兰Lauttasaari教堂翻新
位置:芬兰
设计公司:Verstas Architects
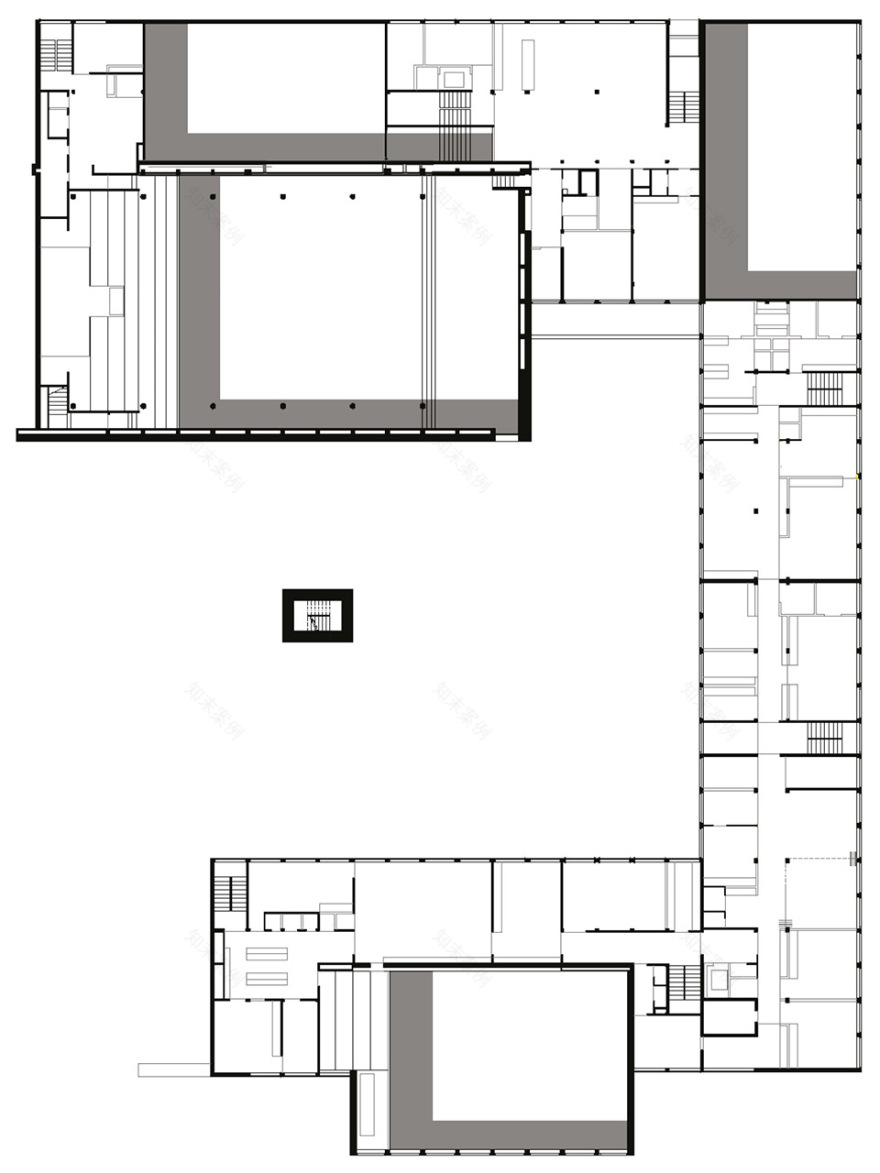
Verstas Architects对Lauttasaari教堂进行了翻修设计——该教堂是赫尔辛基最大的教堂建筑,也是芬兰现代教堂建筑的地标之一。该教堂建筑和其配套的钟楼位于Myllykallio山Lauttasaari的最高点,由建筑师Marja和Keijo Petäjä设计,并于1958年竣工,目前受到教会法的保护。这座教堂以其独特的外形诠释了建筑师人性化且富有表现力的设计理念。教堂的内部、照明设施和宗教文物均是由著名室内建筑师Annikki和Ilmari Tapiovaara设计。这座教堂建筑为两个不同的教会提供服务:Lauttasaari教会和名为Johannes Församlingen的瑞典语教会。因此,建筑中设有两个教堂大厅和教区活动大厅。此外,还设有俱乐部室、办公空间和运动空间。
设计者的改造重点是对教堂的技术结构进行翻新、将电力和空气循环系统更新至当前标准、安装现代化视听音响设备、采用LED照明技术。本次翻新工程尊重了建筑原有的设计风格,尽可能减少对原始外观的改动。设计者在改造过程中特别注重对教堂内部功能的改进,以满足使用者的需求。例如,他们重新设计了俱乐部的侧翼音乐学校和小型幼儿园;小童子军们的空间被转移到了地下室;对教堂的咖啡厅进行了扩建并增设了一个厨房。最终,俱乐部侧翼、教堂咖啡厅和教区大厅之间相互连通,中庭与室外空间相连,为这里的人们提供服务。本次改造使得当地社区的基础设施能够更好的运作。
芬兰Lauttasaari教堂翻新外部实景图
芬兰Lauttasaari教堂翻新外部实景图
芬兰Lauttasaari教堂翻新外部实景图
芬兰Lauttasaari教堂翻新外部实景图
芬兰Lauttasaari教堂翻新外部实景图
芬兰Lauttasaari教堂翻新外部实景图
芬兰Lauttasaari教堂翻新内部实景图
芬兰Lauttasaari教堂翻新内部实景图
芬兰Lauttasaari教堂翻新内部实景图
芬兰Lauttasaari教堂翻新内部实景图
芬兰Lauttasaari教堂翻新内部实景图
芬兰Lauttasaari教堂翻新内部实景图
芬兰Lauttasaari教堂翻新内部实景图
芬兰Lauttasaari教堂翻新内部实景图
芬兰Lauttasaari教堂翻新内部实景图
芬兰Lauttasaari教堂翻新内部实景图
芬兰Lauttasaari教堂翻新内部实景图
芬兰Lauttasaari教堂翻新内部实景图
芬兰Lauttasaari教堂翻新内部实景图
芬兰Lauttasaari教堂翻新内部实景图
芬兰Lauttasaari教堂翻新内部实景图
芬兰Lauttasaari教堂翻新内部实景图
芬兰Lauttasaari教堂翻新内部实景图
芬兰Lauttasaari教堂翻新内部实景图
芬兰Lauttasaari教堂翻新内部实景图
芬兰Lauttasaari教堂翻新内部实景图
芬兰Lauttasaari教堂翻新内部实景图
芬兰Lauttasaari教堂翻新内部实景图
芬兰Lauttasaari教堂翻新内部实景图
芬兰Lauttasaari教堂翻新内部实景图
芬兰Lauttasaari教堂翻新内部实景图
芬兰Lauttasaari教堂翻新内部实景图
芬兰Lauttasaari教堂翻新平面图
芬兰Lauttasaari教堂翻新平面图
芬兰Lauttasaari教堂翻新立面图
芬兰Lauttasaari教堂翻新立面图
客服
消息
收藏
下载
最近







































