查看完整案例

收藏

下载
项目名称:法国航海杆港口
位置:法国
设计公司:NBJ建筑公司
照片:让·吕克·吉罗德
新项目的航海杆塞特,位于摩尔圣路易的尽头。它旨在供当地航海协会和公司使用。这座建筑由简单朴素的形式构成,用混凝土建造以确保耐久性。这个项目是通过牡蛎壳作为地板覆盖物的再利用来实现材料和短路的反射。该产品被命名为Colstab Ostré。航海杆位于圣路易码头的标志性地点塞特。协会有多种用途,协会塞特(社交网站)和SNSM,它确保了必要的功能,将航海活动集中在基地,以适应上层的办公和社交空间。通过其定位和物质性,该项目旨在融入景观,同时揭示它。从接待室可以看到远处的地平线,接待室通向一个巨大的露台。该计划汇集了以下航海协会塞特,航海公司塞特和SNSM。
这也是一个组织航海活动的空间,如赛船会,接待区是一个广阔的露台,提供了一个特殊的海景。选择一个简单的混凝土材料是基于靠近大海和长久性的考虑,并尽量减少对建筑的维护。人们更喜欢简单而严肃的形式。该建筑是在景观中插入的意愿下建造的,这是因为远处的景观和与法国建筑设计师的密切合作是为了实现其意图,特别是自塞特城和圣克莱尔山以来。在对材料和短路的反思中,我们用一个再利用当地生态废物的装置来认识牡蛎的壳。为此,与COLAS公司进行了合作,该公司利用牡蛎壳开发了一种地板产品。该产品名为Colstab Ostré。Colas演示文件摘录:“Colstab Ostrea由Colas开发,旨在回收陶盆地贝类养殖活动中产生的牡蛎壳废物。
法国航海杆港口外部实景图
法国航海杆港口外部实景图
法国航海杆港口外部实景
法国航海杆港口外部实景图
法国航海杆港口外部实景图
法国航海杆港口外部实景图
法国航海杆港口外部实景图
法国航海杆港口局部实景图
法国航海杆港口外部实景图
法国航海杆港口外部实景图
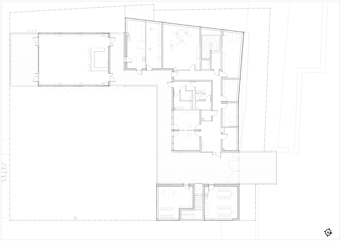
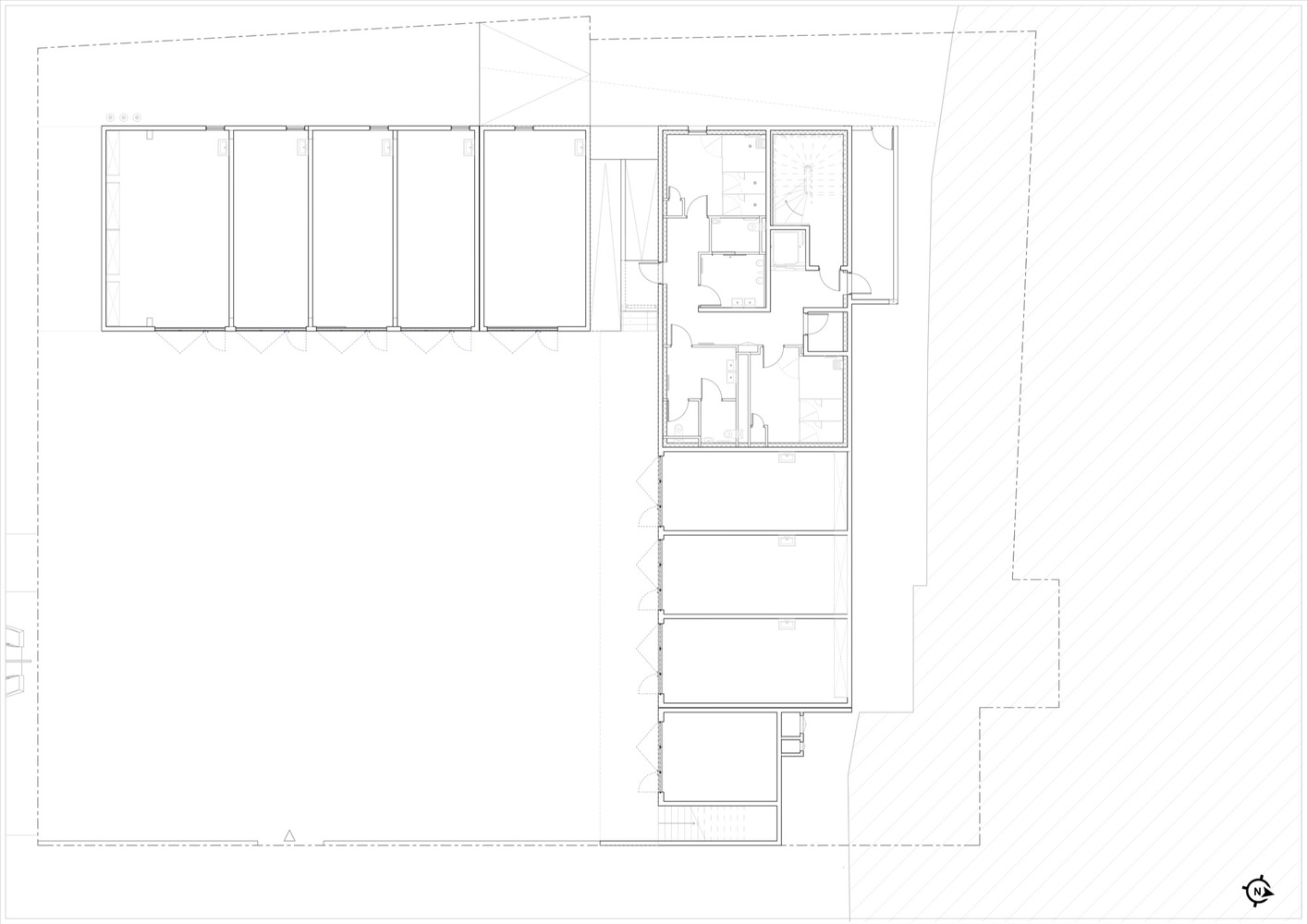
法国航海杆港口平面图
法国航海杆港口平面图
法国航海杆港口平面图
法国航海杆港口剖面图
客服
消息
收藏
下载
最近

















