查看完整案例

收藏

下载
项目名称:韩国Papo教堂
位置:韩国
设计公司:Oh Jongsang
一座有 50 年历史的教堂。这是一幢老建筑,下雨时会漏水,而且没有保温材料来阻挡隆冬的寒风。我们需要一座新建筑,但与此同时,我们必须考虑哪些部分应该像以前一样保留。一堵石墙围绕着场地。就个人而言,我喜欢粗糙纹理的石墙。我认为用水泥连接光滑巨石的石制品是不自然的。但有时,温暖的回忆比时尚的外表更重要。我没有勇气将他们建造的石墙一一推倒,所以我决定留下一点时间的痕迹。我留下了真诚和记忆的印记。遗址一侧高傲而端庄的枞树也必须得到保护。它为新建筑增加了稳定性和平衡性,就好像它是土地的原始所有者一样。 白色和灰色的外墙和深色的无色屋顶给人以干净简洁的印象,背景是绿色的森林。
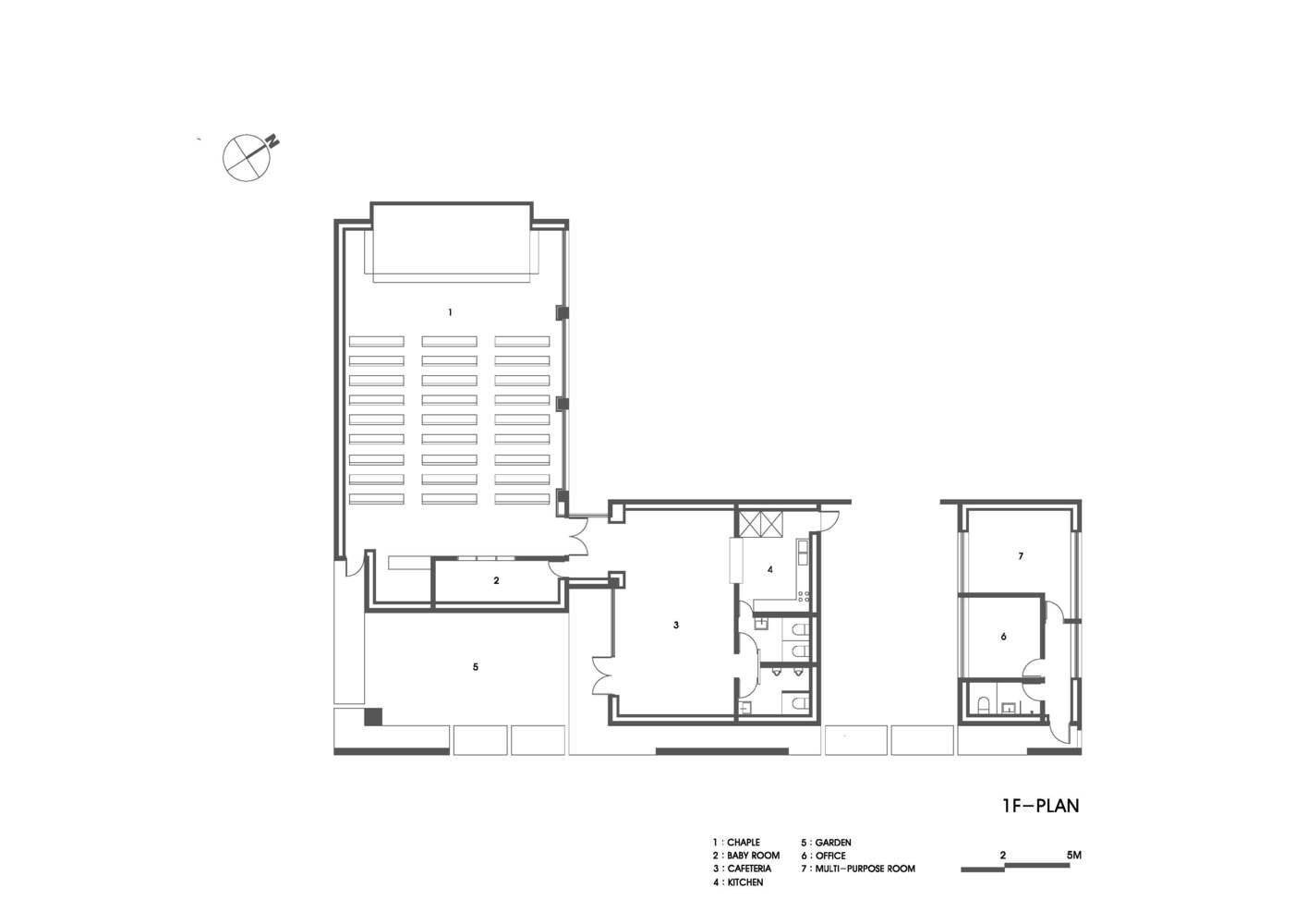
虽然面积约 350 平方米,但建筑分布在宽阔的土地上,形成了 35 米的纤细造型。而不是将建筑物集中在一个地方并拥有一个大花园。将土地分割并划分为多个域有时是一个很好的策略。在一个人口稠密的城市,这本来是不可能的,但我们决定充分利用这片土地。各种外部空间,包括前花园、后院和庭院,被插入建筑之间,带来丰富的体验。三个像兄弟一样高耸的山墙屋顶被裸露的混凝土板包围。形成层的混凝土板创造了一种深度感,运动线条被组织起来。 内部空间。 内部采用自然光装饰,由砖和裸露的混凝土制成。一个装满光的盒子被放在小教堂的前面。柔和的光线从侧面的狭长窗户射进来。
韩国Papo教堂外部实景图
韩国Papo教堂外部实景图
韩国Papo教堂外部实景图
韩国Papo教堂外部实景图
韩国Papo教堂外部实景图
韩国Papo教堂外部实景图
韩国Papo教堂外部实景图
韩国Papo教堂外部实景图
韩国Papo教堂外部实景图
韩国Papo教堂内部实景图
韩国Papo教堂内部实景图
韩国Papo教堂内部实景图
韩国Papo教堂平面图
韩国Papo教堂平面图
韩国Papo教堂剖面图
韩国Papo教堂立面图
韩国Papo教堂立面图
客服
消息
收藏
下载
最近




















