查看完整案例

收藏

下载
项目名称:韩国大田市圣光教堂
位置:韩国
设计公司:Lee Eunseok + Atelier KOMA
摄影师: Joonhwan Yoon
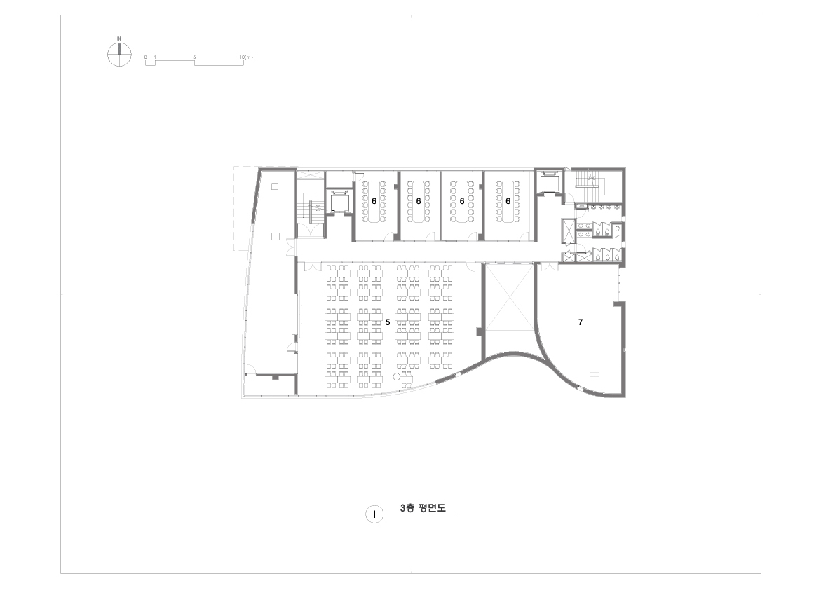
圣光教堂(Holy Light Church)向整个城市开放,在平面规划上形成一条从主干道上的教堂广场开始,越过大厅,延伸至教堂后面的相邻花园的独特走廊。大厅是一个面向公众的露天室内广场,也向儿童开放,由于它在水平方向上向周围开放,得以引入城市的活力而显得更富有生机。在现代,由于信徒常在教堂里礼拜,交谊,以及举行各种聚会,教堂往往包含复杂的设施,在狭窄的地面空间中满足不同的功能需求,因此很有必要提供有效的空间和流动系统,利用地下空间举行礼拜活动。位于大田市(Daejeon)丹山市区(Dunsan)的圣光教堂就包含以下三部分。圣光教堂已将前方道路所在的街区区域完全用于地下停车场。地下停车场的屋顶在紧急情况下可作为室外停车场使用,但通常情况下,它被用作一个开放的多功能空间,就如同欧洲教堂前面的广场一样。巨大的十字形标志和独特的走廊是这个城市的地标,从街上看去,教堂的后部也具有一定的识别性。它对周边建筑物起到了约束的作用,也凸显了所在的环境。教堂立面上的凹陷弧形墙不仅起着装饰的作用,而且还强化了教堂内部和外部的特征。
它构成了教堂的核心概念,呈现出一种欢迎的姿态,如同它拥抱自己的广场和所在的城市那样。教堂希望以此隐喻温情的基督教生活。这个立面形成圣光教堂的第一印象,一个光彩流溢永不消逝的发光体,与教堂的名字有所呼应。位于地下的礼拜堂在有限的场地内设置了数目最多的座位。此外,没有设置楼厅座位,是有意创造一个促进社区关系的空间。地下礼拜堂空间开阔,通过下沉花园而非大厅,能轻易从外面进入。因为处在地下,隔绝了城市噪音,所以环境安宁。漏斗状的地下大厅安置了彩色玻璃窗,光线进入就使空间变得愉快而明亮。此外,主教堂的半圆形座位和较低的讲坛减弱了宗教的严肃感,这种布局有利于促进传教人员与信徒之间的和谐交流。一楼的大厅规划成一个公共空间,因为正面朝向室外广场和教堂后面毗邻的花园,很方便市民进出。还有为婴儿和青少年规划的配有工作人员的教育室,也做咖啡厅之用。大部分教育空间主要位于教堂上层,这样能提供一个全方位的开放的明亮的视野,为后代创造有效的教育环境。这些教育空间出入便利,青年人可以获得各种的功能的享受,还可以进入到屋顶花园。
韩国大田市圣光教堂外部实景图
韩国大田市圣光教堂外部实景图
韩国大田市圣光教堂外部实景图
韩国大田市圣光教堂外部实景图
韩国大田市圣光教堂外部实景图
韩国大田市圣光教堂内部实景图
韩国大田市圣光教堂剖面图
韩国大田市圣光教堂剖面图
韩国大田市圣光教堂平面图
韩国大田市圣光教堂平面图
韩国大田市圣光教堂平面图
客服
消息
收藏
下载
最近














