查看完整案例

收藏

下载
项目名称:北京自助教堂
位置:北京
设计公司:RENGARCH
摄影师:史新同,吕波,张斌
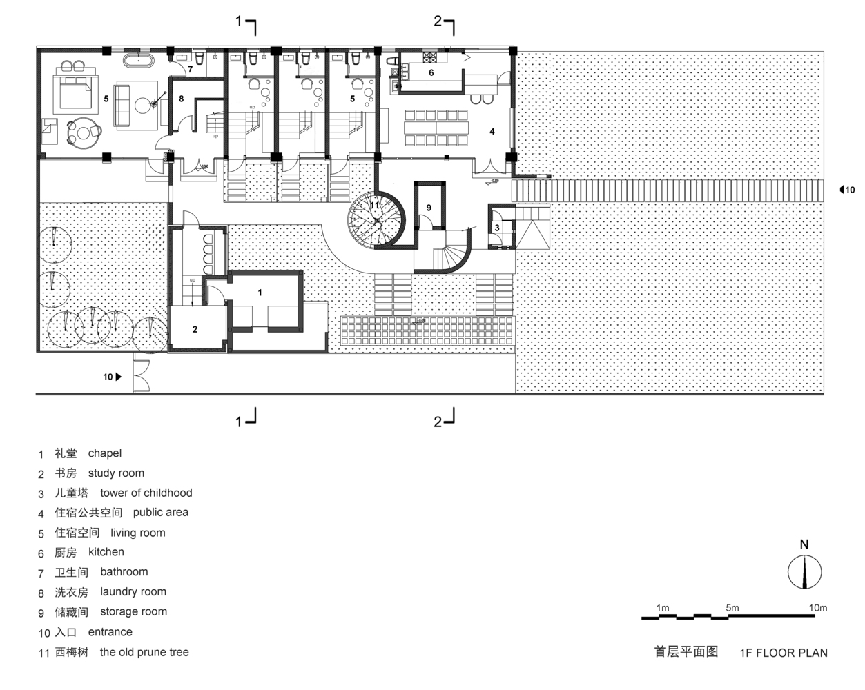
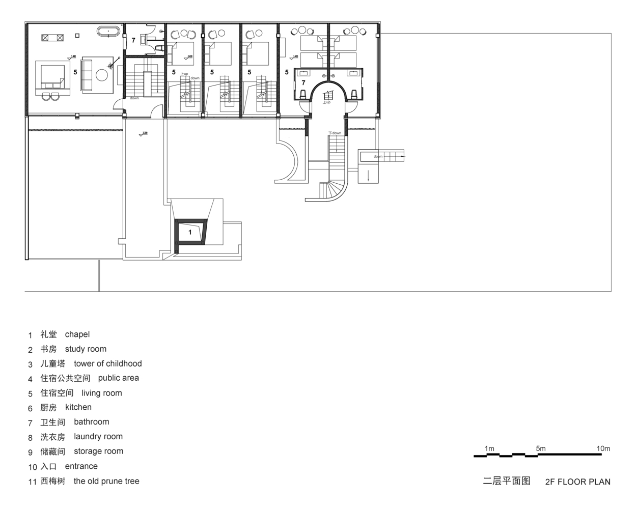
从2018年开始,RENGARCH在北京延庆区四面环山的后所屯村设计了一座居民楼。该场地计划包括一个礼拜堂,一个童年之塔和一个住宿区。作为不同的时间点,成人礼拜堂和童年之塔共存于同一条空间线上,隐喻了生活的增长,并为当地村庄带来了独特的回忆。当小教堂插入屋顶上的几层瓷砖时,有一个小山丘可以俯瞰整个村庄。小教堂的中心是弧形墙,实际上是向南倾斜的建筑。顶部的一个向南的洞打开了一个通道,阳光进入了内部空间。只要阳光可以到达,雨水就会沿着墙壁缓慢滑下,聚集在底部并流出。上下开口形成风的通道。访客可以考虑并从一扇低门离开。竖起的墙扩大了气氛,转弯后将您的眼睛引向东方。在密闭的空间容器中,似乎会放大光,雨和风。感官上更大的雨和风的声音,昼夜流淌的光影使人感到自然,与小教堂的体验不同,《童年之塔》更像是故事的起点。就像滑梯一样,塔楼可以上下移动。在室外楼梯下方是一个供您玩耍的沙坑。塔内色彩鲜艳,是一个小世界,孩子们可以随意攀爬。生长在院子里,承载了整个家庭的记忆,成为了设计的最初线索。修剪树周围的弧形墙将空间布局水平放置在地面上。住宿区包含七个房间。三个烟囱从屋顶伸出,形成逐渐上升的空间。在二楼,东面的两个房间共享一个屋顶露台,客人可以通过钢梯到达那里并完成与山间的对话。
北京自助教堂外部实景图
北京自助教堂外部实景图
北京自助教堂外部实景图
北京自助教堂外部实景图
北京自助教堂外部实景图
北京自助教堂外部实景图
北京自助教堂内部实景图
北京自助教堂内部实景图
北京自助教堂内部实景图
北京自助教堂平面图
北京自助教堂平面图
北京自助教堂平面图
北京自助教堂剖面图
北京自助教堂立面图
客服
消息
收藏
下载
最近

















