查看完整案例

收藏

下载
“井”是项目当地社区咖啡品牌“井字咖啡”的简称,我们结合品牌在空间内搭了一个以“井”字为灵感的架子。
项目概况
Project Overview
项目位于中山小榄新开发的商品房小区一层铺位。商品房国内发展 30 年有余,而城镇商品房在高速发展的年代,设计相互借鉴,出现了大量类同的布局、空间、材料等,以最大的利益为导向,用最快的方式生产及出售。除了相似的户型,商业楼盘下的店铺,也用着统一的安全模板,有着相似的空间、一长条整齐划一的外立面,抽象得最后只能通过店铺编号来逐一辨认。
▼区位图
▼门头
▼波纹镀锌板外立面
大部分房地产商并没有心思为住户与商户介入后的几十年发展留下多少发挥空间;商铺与住户关系割裂,除了为方便管理而从空间上水平分开,在最初项目定位时候,对于后续商业运营的想法就已经缺失,犹如机器般地完成屡试不爽的功能产品,在同质化到最后只剩下单薄的地段优势。
▼阵列的空间感
▼入口半户外空间
▼入口半户外空间
在商铺短暂的 1-2 年租赁期与 1 个月的免租期下,如何快速收回成本几乎成了每个商家都会面对的问题,而快速装修和控制造价则似乎成了最优解。
▼入口半户外空间
设计处理 Design Processing 业主十分希望能在新的小区开出一个亲切近人的社区咖啡小店,慢慢成为了新社区的“聚脚”点,但同时无可避免的是要面对以上的问题。▼廉价红砖砌住的吧台
▼长条吧台
我们希望找到一个方法能回应这些问题:
1. 时间与预算紧张。
2. 租期结束后不产生过多的建筑垃圾。
3. 帮助品牌挖掘更多的可能。
▼木架,红砖吧台的关系
所以在设计初期,我们对常规施工顺序(清拆-泥水-水电-木工-油漆…)进行梳理,最后把木工部分独立出来,与其他工种的施工同步进行。空间尺度为开间 3.6m,高 6m,深 9m 的标准狭长长方体,设计置入一个可拆卸木构架,尝试在工厂生产。木架在较高的空间内把人们的焦点控制在相对宜人的尺度,其序列感为较深的空间带来可以感知的尺度。
▼剖透视图
▼不锈钢台面
▼木构架形成的空间雏形
清淡的木色与轻柔悬挂的连续布幔,为社区人们的停留提供温和的体验,同时由于木构架以上的空间被布幔遮挡,适当地减少了建造面积,有效控制造价;
▼清淡的木色与轻柔悬挂的连续布幔
木构架在施工过程中,同步在工厂加工成零部件,我们的设计原则是:
1. 可简易搭建,即便没有木工也能自行操作。
2. 可拆卸回收再利用。
3. 一天内完成搭建。
在泥水、水电完成后,木构架零件进场,搭建工作在一天内完成了(最后还是有木工协助),再对木构架作一些五金补充,即完成空间雏形。
▼轴测分析图
▼室内
入口内退了约 1/3 的深度,形成一个半户外遮阴区域,供人们在天气炎热或有雨的季节在室外活动;最外侧的围蔽保留了包租公的不锈钢拉闸门,这种门在珠三角很常见,让新店带着些自然的熟悉感;内部入口的折叠门则可以在天气舒适的时候完全打开,通过木构架的延续性模糊了室内外的边界感,我们希望这种有趣的围蔽切换能给这个空间带来其他的可能。
▼半户外遮阴区域
项目完成后,店主经常和我们吐槽:很多人经过看到这个铺面都会探个头进来看看,好奇的问一句这里面到底是干什么的,有的以为我们是卖烧烤的,有的以为是卖香水的,有的以为是桌游店,就是没有想到是卖咖啡的。
▼节点分析图
我们说:在项目开始前大家的畅想里,这里有各种人在做各种事情:看书,打游戏,玩桌游,聊天,开 k 歌会,等等,就像“井”字的笔划交叉点一样,在这里有着各种日常的交汇,是朋友间习惯约见的地方,是街坊经过会打个招呼的地方,是上班族下午茶歇脚的地方,是这个社区里日常的“聚脚”的地方。
▼半户外空间的活动
▼搭建过程
那天我们聊了很多也很开心,唯独没有聊咖啡。
▼立面图
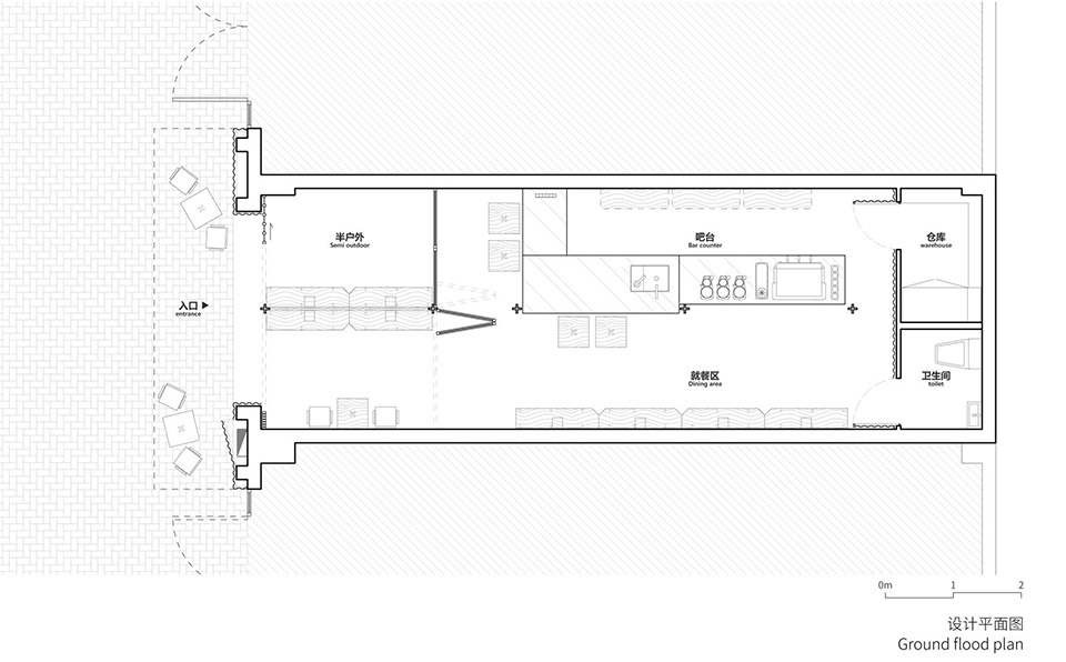
▼平面图
项目名称:井-社区咖啡
项目类型:建筑/室内
设计方:泥木建筑工作室
项目设计:黄城强,邓敏聪
完成年份:2022
设计团队:罗键锋,林晓锋,欧志彬
项目地址:中国广东省中山市小榄镇东升区丽城路
建筑面积:30㎡
摄影版权:黄城强,何振中
客户:井字社区咖啡
客服
消息
收藏
下载
最近
















































