查看完整案例

收藏

下载
场地位于上生新所(COLUMBIA CIRCLE)的3号楼。该地在租界时代是供西方人度假放松的哥伦比亚乡村俱乐部,于2018年经由OMA改造后的“COLUMBIA CIRCLE”重新开放。
▼外观
coffea SHED是一个咖啡农业零售空间。向公共广场和社区开放,成为居民日常的聚集地。这里出售咖啡及农副产品和日用服饰杂货。
▼店铺入口
店名中的SHED,灵感来源于咖啡产地随处可见的“棚”,以柱子支撑屋顶,结构非常简单,在大棚下农人们闲聊、休息、吃饭,缓解农活的疲劳。在城市中我们也想搭建这样的“大棚”让忙碌的人可以休息、汇聚、愉快交流。
▼大棚由室内延伸到户外
我们认为,一个连接城市消费者和生产者的平台应该在这样一个大棚下的宽敞、开放空间里。宽敞的“大棚下”设计采用压型金属板,这种材料通常应用在农业生产中的仓库等构筑。
▼分析图
▼大棚近景
这种板材加工容易,且可将照明与喷淋等消防设备结合在一起。在压型金属板内凹的部分置入日光灯管,并在板材间的横梁上设置轨道射灯。这样的天花照明设计可以适应空间灵活变化的布局。
▼内外联通的空间
▼内外开放的空间
▼广场地面延伸到室内
此外,通过将与店铺前的户外广场上使用的花岗岩砖延用到空间内部,尽可能地消除内部和外部之间的界限。
▼内部空间概览
场地和后面的公寓楼之间有一个小后院,这个小院原来被闲置了。我们希望通过“大棚”的元素将广场前的开放空间和后院连接起来。
▼3F 咖啡手冲区
▼3F店铺间互相联通
▼3F阳台
室内也可以面向后院开放,后院明亮阳光和植物的生命力进入到室内,让人可以在大棚子下待上一段舒适的时间。
▼后院
▼户外座椅
▼设计细节
改造前建筑面向喷泉广场的是一个封闭立面。 我们通过向外延展的“大棚”,将广场和景观延伸到室内,我们希望人们能够从各个方向自由地聚集在这个大棚下。
▼夜幕下的大棚
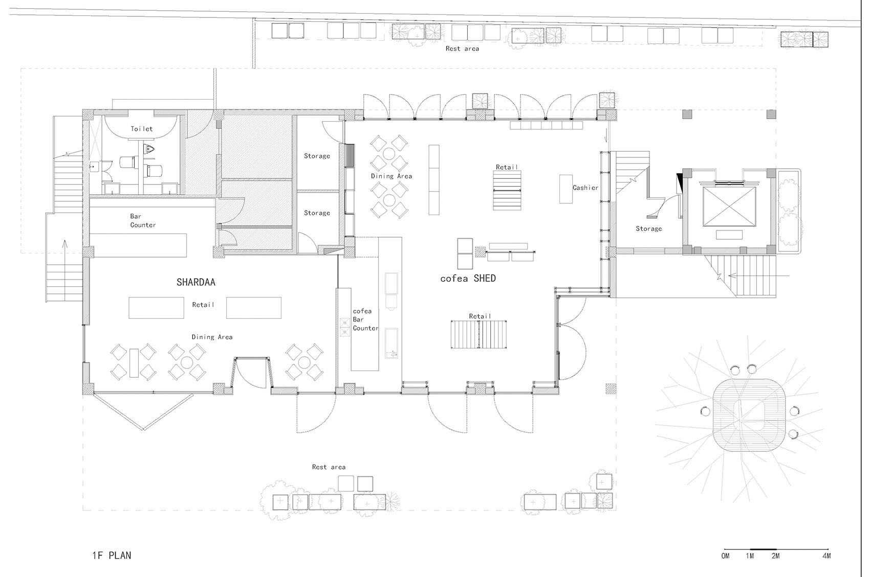
▼1F平面图
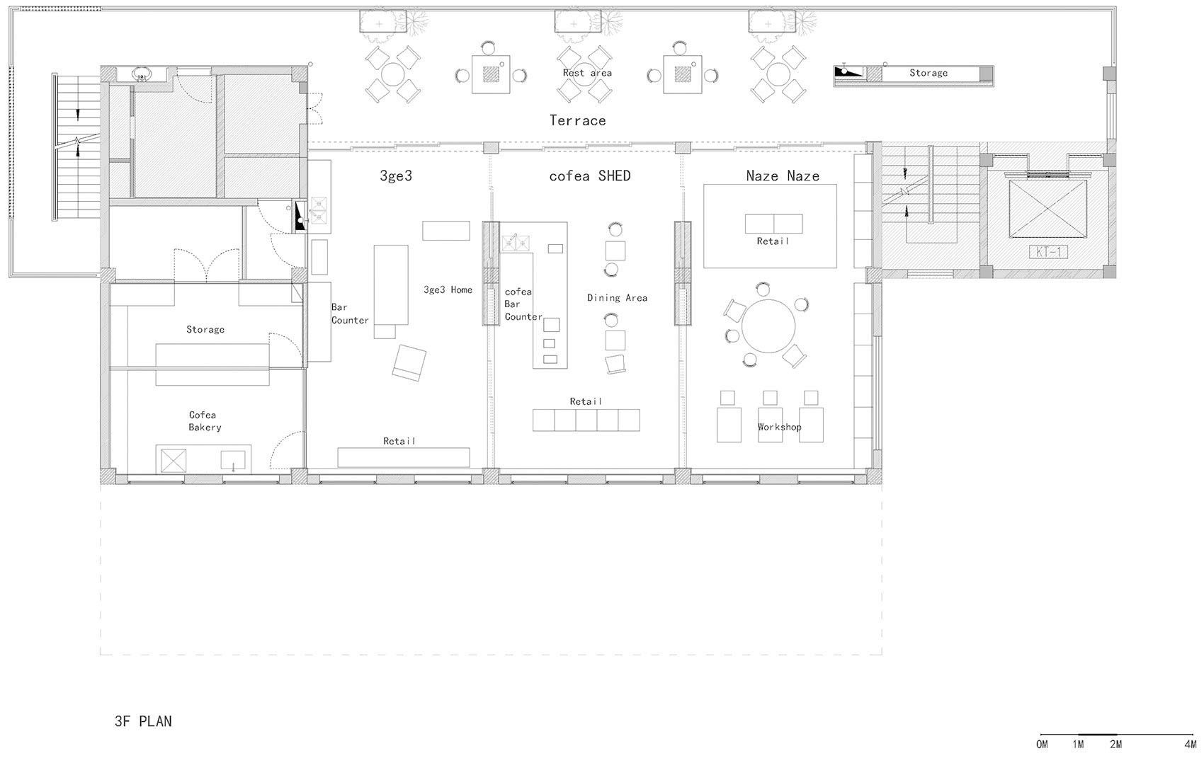
▼3F平面图
▼剖面图
项目名称: coffea SHED上生新所店
建筑事务所: 小大建筑设计事务所
项目完成年份: 2023年6月
建筑面积: 400㎡
项目地址: 上海长宁区延安西路1262号上生新所3号楼1F, 3F-
设计团队: 小嶋伸也,小嶋綾香,北上紘太郎,黄永顺、罗伊
摄影师: 堀越圭晋,朱润资
【唐忠汉】重庆俊峰山万里别墅施工图+PDF方案+效果图+物料表
【唐忠汉】
宜兴春晓江南下叠施工图+PDF设计方案57页+效果图
【唐忠汉】
万华麓悦江城205㎡大平层施工图CAD+实景图
【唐忠汉】山东临沂圣兰菲诺大平层CAD施工图+PPT方案+高清效果图
【唐忠汉】西安华发长安首府售楼处丨施工图CAD+PPT深化方案+效果图
【唐忠汉】京投发展锦悦府165㎡中叠别墅施工图+物料官方摄影
【唐忠汉】重庆俊峰山万里 下叠方案+CAD施工图+实景+物料
2024最新网红施工工艺视频全解合辑
【梁志天】苏州九龙仓际豪宅施工图
【李玮珉】北京盈科中心超级大平层丨1200㎡丨CAD施工图+效果图
【无间设计.吴滨】西安大平层CAD全套施工图+PPT深化+效果图
【无间设计.吴滨】深圳越秀·和樾府售楼处CAD施工图+PPT深化方案+效果图
客服
消息
收藏
下载
最近











































