查看完整案例

收藏

下载
项目名称:日本稲毛陵苑建筑
位置:日本
设计公司:teamSTAR
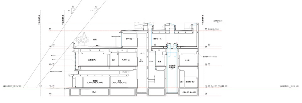
充满阳光的开放式墓地型纳骨堂,用以解市区墓地不足的问题,并提供舒适的参拜环境。在日本,出生率下降和人口老龄化不断加重,死亡人数从1980年到2020年增长了一倍,已经超过了130万。随着城市化和家庭结构的变化,急需解决城市地区墓地不足的问题。人们对于拥有舒适的参拜空间 、尊重个性的纳骨堂的需求日益增加。稲毛陵苑项目位于东京近郊,占地面积1440平方米,建筑面积2740平方米,是一座钢结构的三层建筑。屋顶设有庭院和纳骨堂,2楼是寺院,1楼是休息室。休息室,寺庙,屋顶花园和礼拜室,每层都有不同的功能,用于葬礼和纪念仪式。传统的纳骨堂的问题在于,遗骨储存室是后置结构,使得骨库的设计过于封闭和佛教化。为了解决这个问题,实现良好的参拜环境,我们开发了一种在墓碑下储藏遗骨的系统。首次实现了具有开放感的,环境怡人的墓地型纳骨堂。我们使用的材料是石木纸等天然素材。设计涉及建筑、室内装饰、家具、视觉设计,参拜系统的开发全般,旨在用“美”来解决客户的问题。
日本稲毛陵苑建筑外部实景图
日本稲毛陵苑建筑外部实景图
日本稲毛陵苑建筑外部实景图
日本稲毛陵苑建筑内部实景图
日本稲毛陵苑建筑内部实景图
日本稲毛陵苑建筑内部实景图
日本稲毛陵苑建筑内部实景图
日本稲毛陵苑建筑内部实景图
日本稲毛陵苑建筑内部实景图
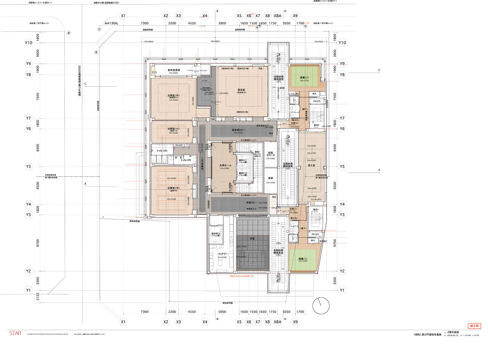
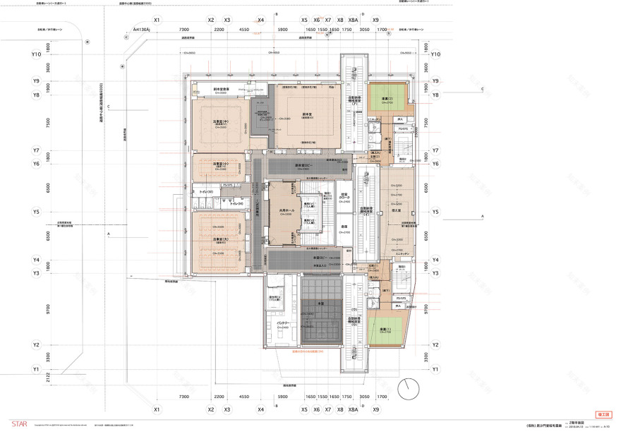
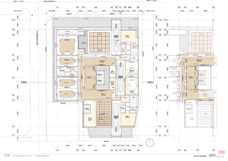
日本稲毛陵苑建筑平面图
日本稲毛陵苑建筑平面图
日本稲毛陵苑建筑平面图
日本稲毛陵苑建筑平面图
日本稲毛陵苑建筑平面图
日本稲毛陵苑建筑平面图
日本稲毛陵苑建筑平面图
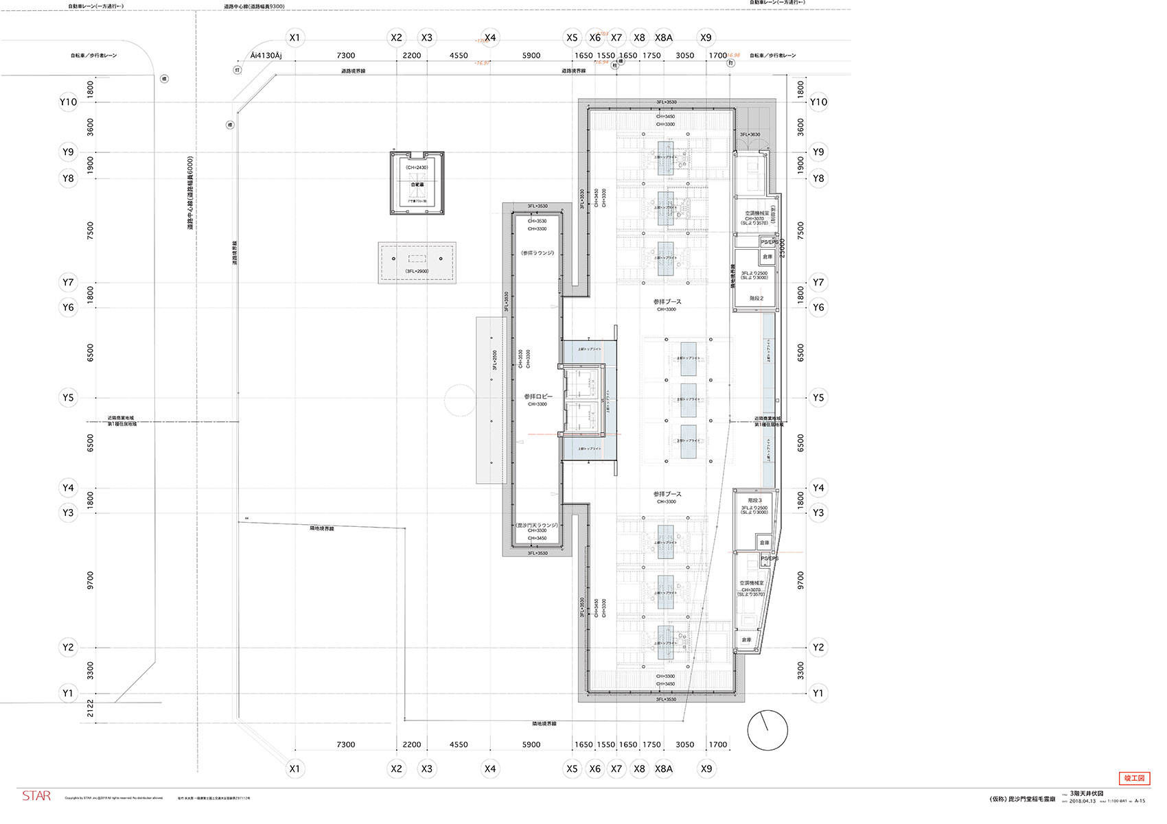
日本稲毛陵苑建筑剖面图
日本稲毛陵苑建筑剖面图
日本稲毛陵苑建筑剖面图
日本稲毛陵苑建筑剖面图
日本稲毛陵苑建筑立面图
日本稲毛陵苑建筑立面图
日本稲毛陵苑建筑立面图
日本稲毛陵苑建筑立面图
客服
消息
收藏
下载
最近



























