查看完整案例

收藏

下载
项目名称:美国圣玛丽教堂
位置:美国
建筑师:Mark Cavagnero Associates
这座以宗教为导向的加州高中的亲密小教堂既是门槛,又是恢复性的静修。坐落在校园外部边界的拐角处,光滑的白色混凝土建筑的上升既是标志,又是标志。该礼堂旨在为学生提供服务,其中许多人是低收入者,并就读圣玛丽奖学金,该教堂虽然属于一所天主教学校,但被认为是一种精神空间,它给年轻成年带来了挑战和困难。在神圣,寂静,光线充足的空间中考虑和处理的。材料诚实-白色混凝土;玻璃 阿拉巴马州石灰石;和淡淡的美国白橡树色–为致力于使社区(高中生及其老师)安静的空间定下了基调,否则该社区可能会繁华,喧闹和压倒一切。马克·卡瓦涅罗协会(Mark Cavagnero Associates)认为教堂是办公室的“梦想项目”,该办公室通常在大型机构和商业项目中工作,其项目建筑师们非常喜欢在如此亲密的情感范围内工作的机会。学校的服务宗旨是为弱势群体服务,并为学生提供安全感,平静感和舒适感,现已转变为一个空间,成为从公民生活到室内修复的旅程。礼拜堂是从后面进入教堂的,这种做法是沿着无缝浇筑的白色混凝土砌块墙的柔和发音进行的。
从这条路,通过玻璃墙暗示了教堂的视觉通道,并由一个大的木制屏幕界定。一个小院子抱着小教堂的入口。一张小而深思的高架床放在靠近入口旁浅水池的长凳旁,光线柔和的反射标志着门槛。这种开放式的编排在进入明确的礼仪空间之前提供了片刻的停顿–这代表了客户希望教堂内的恢复性体验可以开始影响学生的日常生活和教育重点。对于这个规模相对较小的项目,设计团队努力解决了使空间感觉仍然宽敞,连通且大于其实际占地面积的愿望。强烈顶峰的屋顶形式既具有标志性又具有响应性,其形状是庆祝不同光线模式的一种方法。灯光的运动成为该项目的核心要素,它对早晨的金色色调以及弥漫的午后光芒一样感兴趣。礼拜堂的设计旨在吸引早晨的活力,午后的平静柔和的光线随着学生们的冲刷穿过整个空间,标志着一天学习的结束,并进行了自省。
美国圣玛丽教堂外部实景图
美国圣玛丽教堂外部实景图
美国圣玛丽教堂内部实景图
美国圣玛丽教堂内部实景图
美国圣玛丽教堂内部实景图
美国圣玛丽教堂内部实景图
美国圣玛丽教堂内部实景图
美国圣玛丽教堂内部实景图
美国圣玛丽教堂内部实景图
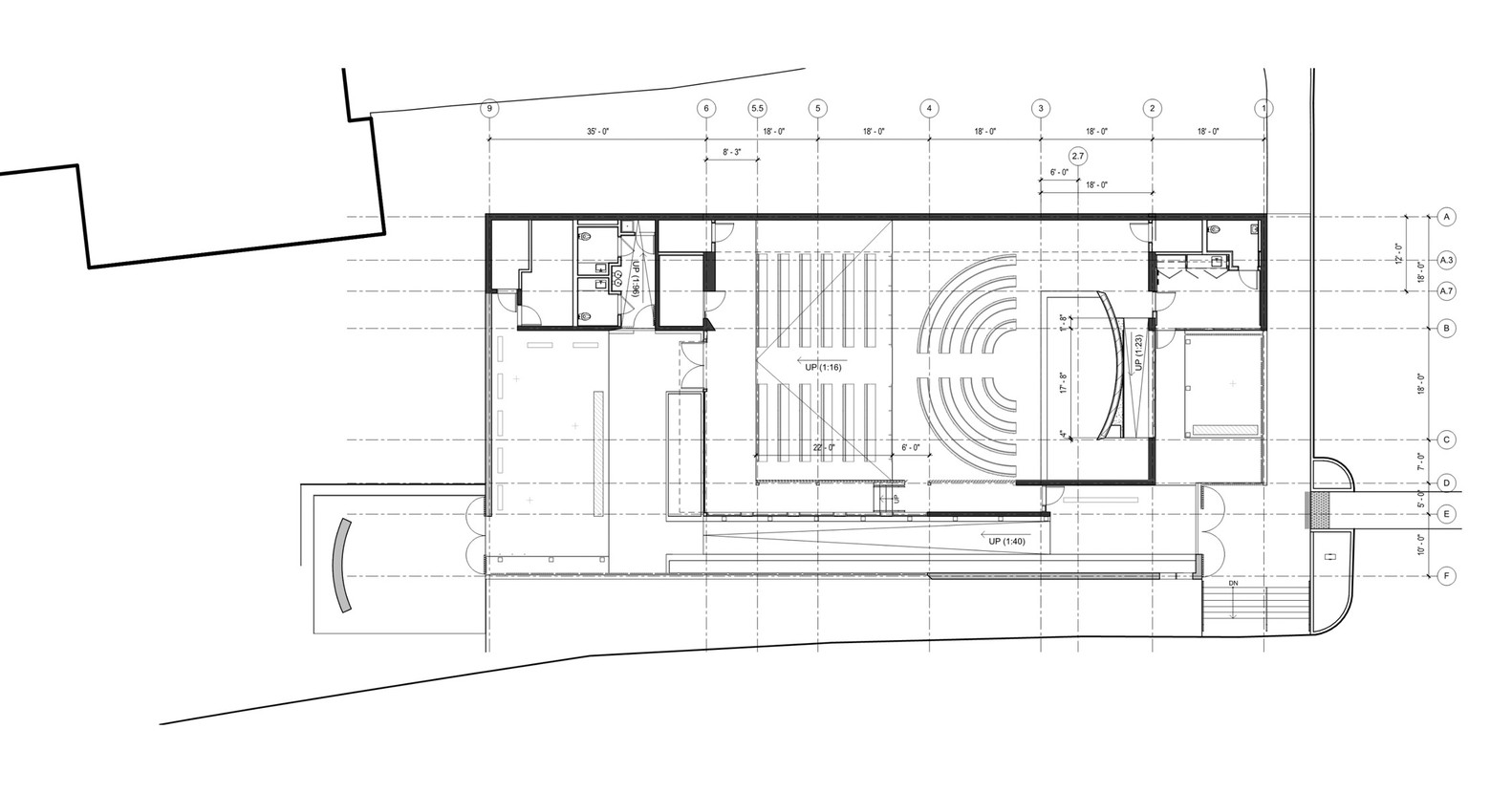
美国圣玛丽教堂平面图
美国圣玛丽教堂剖面图
美国圣玛丽教堂立面图
美国圣玛丽教堂立面图
客服
消息
收藏
下载
最近
















