查看完整案例

收藏

下载
项目简介
大鸟YAKITORI汾阳路店是位于上海梧桐区的沿街烧鸟店。设计希望捕捉历史街道的特色,结合“大鸟YAKITORI”品牌中“家”的意向,为都市居民提供一处现代且富有烟火气的晚餐和夜宵场所。
设计策略
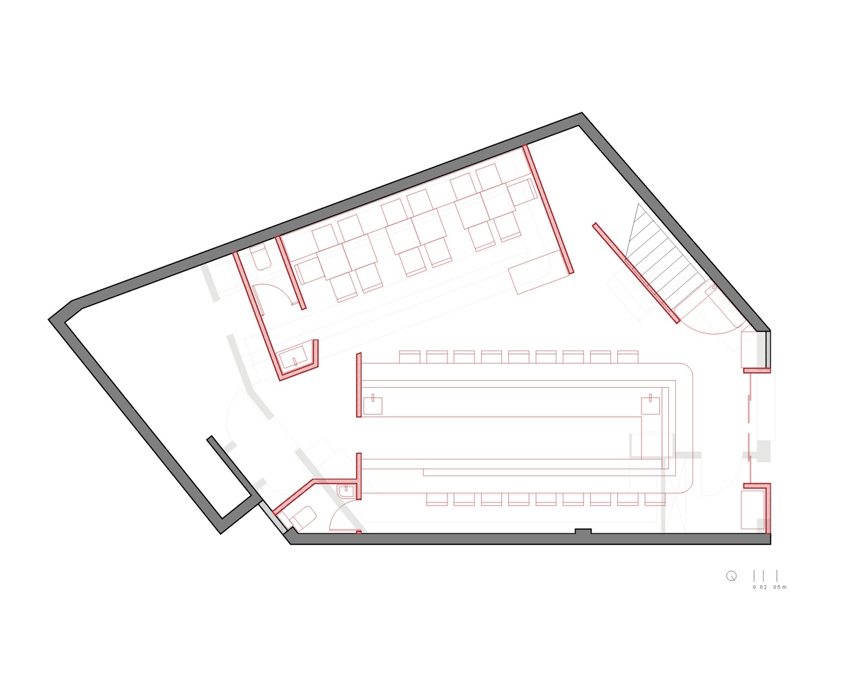
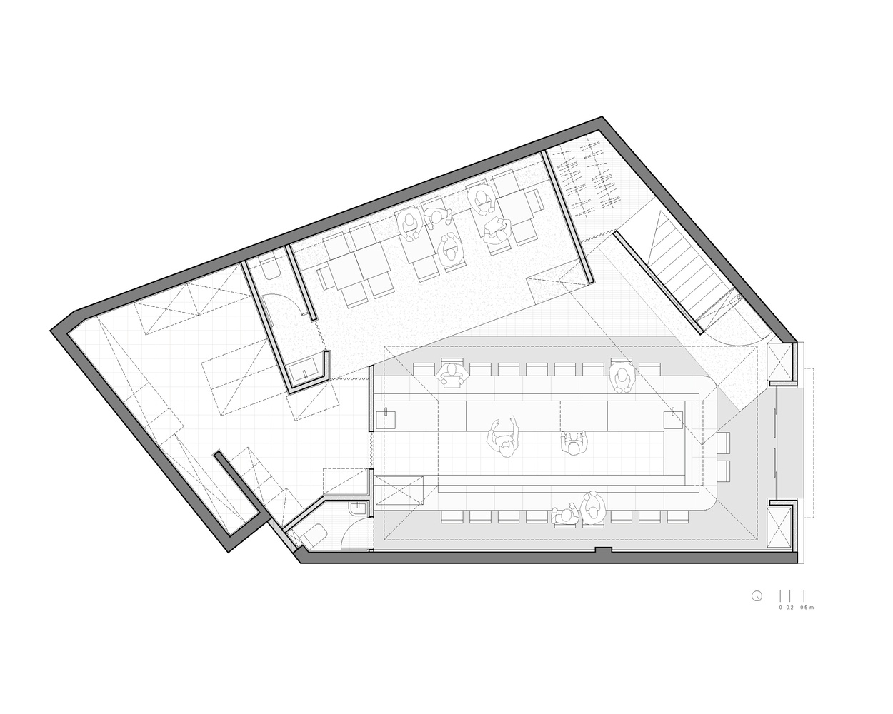
场地坐落于上海市复兴中路和汾阳路交叉口,梧桐区,街道尺度宜人,车行缓慢。周边建筑年代不一,风貌丰富。场地平面形状复杂,整体轮廓不规则。沿街立面紧贴人行道,开口小,进深大。入口内部需保留通往二楼酒吧的楼梯。大鸟YAKITORI以夜间营业为主,除了满足就餐需求,餐厅需要提供客人情绪价值。从平面布置出发,一个环绕式的大岛台成为方案核心。板前客人约20位,可围坐一圈,用餐同时观看制作过程。大岛台正对街道,把烧烤、铁板烧和调酒的过程直接向过往行人展示,成为了街道景观的一部分。
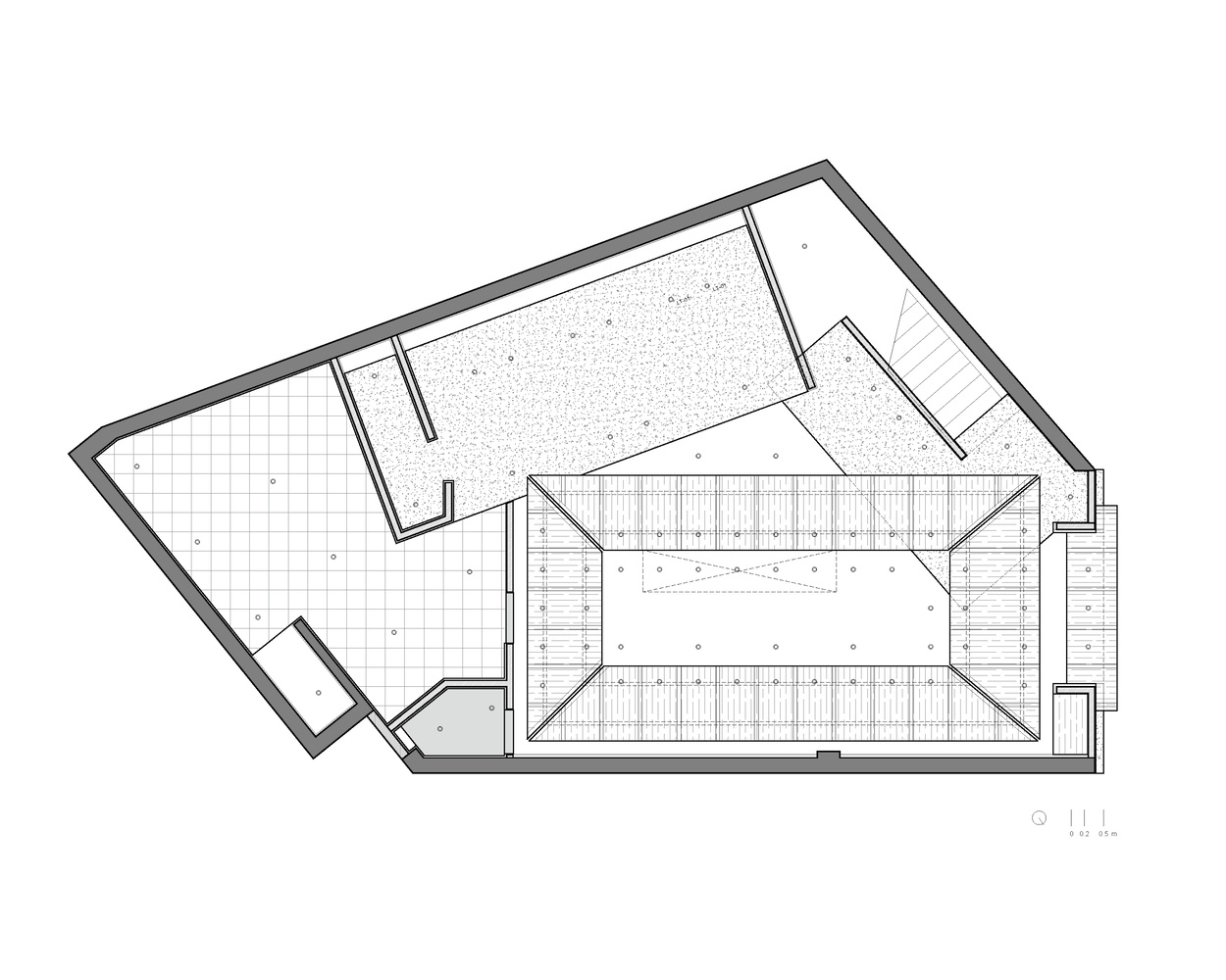
岛台上方巨大的木制吊顶,宛如客人在用餐期间共同的屋顶,结合中央的炭火,营造出“家”的归属感。斜置的屋顶从视觉上遮挡了吊顶上方复杂的排烟系统、新风系统和空调系统。
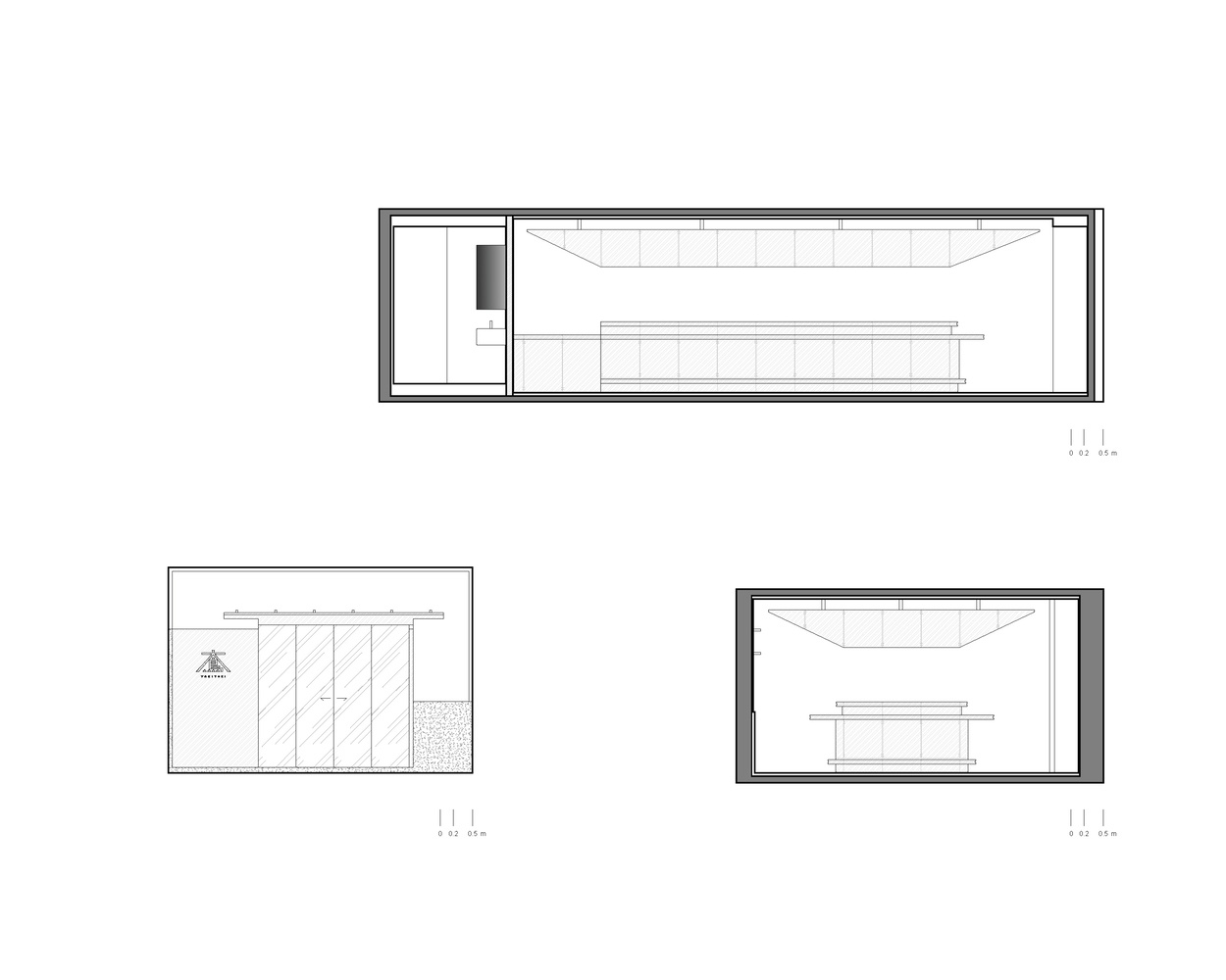
利用场地的不规则形状,两个“红色小屋”穿插于“岛台小屋”。一个成为灵活的散座区,适应不同需求的客人,一个成为通向二楼的楼梯间。小屋之间的间隙成为了烧鸟店的通道和储藏间等辅助空间。门头是室内的延伸。正如我们希望把室内活动融入街道,门头的方案也是餐厅内部布置和内部材料的直译。
材料与构造
岛台小屋”材料上以竹钢为主。以60CM为一个用餐单位,多数材料实现模块化,便于预制和施工。材料深浅搭配,浅色为竹钢原色,以工厂制作板材为主,切面可见;深色为实木条,用作收边、分割等现场作业。“红色小屋”下半部为防水耐污的花岗岩,上半部采用同色肌理漆。其余部分,设备和管道情况复杂,整体喷黑,未做吊顶。
客服
消息
收藏
下载
最近






















