查看完整案例

收藏

下载
项目名称:丹麦公共火葬场
位置:丹麦
建筑师:Henning Larsen
摄影师:Anders Sune Berg
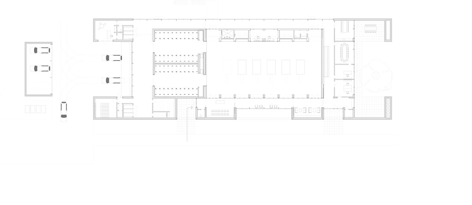
灵柩首先会从灵车被抬到一个安静祥和的房间进行最后的告别。在这个寂静的房间里,死者的朋友和亲戚可以选择跟随着棺木,通过窗户看向火炉房,并由此观看火葬过程。12米高的炉房洒满了阳光;里面的砖墙和花岗岩地板在白天都有面向森林的人字形屋顶窗户来照亮。火葬场的设计充分考虑了在此工作的人们的需求,新炉房拥有着良好的室内气候和工作环境,同时也为死者家属提供了一个适宜的氛围。在此空间中的工作者能尽情享受阳光,温暖的光线反射在墙上,沿着起伏的天花板流入室内。从外部看,建筑体量长而低,高炉房位于综合体的中间。炉房被嵌入基地,使建筑达到亲近感和人性化的尺度。坐落在一个50,000平方米的场地,火葬场还与一个名叫KærupGods的历史性丹麦建筑中的花园式设计相邻。Ringsted火葬场的建造是为了满足烟气净化的新规范标准,并取代了该地区的八个旧火葬场。该设计强调灵活性,包括多样功能和非宗教空间,以谨慎地设计容纳所有类型的纪念集会。在未来,周围的场地将作为墓地,亲属将能够从火葬场拿骨灰盒并将其埋葬在墓地当中。
丹麦公共火葬场外部实景图
丹麦公共火葬场内部实景图
丹麦公共火葬场内部实景图
丹麦公共火葬场内部实景图
丹麦公共火葬场内部实景图
丹麦公共火葬场平面图
丹麦公共火葬场剖面图
丹麦公共火葬场剖面图
丹麦公共火葬场立面图
丹麦公共火葬场立面图
客服
消息
收藏
下载
最近













