查看完整案例

收藏

下载
我们在一个安静住宅区的半山腰地块上设计了这座四合院,占地面积约为 330 平方米(100
坪
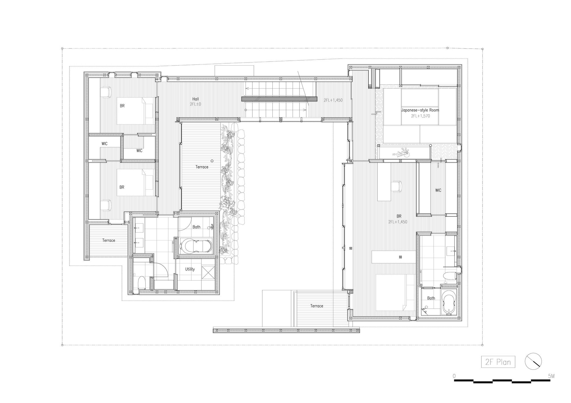
)。 由于场地的高度增加了2米,我们采用了横跨北楼和南楼的错层形式以适应地形。 我们的计划是建造一座从外面无法直接看到的四合院,我们选择了一种非常私密的布局,在这种布局中,每个房间都可以看到宁静的花园。 因为有足够的自然光从花园射进来,我们把朝南的立面做成了一个“封闭”的设计,没有任何窗户。 我们想要营造一种让人联想到宁静和沉默寡言的外观,同时垂直榫槽实木壁板和等距板条提供了视觉重点。
建筑结构为混合式 项目建造:一层为钢筋混凝土结构,二层为木柱梁结构。 钢筋混凝土结构部分像一个平台一样向上涌动,肩负着旁边的地面,而上部则由手工制作的柱梁框架组成。 脊梁——来自日本东北部的 10 米长的东北松木,带有锛应用
naguri
¹ 饰面——是该空间的关键元素。 信州落叶松被用于庭院花园的木制窗扇,带有一定红色的木材特性与特制的石器瓷砖和灰泥的划痕饰面相得益彰。 对于房子周围的外部元素,我们使用电车床上的古董铺路石作为入口路径,并使用合气石作为与花园接壤的石墙。 在绿化方面,我们种植了常绿的日本红豆杉和松树; 与此同时,在庭院花园里,我们种植了在秋天会变色的落叶树,让整个物业都感受到季节的变化。 起居用餐区的设计使其与庭院花园处于同一高度的地板感觉像是它的延续。
利用错层设计的独特性,我们将南楼的屋顶保持在较低的水平,这样从房子的其他地方看,它就像一个单层楼。 两端边缘下垂的四坡山墙屋顶覆盖着直边铜瓦,顶部是两层
noshigawara
瓦的屋脊。² 谈到建筑的木质元素 屋顶,我们让椽子和护套暴露在外,并降低隔墙的高度,以表明各个空间是更大整体的一部分,并使木制框架贯穿始终。 对于房子的木制主体,我们使用了针叶树,主要是东北松树和吉野雪松。 对于细木工,我们选择了 Yanimatsu 松、Yakusugi 雪松和板栗,同时也沉迷于我们对印度紫檀、缅甸柚木和桃花心木等南海木材的喜爱。 对于石材,我们使用了 Oya 和 Tatsuyama 凝灰岩、Isahaya 的硬砂岩和冲绳的 Katsuren 石灰华。 总的来说,我们尽最大努力创造一个日本材料始终发挥核心作用的空间。
连接南北楼的楼梯有窗。 我们给楼梯一个平缓的倾斜度和相当深的踏板,以创造一条运动线,暗示两个空间无缝连接。 这座房子的关键是要小心处理庭院花园视线的任何变化。 因此,楼层可能会在您毫无察觉的情况下发生变化。
我们不想根据建筑标准法建造日本城市所要求的普通防火结构,所以我们将建筑分散在 330 平方米的宽敞场地上,这意味着它可以作为
防火 [/ i] 结构代替。 我们对法律细节的一丝不苟的关注使我们在处理外墙和屋檐的木制部分以及室内天花板方面获得了相对自由,这对整体设计做出了积极贡献。 在寻求增加城市地区木结构建筑或柱梁建筑的数量时,日本建筑师有义务满足当局的耐火标准。 但由于许多规定可以和不能使用天然木材的地方,使用更多木材的建筑和柱梁建筑(在乡村相对容易实施)在城市根本行不通。
然而,城市街道中有一些非常可悲的地方,这些街道完全由具有适当耐火水平的建筑物组成。 我们希望明确阐述木结构建筑在城市地区面临的各种挑战,然后寻求解决方案。 具备必要技能的木匠是任何解决方案的重要组成部分。 最近对简化和效率的追求,以及由此产生的预切木材和现成接头的使用,促使工艺水平普遍下降。 因此,执业建筑师有三重职责:我们必须向世界宣传熟练木工的奇迹,帮助培养拥有自己切割和塑造木材技能的木匠的个人创造力,我们必须让他们有机会运用这些技能 工作。
项目设计:New Material Research Laboratory
项目面积: 313.2501349m²
项目年份:2022
项目摄影:Masatomo Moriyama
首席建筑师:Tomoyuki Sakakida, Aki Tsumura
结构工程:Masaki Structure Laboratory Limited
承包商:MIZUSAWA KOMUTEN INC.
花园设计师: Ueyu
项目国家: Japan
设计师:New Material Research Laboratory
语言:英语
客服
消息
收藏
下载
最近




















