知末
知末
创作上传
VIP
收藏下载
登录 | 注册有礼
知末案例   /   餐饮空间   /   甜品店

福州福清余方方的甜品店丨中国福州丨黄文星室内设计工作室

2022/01/22 13:20:00
查看完整案例
微信扫一扫
收藏
下载
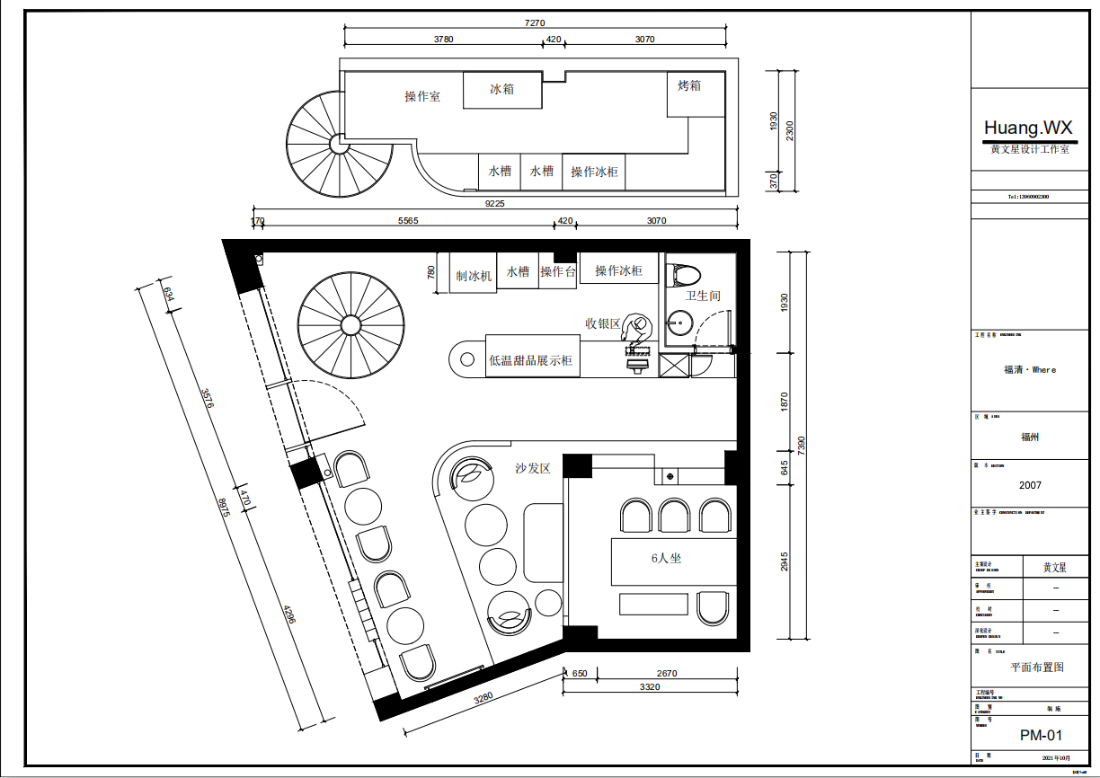
【项目名称】福州福清余方方的甜品店
【项目地点】福建福州
【项目设计单位】黄文星室内设计工作室
【面积】60㎡
【设计说明】甲方喜欢撞色,所以我选择了红与蓝经典的配比色
福州福清余方方的甜品店丨中国福州丨黄文星室内设计工作室-5
福州福清余方方的甜品店丨中国福州丨黄文星室内设计工作室-6
福州福清余方方的甜品店丨中国福州丨黄文星室内设计工作室-7
福州福清余方方的甜品店丨中国福州丨黄文星室内设计工作室-8
福州福清余方方的甜品店丨中国福州丨黄文星室内设计工作室-9
福州福清余方方的甜品店丨中国福州丨黄文星室内设计工作室-10
福州福清余方方的甜品店丨中国福州丨黄文星室内设计工作室-11
福州福清余方方的甜品店丨中国福州丨黄文星室内设计工作室-12
福州福清余方方的甜品店丨中国福州丨黄文星室内设计工作室-13
福州福清余方方的甜品店丨中国福州丨黄文星室内设计工作室-14
南京喵熊网络科技有限公司 苏ICP备18050492号-4知末 © 2018—2020 . All photos and trademark graphics are copyrighted by their owners.增值电信业务经营许可证(ICP)苏B2-20201444苏公网安备 32011302321234号
客服
消息
收藏
下载
最近