查看完整案例

收藏

下载
Camel Step贸易和工业有限公司于2013年在沙特阿拉伯建立起了专营咖啡的市场,旨在提升当地的咖啡品质。
▼项目外观
有史以来,人类的日常生活就和生态系统有着千丝万缕的联系。人们依赖自然母亲的礼物作为原材料,并根据需求将其转变成各种形式。除非进化到顶点,人类将会一直发展同样的原材料来满足不同的需求。Camel Step坚信使用地区天然生产的材料能够创造出一种本土的氛围,与自然建立起和谐的连接。
▼入口
▼弧形的开口
▼从拱形窗口看向室内
▼材料细部
▼进入半室外座位区
艾卜哈是一座丰饶的城市,拥有丰富的野生生物。当地居民从定居开始,就通过资源再利用来保护这里的自然。Al Dabba便是范例之一,这是当地产的一种南瓜,人们会将其风干以用来保存酥油或其他乳制品。设计希望为顾客打开一扇窗,让他们在享受独一无二的咖啡体验的同时,感受当地的氛围,留下难忘的回忆。
▼透过开口看向城市
▼拱形开口边的座椅
▼透过拱形开口形成的独特阴影
▼半室外座位区与室内空间通过玻璃立面分隔
▼室内用餐区
▼长桌
▼灯具细部
▼货架
Asir石等独特的石材以及杜松等树木是该区域历史的支柱。然而,加工这些元素并非易事,因为它们十分坚固,这也是直到最近当地人才开始使用这些材料建造房屋的原因。项目外观采用独特的设计理念,与之相对,室内柔软的圆角边缘呈现出了一种矛盾的坚固感,在材料的限制下定义出了某种特定的概念。
▼咖啡柜台
▼室内材料细部
▼轴测图
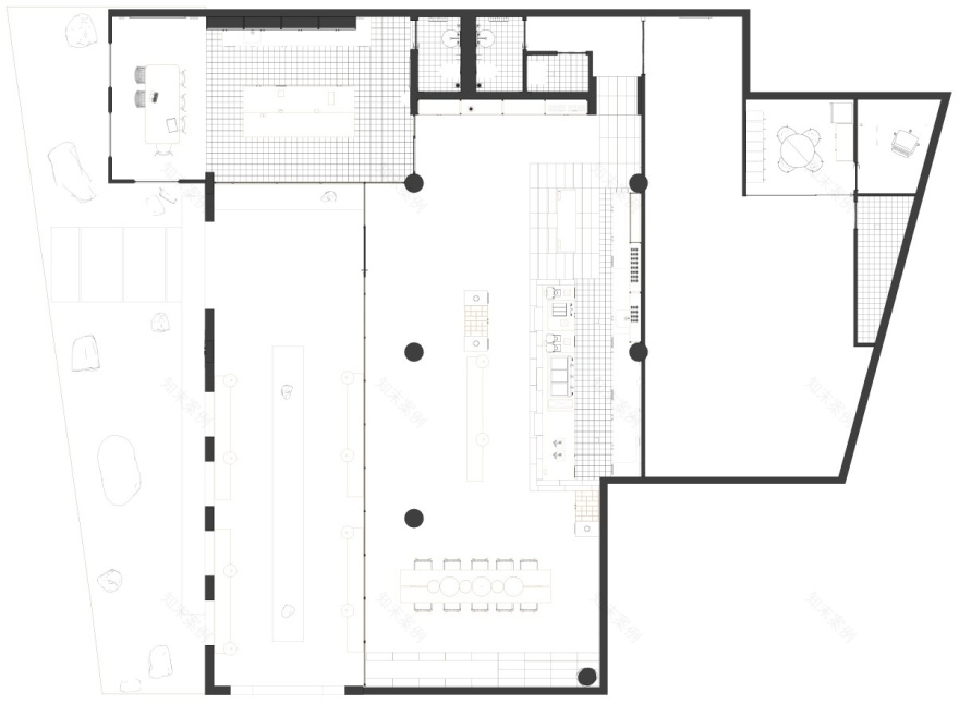
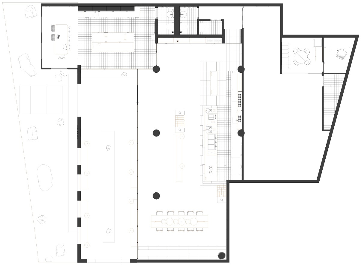
▼平面图
▼外立面图
项目名称:骆驼步咖啡烘焙店
客户:骆驼步公司
设计:Faris Alosaimi(骆驼步创意团队)
地点:沙特阿拉伯阿布哈
面积:370平方米
年份:2021
摄影:曼索·阿尔索菲
很棒的设计,设计手法也可圈可点,只是少了些特质,依然有同质化的痕迹精彩案例!!!
客服
消息
收藏
下载
最近


























































