查看完整案例

收藏

下载
在建造一个仓库来存放建造乡间别墅的材料和工人的过程中,建筑师 Júnior Piacesi 找到了在空间中创建一个阁楼的机会,以享受被大自然包围的宁静日子,因此 Casa Branca 附楼诞生了。
附楼以其温馨、舒适且与自然融为一体而令人着迷。 该住宅位于米纳斯吉拉斯州布鲁马迪纽地区,采用中性色调的涂料和白色水泥,搭配木材、亚麻和棉花等自然纹理,带来不同尺度的舒适感。 一个重视自然采光和与自然联系的实用环境,涵盖整个空间。
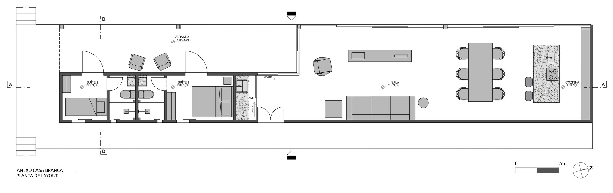
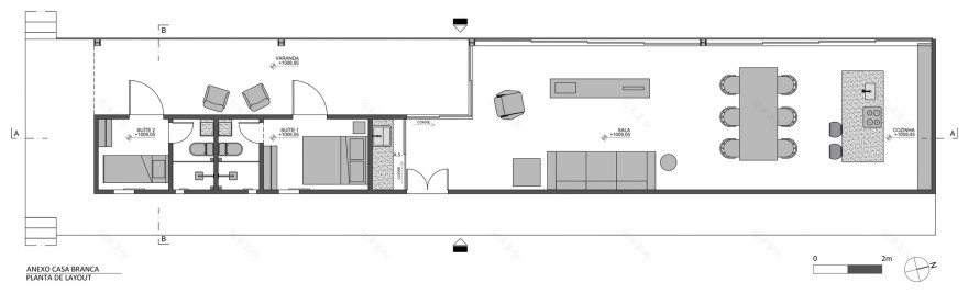
110 平方米的阁楼采用线性布局,通过阳台将私密区域与社交区域分开。 套房的门经过伪装,打开后展现出质朴而优雅的建筑风格。 该体量位于场地中央,可以看到社交区域的树梢,创造了一个净化灵魂的场景。
厨房采用独特的白色涂层,无论是装饰还是烹饪,都提供了一个实验空间。 手工制品、陶瓷和皂石盘通过有效的装饰来装饰空间,尊重米纳斯吉拉斯州的文化。 该岛是一个工作区和快餐区,还配有迷你冰箱、炉灶、水槽和橱柜。
项目设计:Piacesi Arquitetos Associados
项目面积: 110.2501349m²
项目年份:2022
项目摄影:Estúdio NY18
供应商: Allmad, Arca garden, Ateliê da Vila, Aveia Tapeçaria, CJ Marcenaria, Ed Mármores, Gabinete galeria, Giardino Plantas, Magalhães Pinturas, Marmoraria Phoenix, Orné Objetos, Studio Tertúlia, São Romão, Thales Pimenta, Vênica casa, iluminar
首席设计师:Junior Piacesi
项目成市: Brumadinho
项目国家: Brazil
设计师:Piacesi Arquitetos Associados
语言:英语
客服
消息
收藏
下载
最近























