查看完整案例

收藏

下载
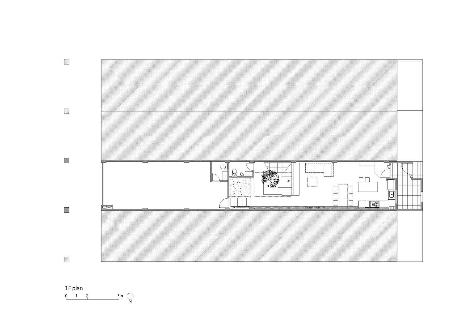
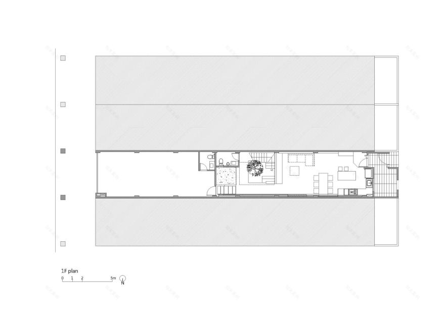
项目基于一座几十年历史的排屋,总长度为 30 米,并与街区的其中一间排屋相连。原始建筑结构分为前后两部分以及中间的采光井。原有的光井只起到了补充采光的作用,四周都是楼梯、卫生间等负空间。排屋正面面对狭窄密集的商业街,后院作为房屋的正门。
除了提供采光,我们让光井成为一个户外广场般的核心空间,而家庭生活在光井旁展开。 原本封闭的楼梯被改造成悬挂在光井周围的一盏灯,所有通向房间的路径都将穿过光井。丰富多样的居家生活场景,如阅读、工作、健身、儿童游戏、影音娱乐等,将作为多层次的平台布置在光井周围。光井中央的树让自然风光在室内得以呈现,同时也将成为家庭的精神象征。
我们希望通过营造户外广场式的公共空间氛围,来凝聚“家”的感觉。家庭成员可以拥有自己独立的空间,并通过光井广场相互问候和陪伴。
在外观处理上,项目设计考虑了整个排屋立面的连续性和完整性,最大程度地保持了原有建筑立面的外观。为了保护隐私,项目增加了一些独立玻璃砖墙的使用。卧室空间布置在靠近街道的一侧,以获得更好的采光。逐层后退的玻璃砖和梯田缓冲了建筑与街道的关系,减少视线干扰并起到噪音阻隔的作用。
我们希望改造后的老房子可以让人们在家中享受户外空间的自由。
文字描述由建筑师提供
译者:Yining Ma
建筑师: 原典建筑
面积: 450.2501349m²
项目年份: 2022
摄影师:Studio Millspace
主创建筑师: Chun Yen Chen
建筑设计: YD Architects
项目国家: 中国
设计师:原典建筑
客服
消息
收藏
下载
最近





















