查看完整案例

收藏

下载
项目名称:重庆邓莽子老火锅
项目地点:新疆乌鲁木齐市
建筑面积:
828㎡
设计公司:乌鲁木齐铭庭世家室内设计有限公司
主案设计师:任源
陈设设计师:
Yolanda Ren
灯光设计:合加力灯饰
文案主笔:
Yolanda Ren
完工时间:
2016年12月
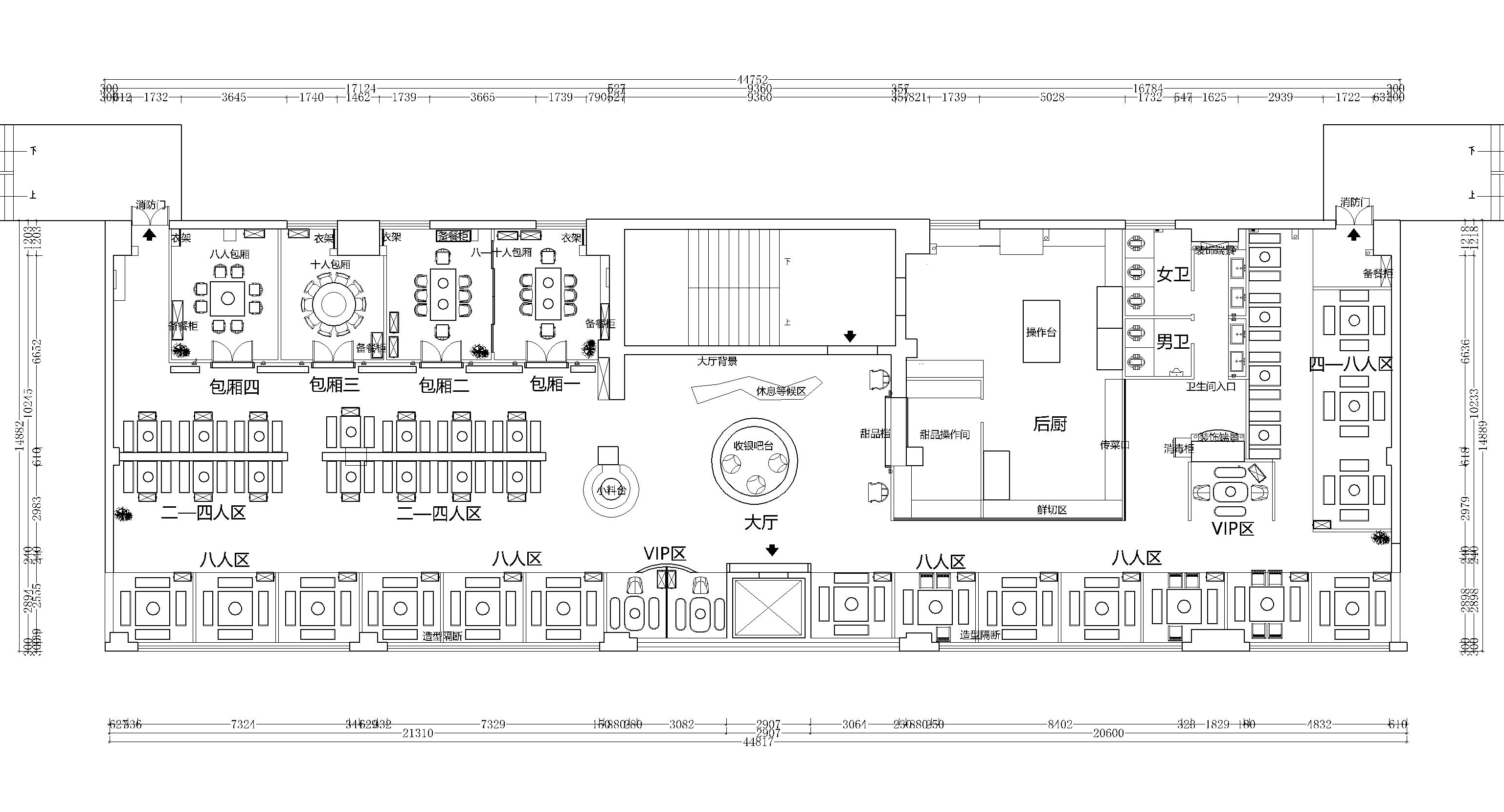
【平面布置图】
从概念设计提案到动画全景效果图,再到实景呈现,我们有幸
全程参与邓莽子老火锅落地新疆,值得欣慰的是,实景效果已初具
“雏形”。
之所以说是
“雏形”,这正是业主与设计师共同期望的起点。
业主希望做成一家老店,所以第一家总是带着新生的希望,带着未来的无限可能;设计师亦深谙空间的成长之道,当3年、5年甚至是10年过去,那渐渐磨损的青石板地面、木质桌椅,和被阳光照射慢慢剥落的漆面,才独具韵味。人与环境共同成长,才是设计之道;食客与店铺共同前行,才是经营之道。
【入口大厅】
入口大厅收银台上方的几百枚铜钱,耗时近一天才制作完成,在灯光的照射下,漫反射出不同光泽,高低错落别致独特,成为吸引眼球的一处亮点。
【左侧卡座】
左侧卡座中间的屏风隔断上,用手绘形式描绘出邓莽子火锅的发展史,
“人生抉择”“信义取向”“初心不改”…
这是企业发展的轨迹,亦是企业文化的内涵。
【左侧卡座】
【左侧中厅】
左侧中厅独特的伞形结构,犹如置身自家屋檐下。盆盆绿萝带来勃勃生机。
【左侧中厅】
【左侧中厅】
【包厢外立面】
包厢以重庆特色地理名称命名,解放碑、朝天门、鲁祖庙、洪崖洞,是不是让你想起了这些著名景点?
【包厢一、二】
【包厢三】
【包厢四】
【右侧卡座】
右侧散台中间分别选取
4副重庆老照片做装饰画,古朴韵味、生动有趣。
【右侧卡座】
【右侧散台】
右侧散台中间分别选取
4副重庆老照片做装饰画,古朴韵味、生动有趣。
【右侧散台】
【右侧散台】
【洗手间休息区】
【洗手间休息区】
【细节图】
定制茶壶、筷子,特色花砖,粗制麻绳、瓦片…
点滴细节中蕴含细致心思。
【细节图】
【细节图】
【细节图】
————————————————————————————————————————————
——————————————————————————————————————————
• 铭庭世家室内设计公司荣誉出品 •
• 您心灵港湾的服务者 •
——————————————————————————————————————————
客服
消息
收藏
下载
最近



























