知末
知末
创作上传
VIP
收藏下载
登录 | 注册有礼

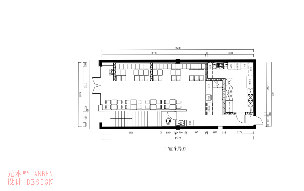
【西安】元本设计-潼关肉夹馍燕郊店

2016/11/16 16:23:00
查看完整案例
微信扫一扫
收藏
下载
门头采用高级灰的水泥木丝板与室内整体风格相协调
【西安】元本设计-潼关肉夹馍燕郊店-1
【西安】元本设计-潼关肉夹馍燕郊店-2
【西安】元本设计-潼关肉夹馍燕郊店-3
【西安】元本设计-潼关肉夹馍燕郊店-4
墙面的老照片向食客门阐述着西安风雨过后仍然屹立着的古建筑
【西安】元本设计-潼关肉夹馍燕郊店-6
【西安】元本设计-潼关肉夹馍燕郊店-7
南京喵熊网络科技有限公司 苏ICP备18050492号-4知末 © 2018—2020 . All photos and trademark graphics are copyrighted by their owners.增值电信业务经营许可证(ICP)苏B2-20201444苏公网安备 32011302321234号
客服
消息
收藏
下载
最近