知末
知末
创作上传
VIP
收藏下载
登录 | 注册有礼

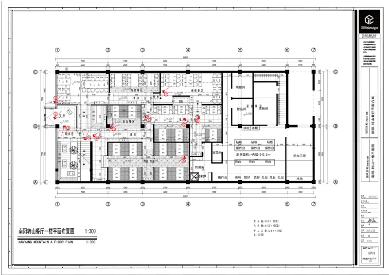
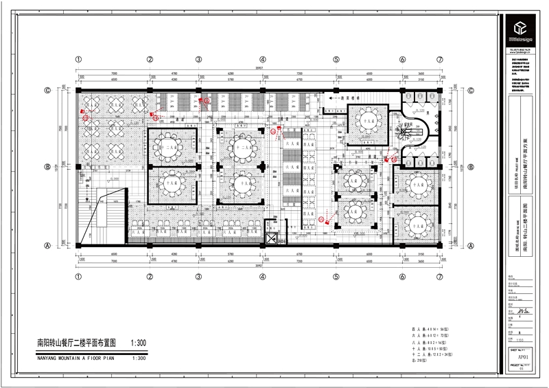
主题餐厅设计-南阳转山主题餐厅设计

2016/09/30 00:00:00
查看完整案例
微信扫一扫
收藏
下载
随着都市生活趋向更丰富、更深层面的发展,餐饮文化和市场消费特征亦同步产生了进一步明确的细分,不断形成特色风格和消费定位的区隔,主题餐厅既是在新型消费形态中卓然而出的颇具生命力的热点业种。经过市场研究、消费调研、喜好态势把握,越来越多的餐饮前辈和新入投资者将视线和营销举动投放到主题餐厅的经营和发展,以鲜明的品牌形象策划、独到的文化渲染、适销的菜系、合理的价格争夺餐饮这块巨型市场蛋糕。伴随着消费心理和文化诉求的变化需求,凭借品牌形象力的积淀和吸引,主题餐厅的定位越发明确而精准,在获取中高档餐饮市场份额上获得了令人瞩目的业绩,并逐渐走向标准化、连锁化经营。北京、上海、杭州、厦门、深圳、广州等地已形成了一批优质主题餐厅先导品牌,并引领着这个行业的高速发展。杭州品尚文化艺术策划有限公司是一家全方位的餐饮品牌策划公司,涉及到主题餐厅设计、民宿酒店设计、品牌SI终端设计、VI设计等诸多领域。是致力于餐饮品牌形象提升、品牌规划推广的的专业策划机构。品尚凭借经验丰富的策划团队和资深设计师担当客户的策略和创作伙伴,先后为杭州绿茶、西宁中秋餐厅、70后饭吧等主题鲜明的特色餐厅完成主题餐厅设计项目,整体效果深受客户以及食客好评。品尚注重餐饮行业消费者的综合体验,帮助餐饮机构从市场定位、餐饮文化挖掘、品牌形象设计、市场营销 策划、人力资源、信息化管理等多方面进行全面规划。为客户打造一套完整的餐饮服务体系。
设计单位∶杭州品尚文化艺术策划有限公司
∶0571-85029429   13858026388(徐页)
公司地址
∶杭州市拱墅区丽水路166号(理想创意园A4)
主题餐厅设计-南阳转山主题餐厅设计-5
主题餐厅设计-南阳转山主题餐厅设计-6
主题餐厅设计-南阳转山主题餐厅设计-7
主题餐厅设计-南阳转山主题餐厅设计-8
主题餐厅设计-南阳转山主题餐厅设计-9
主题餐厅设计-南阳转山主题餐厅设计-10
主题餐厅设计-南阳转山主题餐厅设计-11
主题餐厅设计-南阳转山主题餐厅设计-12
主题餐厅设计-南阳转山主题餐厅设计-13
主题餐厅设计-南阳转山主题餐厅设计-14
主题餐厅设计-南阳转山主题餐厅设计-15
主题餐厅设计-南阳转山主题餐厅设计-16
主题餐厅设计-南阳转山主题餐厅设计-17
主题餐厅设计-南阳转山主题餐厅设计-18
主题餐厅设计-南阳转山主题餐厅设计-19
南京喵熊网络科技有限公司 苏ICP备18050492号-4知末 © 2018—2020 . All photos and trademark graphics are copyrighted by their owners.增值电信业务经营许可证(ICP)苏B2-20201444苏公网安备 32011302321234号
客服
消息
收藏
下载
最近