查看完整案例

收藏

下载
项目地址:中国合肥
项目面积:450平方
设计团队:一尘一画设计顾问
项目设计:左斌
参与设计:刘海波
在这个万物互联的时代,当大量的信息和各类空间可以被轻松搜索和复制。能够通过身体去感知和体验,给人留下记忆的东西却越来越少。在这样的情况下,南村喜舍的空间定位由此产生:营造一个舒适、愉悦的氛围感受,得到一种物质和精神上的领悟。
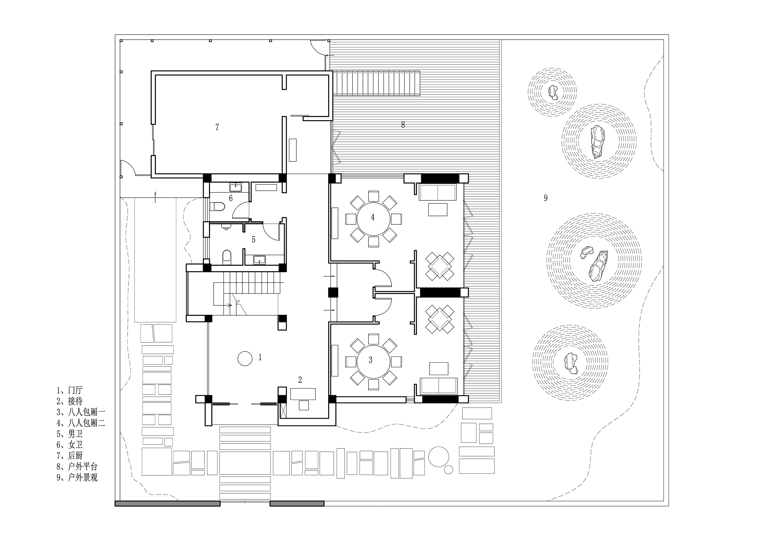
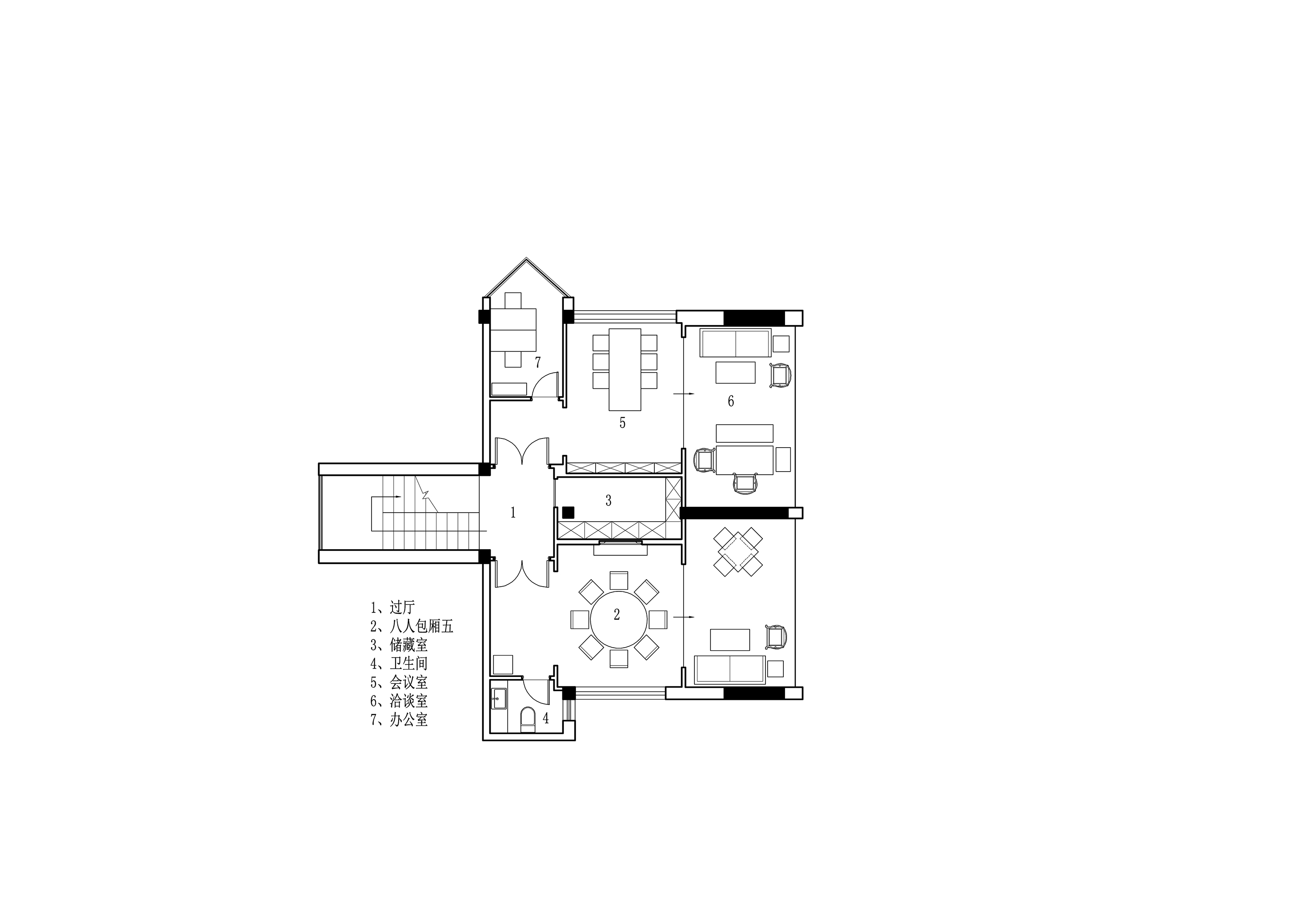
项目位于老城区的中心地带,周边有丰富的绿植。室内与室外的关系,老建筑与新改造的关系,是主要方向。
人对环境的认知是内外连续的整体,从重组关系的角度来重新设计,原建筑空间较为封闭,为了将室外的自然景观引入室内,新建大面积的落地玻璃,引入自然景观的同时,也柔化了建筑与环境的边界。改造基本上摒弃了室内装饰,仅利用“白”整合室内界面,使其恢复到纯粹空间状态,以将自然光的魅力展现到最大。
建筑本身已经是旧建筑,拆除了经过多次覆盖的建筑材料,还原建筑本身的结构。新的改造并没有完全代替旧的建筑结构,而是保留一些建筑本身的记忆,通过新和旧的共存方式,相互映射和交互,增加更多维度的空间体验,由此人、物、空间共同形成一个整体性的氛围。
客服
消息
收藏
下载
最近
























