查看完整案例

收藏

下载

翻译
Firm: Johana Mendoza
Type: Residential › Multi Unit Housing
STATUS: Concept
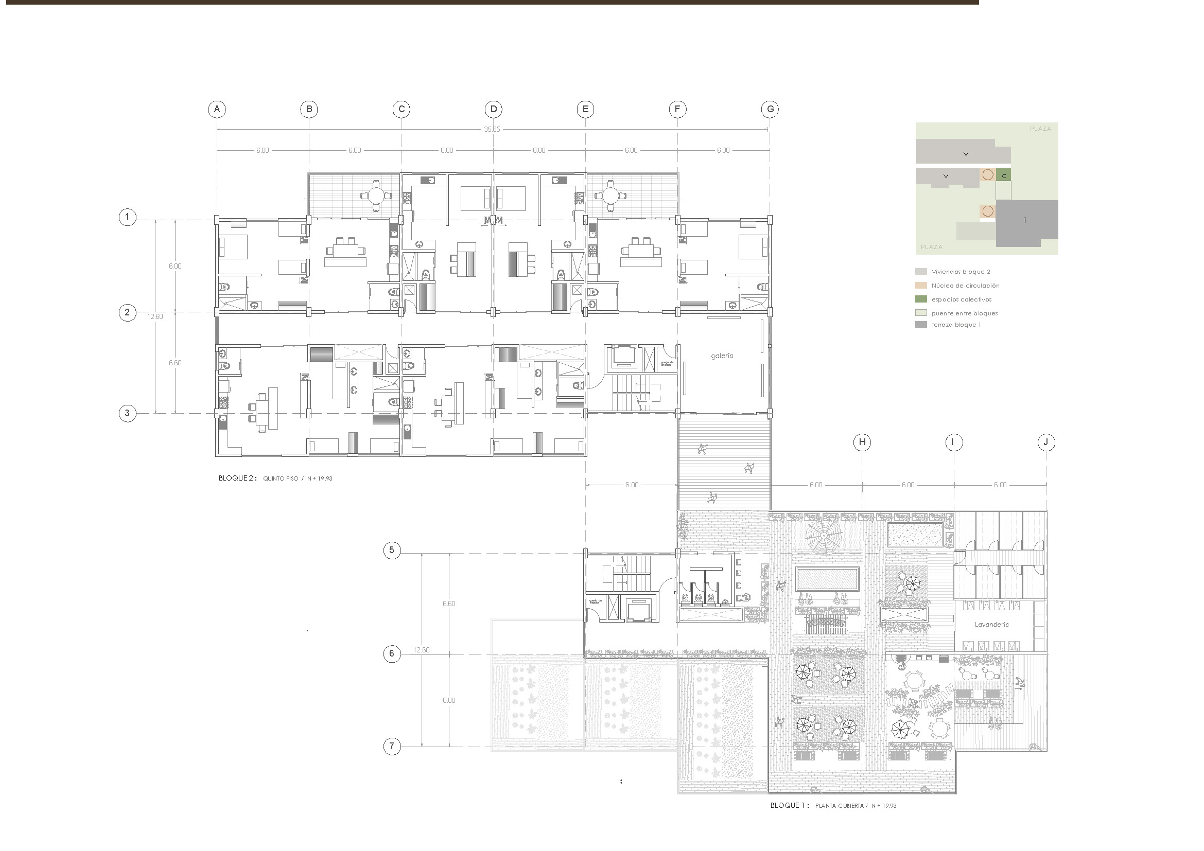
The recovery of lands that are disused in the urban area of cities is the opportunity to project a concentric, sustainable and sustainable city. Aligned with this strategy, our proposal proposes to start promoting social architecture that generates diverse habitable scenarios without forgetting the essence of the urban center in San Carlos.
客服
消息
收藏
下载
最近









