查看完整案例

收藏

下载
溯源,文化之合
自古诗歌中的庐山俨然成为文人笔下的世外桃源,陶潜抒意“采菊东篱下,悠然见南山”,鲍照直言“松桂盈膝前,如何秽城市。”看得见的山水,望得见的乡愁,庐山在岁月长河里熠熠生辉,凝固成为一种集体记忆。
项目起名【初晴山院】,源自唐代诗人王勃《仲春郊外》中:“初晴山院里,何处染嚣尘。”置身历史文化记忆的精神归属地,因此在设计之初,便带着虔诚的人文情怀,追溯文化的渊源。
01此次项目是民国时期遗留的老建筑,主体楼为原英格兰教会旧址,建于 1900 年,经百年历史沉淀。
因业主改造需政府部门和文物保护单位的审批,允许在现有的条件下,以保留文化建筑的历史性,对建筑外观进行修复和出新的同时,提升建筑质量以及基础设施,创造基于民国时期背景之下的特定场景的民宿体验。
在建筑与庭院的相互呼应之下,视角由外向内一步一景。庭院是容纳万物共生的栖息之所,室外庭空鸟语,莳花弄草;室内静心惬意,一隅清欢,不时微风拂过绿意,将盎然生机尽收眼底。景致交叠,小筑院落,一下雨,满眼的绿此起彼伏,格外有诗意。
02- 软风烟雨,万物沉静,在接待大堂温暖的壁炉与舒适的休憩阅读区域随心而坐,与友人促膝长谈,翻半本没看完的书。直至深夜,枕着星光入睡。
信步徜徉于宽敞的公区,以自然酝化而出的传统文化为线索,借景于不同的角落、间隙。
服务台背景墙在三四个手作藤编点缀下低调简素却又生机勃发,老陶罐当做摆件,处处匠心独运,颜色层次递进的砖面墙在一众谦虚而低调的配置中展现着自己的个性。
有节奏的延伸出木格栅背景柜,将空间做了个虚晃的划分,陶罐与书的澄澈清爽之感在内外空间中萌生,随着光线的明暗流动氤氲出独有的肌理质感,丰富了空间体验。
现代质朴的沙发、硬朗随型的茶几,中古木椅沿着动线齐整分布,搭配了些许绿植,共同营造出一种自在融合且有意境沉淀的韵味。
空间在温润的包裹之下,没有喧嚣与匆忙,给予到访者温柔守候。在诗意自然的怀抱里,望山、见水、聊寄。阳光晴好时,暖上一壶茶,翻看一本书,感受阳光细细密密地洒在身上,静享独处时光。
附楼的下沉区,是餐厅意识的转换指引,圆形吊灯在岩洞一般的餐厅中,创造着景致的循环相生。未经打磨的粗粝纹理,新旧表达的碰撞间,石、夯土等天然材料的使用,是为了尊重当地天然的生态系统和生物多样性的可持续性概念。
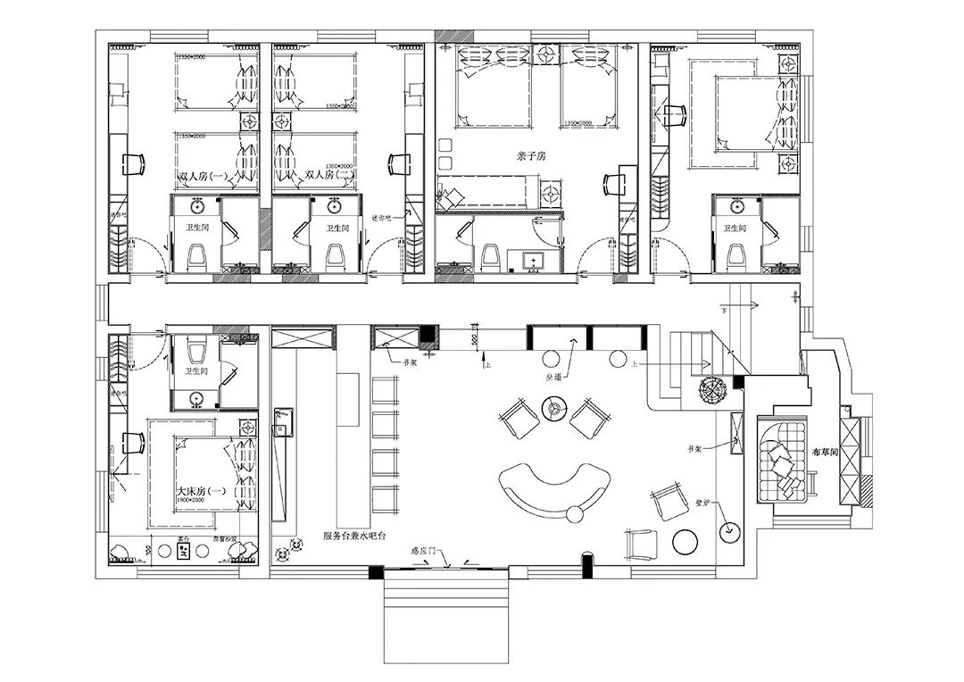
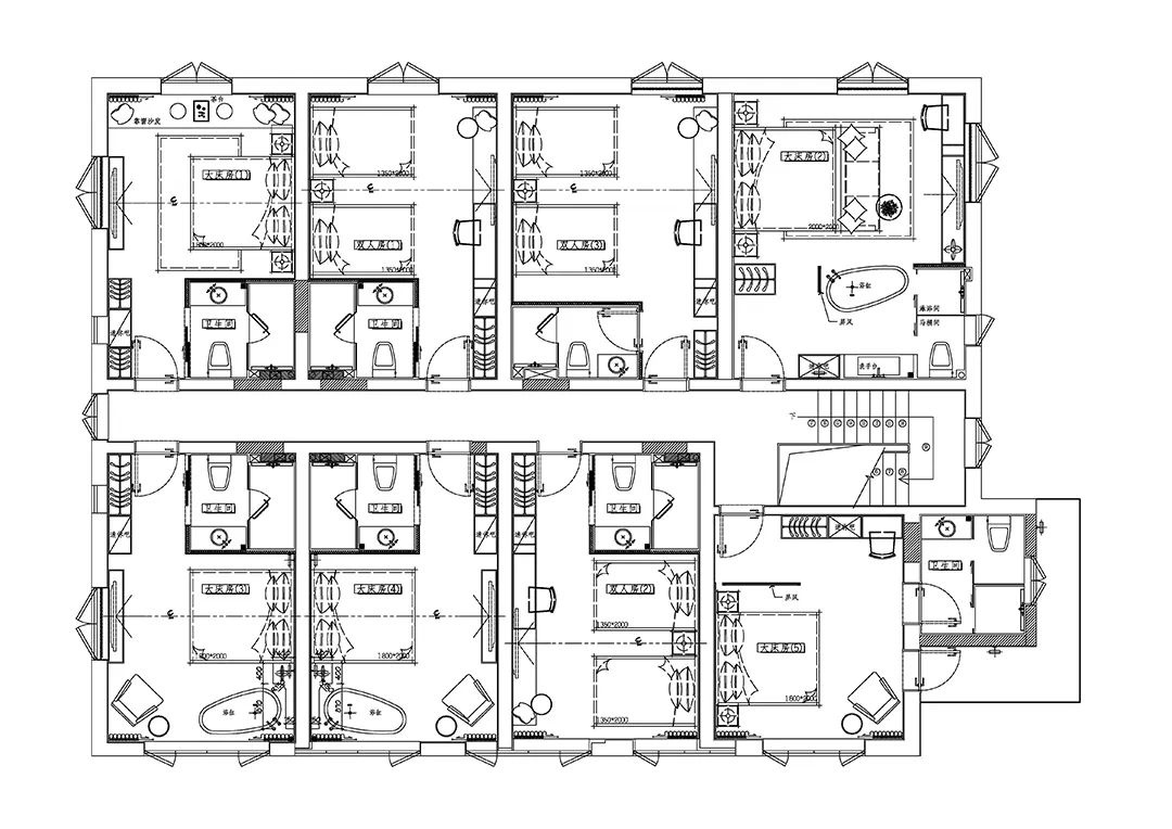
03室内规划随着空间的转移,产生了动态的变化。每个客房天花的多样格局,是老建筑留下的特色,将建筑的原始形态自然袒露,穿插于线条之中,构筑出不规则的几何美感。
白昼将空间尽可能多的照射于阳光之下,光源投过纱帘转译为精神能量,温养提供修复的睡眠场域,流入人的梦境之时,便是一片温柔细腻,仿佛静止的时光,在山的怀抱里温习恬静生活。
面对空间不规则的格局范围,设计师以木质屏风隔断来重新定义视觉空间大小。木质格栅将仅存的墙体雕琢出几何形态,优化了空间结构,同时又变化成柜门,艺术性修饰了美学视角,也留给光影随性而动的自由。
空间墙面颜色均以白为主,木质感的半墙围合,素朴却丰满,简单又舒适,形成与墙面呼应着的颜色层次维度。床头半裹于镂空的木体中,复又笼罩于藤编灯光下蓉蓉炽热,保护式的叠加设计带给入睡者更多的安心感。
时间长河经历变动,经过空间的润色和洗礼,逐渐转化为人们心灵深处的那一份刻骨而绵长的印记。回望设计,它就隐匿在山海浪漫,花前月下,不加矫饰,不增色彩,化作奇妙的魔力,形成兼具灵魂与力量的整体。
- 项目名称 -
初晴山院民宿
- 设计机构 -
太谷形上
- 主创设计 -
王光辉 刘小羿 艾益忠 朱贵敏
- 参与设计 -
李文强 苏良海 许珊 朱华丽
- 项目面积 -
室内 580㎡
园林 640㎡
- 项目地址 -
江西 九江庐山
- 项目摄影 -
本末堂
王光辉太谷形上设计创始人
艾益忠
主创设计
刘小羿
主创设计
太谷形上(Taigorge Design)由王光辉先生创立,自 2010 年成立以来,一直专注于商业地产设计,目前已与融创、龙湖、金科、中粮、远洋、正荣、荣盛、北大资源、绿发、正商等一线开发商建立战略合作。公司以合伙人制度吸纳更多专业的设计与管理人才,融合空间设计、商业策划、项目管理等多元领域,致力于为品牌开发商提供商业地产设计研发及顾问服务,探索当代设计与商业价值的更多可能性。
客服
消息
收藏
下载
最近










































