查看完整案例


收藏

下载
A family of two adults and three children living in a house in Paris approached the firm to design a vertical extension with a roof terrace for their home.
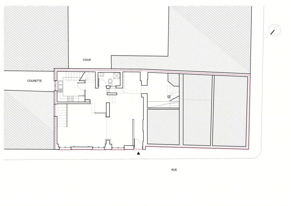
The existing residential property is a combination of an existing house, owned completely by our clients, and a small housing building connected to the house by a room per floor. It is the result of the previous owners having a two floor apartment in the building and then buying the house next door to connect both properties to create a bigger home.
This resulted in a situation where the house was organized as a linear sequence of rooms forming a circulation loop passing through the house without any corridor whatsoever, with a condition of no intimacy in the bedrooms.
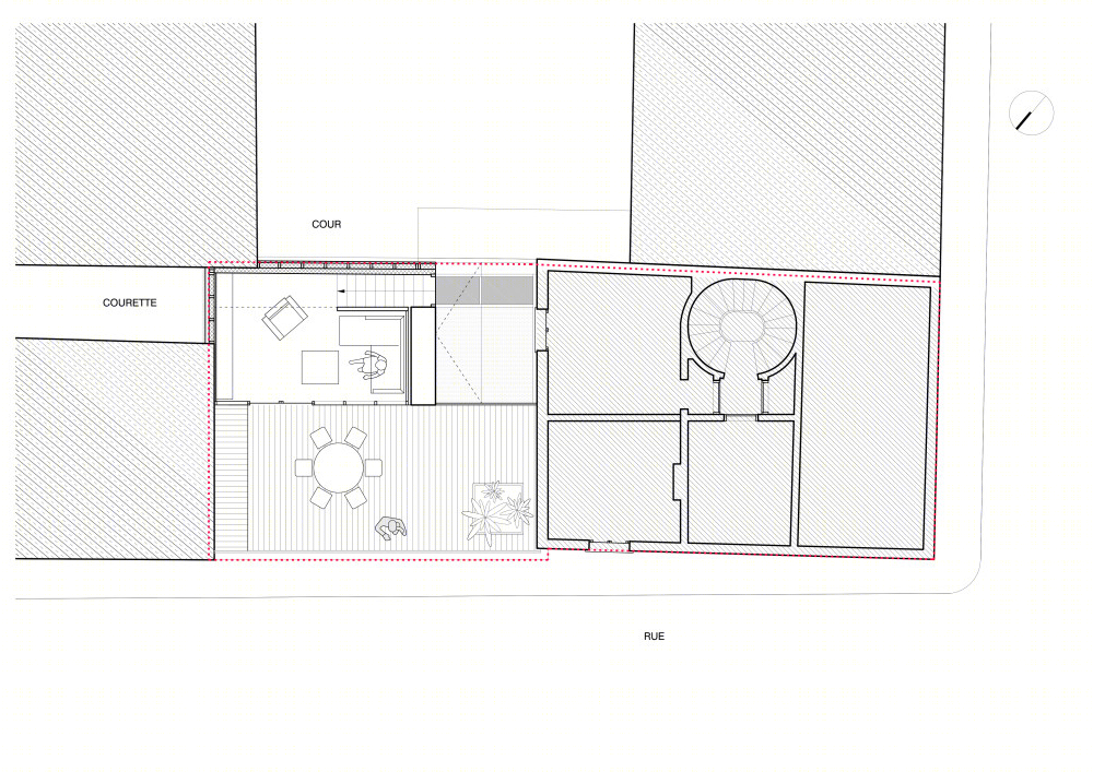
The main idea of our client was to create a flat roof for the first floor of the house, which had a reverse pinch roof, in order to take advantage of the floor plate in its integrity. By doing this, a roof terrace could be created for the home.
We approach the project with a necessity mindset, so the first operation was to rationalize the vertical circulation of the house by introducing generous spiral stair case right in the middle. This allow us to minimize the circulation and optimize the spaces of the house: bigger kitchen, 4 independents bedrooms and the roof terrace with a family-room. The new organization of house translates into a roof-surface mirroring the internal flow of the dwelling which allows light to enter deep into the dwelling, and to connect seasonal changes with interior atmosphere.
The new intervention was constructed entirely in wood in order to construct as light as possible. Initially the inclined surface roof was meant to be habitable as well, so having two roof terraces levels, but the town hall of Paris demanded a green-roof instead. They also requested to re-use rain water collected from the roof for the terrace gardening.
项目完工照片:
平面与结构图:
效果与概念图:
待补充……
设计师:Alejandro GARCIA MARTA
坐落:Paris / France / 2020
语言:English
客服
消息
收藏
下载
最近

































