查看完整案例

收藏

下载
江南旧游凡几处,就中最忆吴江隈。华润盛家厍位于苏州——这座钟灵毓秀的城市,厍,音通舍,古代皆为村落之意。早在千年之前,这里就是春花酿酒、春水煮茶的浪漫之地。其丰富的文化底蕴为城市增添了浓墨重彩的一笔。尽管时代洪流滔滔向前,古典东方美学却不曾被湮灭,反而随着岁月积累,将传统意蕴与现代化建筑相结合,谱写出新时代的东方美学。
初探玄关,犹如滴墨洇染宣纸,层层浸染,深色木格栅正如起笔,由此铺陈开素色的肌底,寥寥几笔,已然勾勒出东方审美的意境与神韵。
再漫步入客厅,雅白、墨色、深木色横竖交错,灰白色石材上流动的染墨线条似山似水,正是这四方空间的点睛之处,犹如一个文人墨客的豪迈挥笔,光影婆娑间,酒香四溢。令人身居此间,放下自我,感受到平和与归属,恍然不觉时光。
与旧时美学对望,多彩的丝线盘踞在客厅另一侧,以柔和的织物触感碰撞当代质感,钩织着隽永的情感落点,将生活痕迹融于室内,入目皆为人间锦绣,似流光溢彩,如云蒸霞蔚。
青山隐隐水迢迢,秋尽江南草未凋。朝朝暮暮、岁岁年年。烟火市井,人间至味。餐厅空间通透大气,浅色大理石岛台餐桌与深木色柜体的体块穿插表达,又留出恰到好处的余韵。疏窗锁绿叶,这流纹石桌上安放的就是俗世寻常。
主卧运用了柔和的色系和触感材料,删去了繁琐的修饰,打造典雅内敛的空间氛围。凭栏相望,窗楹恰如画框,锁住了江南的粉墙黛瓦,装点了归家人的梦境。
这一方镜自天垂落,与疏窗遥遥呼应,仿若正有伊人当窗理云鬓,对镜贴花黄。莺声燕语远行,浮光意蕴盈余。
次卧延续东方含蓄的表达情绪,空间留白却有层次感,移目远望,美景尽收眼底。
一草一木皆是风情,一屋一隅轻拢烟火。当岁月不再是一种象征意义的虚无,我们用现代化的建筑语言将时光里存留的诗情雅意表达,让生活回归本质,隔着千年的岁月,两界星河间似有缥缈仙气,还归烟火人间。恰恰正是江南风景像,绿杨白鹭俱自得,近水远山皆有情。
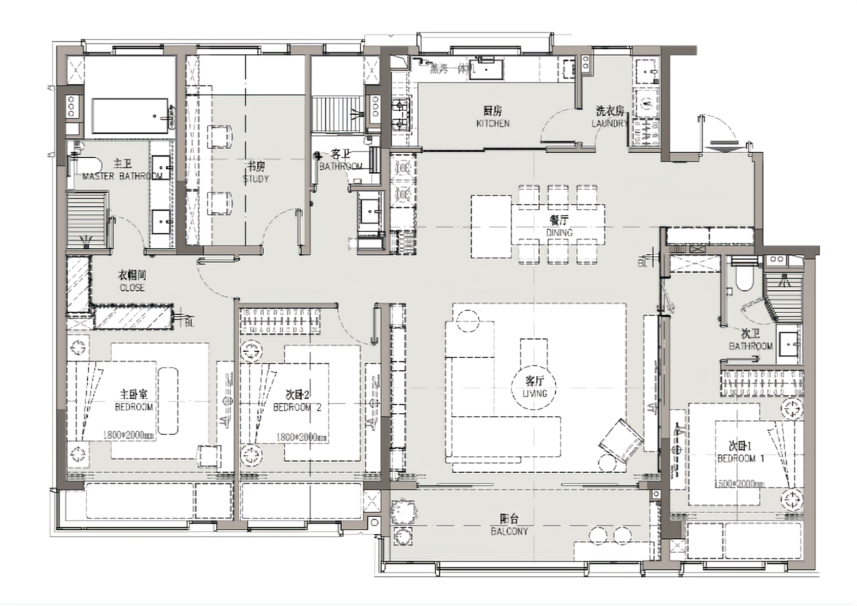
△项目平面图
项目名称| 华润吴江盛家厍展示样板间项目
开 发 商 | 苏州润城盛家房地产有限公司
设计机构| 上海飞视设计
硬装团队| 吴紫雁、甘耀云、马楠
机电团队| 韦蓉蓉、张建成
项目摄影| 三像摄
项目地址| 苏州市吴江区通虹路南、虹桥河西
面 积 | 185.2501349㎡
主要材料| 石材、金属、木饰面、壁纸等
上海飞视装饰设计工程有限公司
Shanghai Face Decoration Design Engineering Co., Ltd
公司地址上海市徐汇区肇嘉浜路736号/龙头大厦5-7楼四川省成都市高新区蜀锦路88号/新中泰国际大厦2702室
客服
消息
收藏
下载
最近






















