查看完整案例

收藏

下载
金城兰州 丝绸之路上一座悠远沧桑的不老之城。透过古老丝路上的遗物、文物,可探索“弛命走驿,不绝于时月;商胡贩客,日款于塞下”的繁华岁月。
丝绸之路,中国与世界其它地区之间贯穿古今的海上和陆上通商以及文化交流的区域,这是汉朝的正式官方使节达到的最远的国家,这条路线联通了西方和汉朝之间的联系。
中国的丝绸、瓷器、陶器、茶叶等大量珍贵产品和科学文化,除通过横贯大陆的陆上交通线路大量输往中亚、西亚和非洲、欧洲之外,也通过海上源源不断的销往东亚、大洋洲、美洲和世界各地。
西北独有的文化与环境,塑造出西北人的热情和勇敢。荒芜的沙漠,一抹彩霞,一抹绿洲,驼铃声响,遍布金城。
敦煌是多种文化融汇与撞击的交叉点,中国、印度、希腊、伊斯兰文化在这里相遇。敦煌是艺术的殿堂。唐藏(金光明经疏)中云:“外国呼神亦为天。”印度中把空中飞行的天神成为飞天。飞天多画在佛教敦石窟壁画中。敦煌飞天是敦煌莫高窟的名片,是敦煌艺术的标志。
黄河水奔腾不息,牛肉面日夜飘香。这就是昔日的
“金城”,如今的甘肃省会:兰州。来到了兰州城,你的双脚,已经踏进了历史与现代的长河中。可否“把酒言欢,漫行西北。”
作为宏建集团 始终坚持“以人为本、科技为先、创新为魂、追求卓越”的经营理念。用其独特的语言来书写与传承着丝绸之路的历史与文化。
本次设计以和谐,融合为主要风格元素,取自丝绸之路精神,五色交辉,相得益彰;八音合奏,终和且平”。自然闲适的原木空间,悠然自得。以新中式风格为主,融入当地特有的人文文化,民族风情等意向,实体元素,来规划整体空间。
一层主要为酒店入口和接待功,进门后入眼帘便是大堂中央的室内景观,水景借鉴园林手法营造出一幅壮丽画卷,以明暗光影交叠,形成绵密深深交互,在曲水流觞声中还不移动着,放掉旅途中的疲惫使身与心沉静下来,享受片刻的休闲时光,酒店入口准备接待人员与大堂经理多导向与咨询。
空间内装修采用些骆驼图案,体现中心设计主旨,融入整个建筑与设计的灵魂中。哲人曾说过,骆驼有两种精神:一是相信沙漠的那边是绿洲;二是:一步一个脚印,走向希望的绿洲,骆驼,不会像骏马那样激䀚嘶鸣。
酒店作为一个综合性的酒店,规划性全面,所以整体建筑设计分为两大部分,客房区域与其他业态,划分明确,布局有序。更加有利于酒店管理与消费者的消费体验。
早餐自助餐点区对外以自助形式开放,设有散座、卡座。
吊顶层次有序,俨然一副气势磅礴的山水画。绿意环绕其中,金属与水晶质感的点缀,展现出极具现代感及反衬的效果。
通过传统文化的认识,将现代元素和传统元素结合在一起,以现代人的审美需求打造富有传统韵味的事物,让传统艺术在当今社会得到合适的体现。设计风格统一,流线通畅,保持空间的完整性和通透性。
从环境建筑本身出发,追溯历史源流与美学积淀,研究空间与人的交融与互动,以现代手法,东方精神实现空间的优雅、质感和温度,运用灯光和色彩来体现空间的氛围。
客房设计结合东西方古典与现代元素形成新中式新一代装饰风格。现代颜色与配饰中区分,整体而统一,在对比美感中掌握的基础下,创造出丰富的场景和新华丽的面貌。
一座沙漠荒野之城,体验到不同的历史文化古迹、佛法博大精深的传承以及岁月沉淀的气息。一撇一捺描绘着兰州特有的热情与古朴。
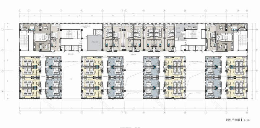
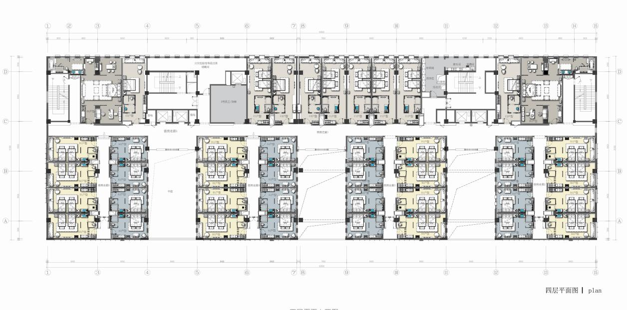
平面图
项目信息:兰州宏建
·美仑国际大酒店
项目地址:兰州新区黄河大道西段4429号
项目面积:16000平方米
竣工时间:2020年
设计单位:杭州经八度环境设计有限公司
主案设计:李中伟
摄影师:李孝增
李中伟
品牌创始人
·执行董事
客服
消息
收藏
下载
最近




































