查看完整案例

收藏

下载
像是住进一块**酪的家,给平淡日子里偷偷加了糖。位于广州繁华闹市,一切暮色归于灯火。一对 90 后年轻夫妻在这里展开人生下一阶段的甜蜜之旅。
充满治愈系的家,设计师为我打造了一个深夜食堂。
01 不设限的公区,拥有 happy hour。
入门处的玄关位置,便以半弧造型象征性地引导进家门的人先往左边的换鞋区就坐换鞋,仪式感满满。而玄关处的天花高度是根据中央空调的机身厚度定位,让层高尽可能的高一些,也让两个空间之间的过渡显得错落有致。
拆除原有阳台推门,将空间纳入客厅区域,整体空间更显宽敞。
沙发,ligne-roset
收纳架,Vitra
客厅的弧形灯槽弱化了原有阳台整一个平台下沉的高差;更特别的是墙面的翻页设计,形式不受束缚,视觉轻巧灵动,并转移了原建筑梁位的视觉焦点。
温润的木地板+Ligne Roset 的“脑花纹”贝壳沙发,将客厅温暖的包裹感升级。抬高的多功能房综合了办公、书吧、客房、聚会小吧台等多种功能,也给客厅增加了更多层次感与互动性。
小孩房的圆洞是利用了原有的箱式空调外机洞,增添趣味性的同时,也扩大了空间的采光面;
小孩房与多功能房都有彼此的 AB 面,可以根据场景的需要把卧室的推拉门关上,多功能房的卷帘垂下。
慵懒地躺在柔软的沙发上,正好午后阳光透过百叶窗倾泻入室,闲暇时窝坐在这,享受放松的悠然时光。
客厅旁,吧台与餐桌组成的洄游动线是他们生活中的绝对 C 位。
半开放式厨房,利用上翻窗与推拉门分隔开与合,也让他们家有了一个“深夜食堂”。餐厨改造后,互动性更强,坐在餐桌上可以看到另一半在厨房里的身影,相互感受到彼此的存在。
吧台凳,宜家
吊灯,Flos
#屋主说丨
自由随性的氛围与便捷的使用功能,让屋主对这个空间赞不绝口。项目拍摄那天与他们聊起这个空间,他们说:“朋友来这聚会可以坐在上面喝喝酒,跟煮饭的人聊聊天,就像是在深夜食堂。”男屋主在锅里烤肉烤熟之后径直夹到坐在吧台的女主餐盘里,浪漫无需拐弯。
经过吧台去到厨房的过道同样以“弧形”处理。一来考虑到屋主将来有小朋友后的安全问题,避免磕碰;二来圆弧让空间过度更为流畅,也与家中其他的弧形墙体遥相呼应,统一设计语言。
不喧嚣的私区·拥有 relax time
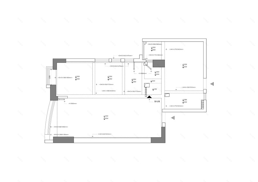
卫浴平面图
●独立出来的马桶间+淋浴间+洗漱间,烘干一体,形成小型且便捷的家政区域。
洗漱间做了一整个大台面,镜柜能够收纳屋主的各类日常用品;台盆底下也可以放置收纳盒。
浴室柜一旁是洗衣机+干衣机的组合。淋浴间出来就可以顺手把脏衣服丢进去,原本的小窗位置也保留了下来。
沐浴间的花洒开关,看似常规却以不常规的方式安装,有别于传统的方式,设计师把水阀开关设计在了壁龛的平面上,就像车辆的旋钮式换挡杆,带来不同寻常的使用感受。
推开主卧门,进到这个家最私密的空间。
主卧同样延续了空间整体的氛围感,柔和而放松的气质尽显。
放空,是匆忙节奏里难有的状态,但对于这个家来说,它是常态。清晨醒来倚靠窗前,能听见鸟鸣,能看见花开,今天也是元气满满的一天。
设计思考
设计团队测量现场后,根据墙体结构、室外朝向,以及围绕客户的生活方式,对高频使用的公区,以纵、横两向进行格局改造:
原户型很有意思,有两个独立的大门,但因此也造成户型的功能区割裂,互动性弱。结合这套房子大部分时间是屋主两人居住,以及他们对书房、吧台、客厅等功能区域的需求,设计师对整个空间进行了重新梳理。
平面改造
1. 纵向
1)首先我们二选一确定了主入口的位置,这样大的空间动线就清晰了起来;
2)考虑到整栋楼是商住两用的模式,人流量较大,我们在入户处设计了玄关,这样既能保证私密性又有玄关的功能性;
3)卫生间一改传统布局,极大扩容了洗漱台的收纳功能外,也给封闭阳台后没有归属地的洗衣机烘干机找到了合适的位置;独立马桶间+淋浴间,洗漱台+洗衣区依次排列开来,彻底实现四分离,彼此之间互不干扰。
2. 横向
1)拆除客厅与书房、厨房、儿童房之间的隔墙,把原本独立封闭的厨房改成半开放式厨房,并新增了吧台,丰富了不同的使用场景;
2)考虑到项目位于广州中心城区,车多嘈杂,因此用系统窗将阳台空间纳入室内,扩容整体公区空间。
3. 风格
1)以关键词“奶酪”贯穿整屋的设计主题,柔和整个家的视觉感受,简洁的线条包容性高,与现代生活的必需品共处和谐;
2)无主灯设计,一个个灯孔和椭圆形的窗户,让人联想到奶酪上的小孔;充满弧度的墙体细节,让整个空间看上去就像是一枚“融化的奶酪”。
设计公司 / 不合时宜设计
主案设计 / 柯辉、陈智超
设计团队 / 吴小倩
施工团队 / 邓堪萍(邓工)
项目名称/ 融化的奶酪
项目位置 / 广州天河·珠江新城
项目面积 / 90 平方米
主要材料 / 木纹砖,芬琳漆,爱格板,大理石
项目摄影 / ALPDRI-业轩
客服
消息
收藏
下载
最近






























