查看完整案例

收藏

下载
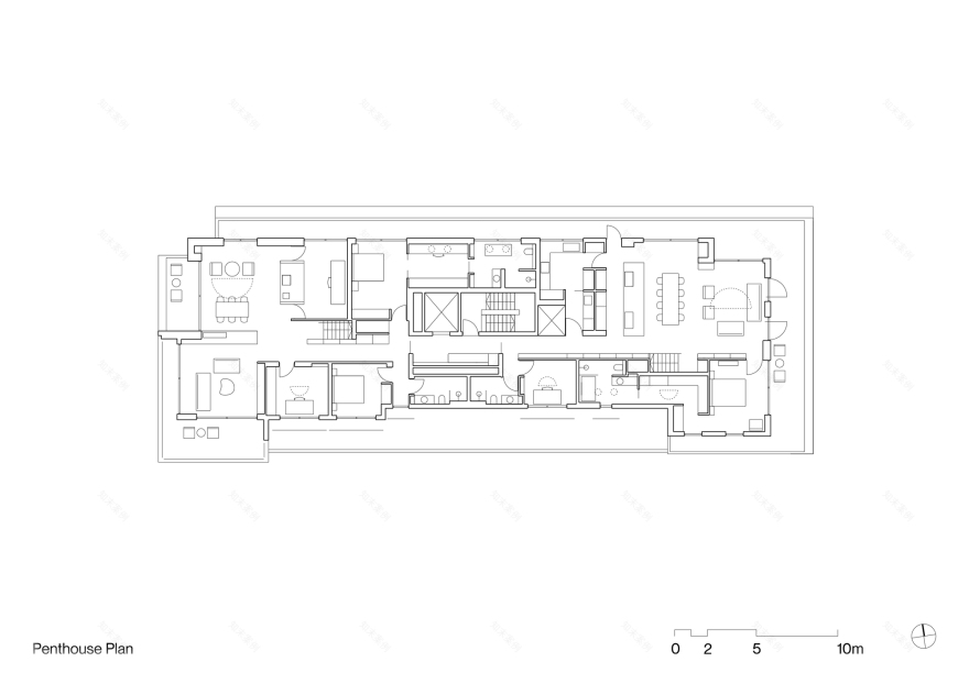
该项目涉及将两套顶层公寓、它们各自的停车场、屋顶和外部空间结合起来,创建一个独特的代际家庭住宅,拥有丰富的灵活生活和工作空间、一个地下室康复水疗中心和两个屋顶苏克凉亭。
一系列关键概念中的第一个是贯穿公寓整个长度的“图书馆脊柱”,用于存放家庭收藏的书籍、艺术品和手工艺品。 图书馆的脊柱也被用来庆祝入口大厅,并在细木工嵌入楼梯时定义水平循环和垂直循环。
第二个关键概念是一系列功能强大但体积最小的“魔盒”厨房,它们可以打开和关闭并划定公寓的不同区域。 它们由抽象颜色定义,与温暖自然的材料调色板形成鲜明对比。 在浴室石雕、壁炉和定制家具中重复使用彩色物品。
第三个干预措施是一系列半圆形的天窗,它庆祝两个主要的生活空间,并参考客户对附近当地装饰艺术建筑的热情。 这种纯粹的几何形状进一步促进了彩色体积所赋予的抽象构图。 整个公寓也参考了这个主题,在需要自然光的地方有较小的半圆形和圆形圆孔。
公寓的东边是主要活跃的社交区域,包括主厨房起居和用餐区,而公寓的西边则不那么正式,有利于放松身心,内部/外部休息室创造了“晚间花园”。 这套公寓也由世代界限松散地界定,西端为家庭的年轻成员和年长者提供隐私。 最后,该公寓也是面向未来的,如果需要,可以在以后沿着轨道一分为二。
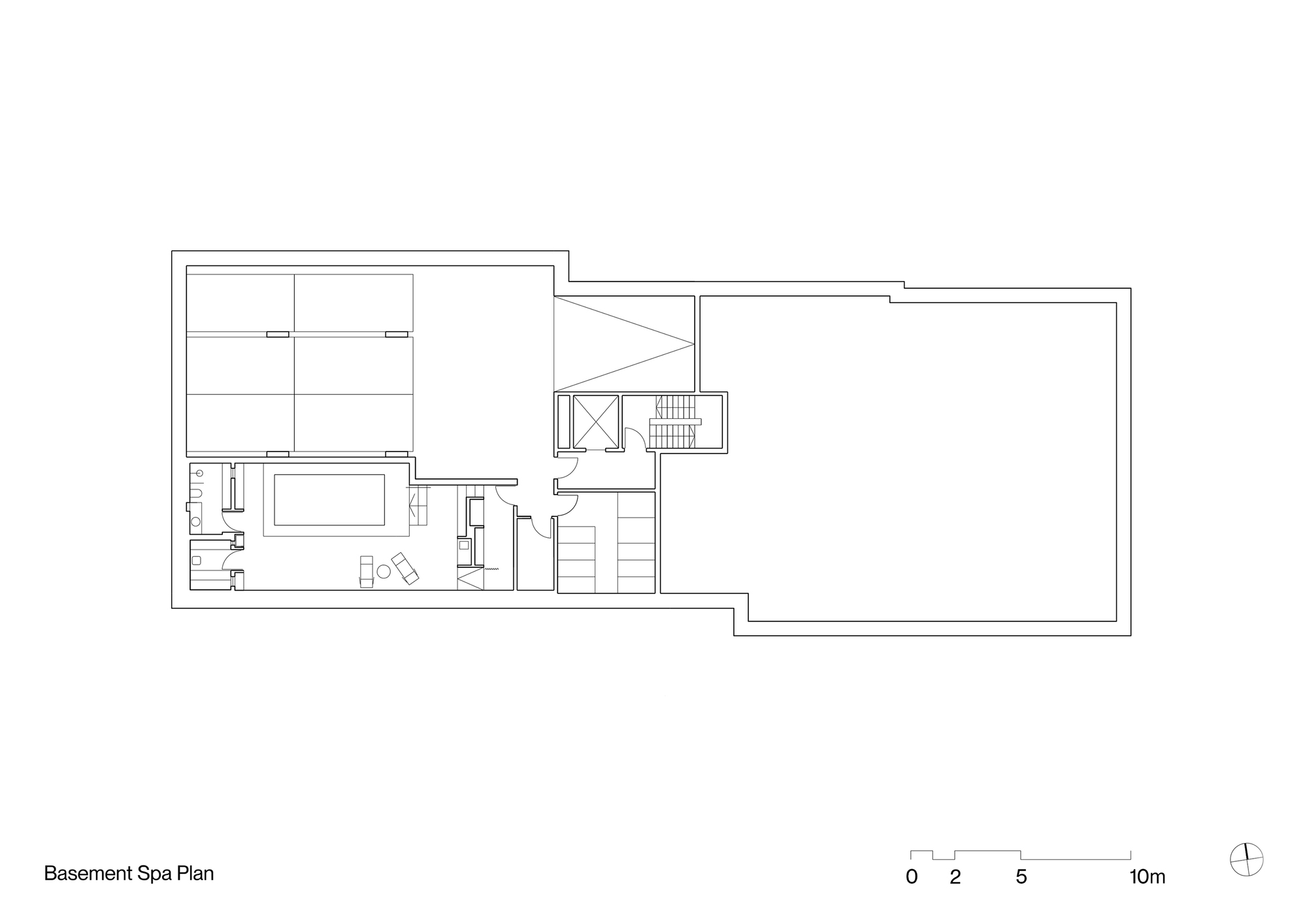
楼下的水疗中心利用地下停车场创建了一个私人健康空间,包括健身游泳池、桑拿浴室、小厨房、更衣室和灵活的康复区。 虽然是一个没有自然光的地下空间,但精心使用大气间接照明、暖色调和天然材料提供了一种类似于芬兰桑拿浴室或日本温泉的整体恢复体验。
在屋顶上,两个“sukkah”凉亭在住棚节期间提供半封闭的烹饪、用餐和聚会场所,并兼作全年使用的一般户外生活空间。 最小的结构具有高度可操作性,带有遮阳墙和竹檐。 展馆位于广阔的户外区域,四周排列着曲线形的花盆和植被,提供私密感和避风的空间,同时还可以欣赏外面的景色。
项目设计:Office Alex Nicholls
项目面积:700.2501349m²
项目年份:2022
项目摄影:Rory Gardiner
供应商: Schüco, Viabizzuno, Vitrosca
项目负责人:Alex Nicholls
Build:Cobild
细木工:Touchwood
项目成市:Melbourne
项目国家:Australia
设计师:Office Alex Nicholls
语言:英语
客服
消息
收藏
下载
最近






























