查看完整案例

收藏

下载
紧随2017年5月开业的citizenM Paris La Defénse旅馆的脚步,位于巴黎的citizenM Paris Gare de Lyon旅馆近日开放营业,也是citizenM酒店集团在巴黎的第三家旅馆。这所旅馆坐落于巴黎最大的交通枢纽巴黎里昂火车站的街区,所在大楼的前身是一栋办公楼,酒店提供338间客房,顶层配有巴黎公寓式的CloudM空中酒吧。
▼酒店位于里昂火车站街区
设计故事
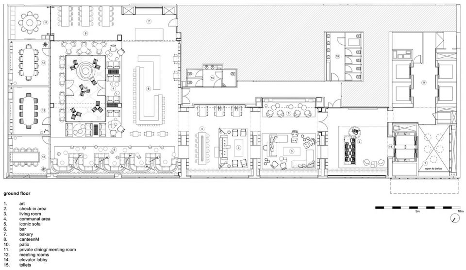
首层包含一个双层高的入口区域,这里放置着艺术家Jetske Visser和Michiel Martens的艺术装置“Reflecting Holons”。魔术气泡随着光线不断地闪烁、移动和舞蹈,引人注目的影像为citizenM旅馆的客人们提供了沉浸式的、富有趣味性的体验。从这里乘坐电梯上升至二楼,客人可以自助办理入宿,进入citizenM旅馆负有盛名的起居室,在那里他们可以工作、休息、聚会和玩耍。第一间起居室配有一个超大的壁炉和定制的地毯,旨在唤起对里昂火车站大钟的记忆。公共区域加入了“卧室套房”的美感,这是一系列细分的生活区域。citizenM旅馆标志性的橱柜点缀着空间,里面摆放着丰富多彩的古怪饰品和来自世界各地的小物件。公共区域则布置着酒店官方家具合作品牌VITRA生产的家具。
▼接待区
▼citizenM旅馆负有盛名的起居室
CanteenM位于客厅的中心,这是一个活泼的空间,你可以在这里进餐、品酒和社交。与所有的citizenM旅馆一样,墙壁上装饰着专门定制的艺术品,包括法国街头艺术家Mast Cora以及由当地艺术家Romain Froquet的壁画。该空间还包括一个天井,吊灯将会议室与吧台分隔开,使光线深入所有公共区域。
▼CanteenM是一个美食和社交空间
SocietyM是citizenM旗下的商业俱乐部,专为想要与众不同工作方式的人士定制。五个会议室,包括位于顶层的一间,皆配有适用于流媒体的智能电视、超高速的Wi-Fi以及白板墙。天空酒吧cloudM坐落于酒店顶层,最早在纽约市的citizenM酒店推出,如今巴黎的旅客们也能欣赏到塞纳河与城市的壮丽景色。空中酒吧效仿了巴黎式公寓的外观,使用了颜色深浅不一的橡木橱柜和软质家具,目的是让客人感觉宾至如归。大理石吧台和玻璃瓶架也为cloudM增添了典型的巴黎风情。
▼cloudM空中酒吧
▼会议室
每个客房都设有特色大床和强大的淋浴系统,以及可以控制整个房间室温、照明氛围、百叶窗、闹钟和娱乐设施的平板设备。在巴黎的新客房,客人可以在房间里获得更高的舒适感,这得益于柔软舒适的床头板,可将巨大床铺变成前所未有的高品质沙发。客人可以在这里看一整天电影,也可以工作到深夜,或者只是慵懒地欣赏楼外的景观。床头板设备齐全,配有集成的灯开关、床头灯和一个可以放置书籍、明信片或心爱照片的架子。一盏柔和的吊灯悬于床头上方的拐角处。客人还可以从平板电脑或智能手机中将个人内容传输到壁挂式电视,不论音乐、电影,或是最新的剧集。每个房间还配备了一个小桌子和各种插头插座,可供多国设备进行充电。与所有其它门店一样,citizenM旅馆和建筑工作室Concrete共同致力于设计,打造出独特的当代酒店。
▼配有强大智能系统的客房
▼床头插座可供多国设备进行充电
与遍布着酒吧、餐馆、精品店及艺术画廊的Marais街区和塞纳河仅几步之遥,citizenM旅馆是享受文化和商务活动的理想场所。所有拥有冒险欲望、独立精神和优雅品位的人都会在巴黎里昂citizenM旅馆中找到属于自己的一片天地。
▼城市中的庭院空间
▼首层平面图
▼顶层平面图
客服
消息
收藏
下载
最近



















