查看完整案例

收藏

下载
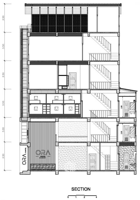
最新建成的Ora旅社为来曼谷观光的背包客提供了温馨舒适的落脚点。建筑位于水牛桥车站边,附近就是知名的假日市场。项目呼应建筑本身的特征,以现代阁楼为概念,带给人独特的居住体验。旅社的前身为一座商住房,SEA ARCHITECT于2015年开始对其进行设计改造,使其变成了现在的样子。建筑为六层楼,面宽4米,进深12米,立面由木材制成,让从水牛桥车站出来的游客可以轻松找到。旅社室内使用木材,混凝土和钢等创造出温馨的空间,为各色各样的群体提供家庭一般的体验。
▼项目外观
▼旅店入口
这个小型旅馆最多可以容纳38人,并提供舒适的服务。客人最关心的是环境的安全。一楼是供客人使用的大堂和自助餐厅,厨房以及公共区域。
▼一层的接待处
▼夹层的公共活动区
▼空间中的细节
夹层楼是用于放松的空间,客人可以在这里玩游戏,看电视,看书等等。二楼到四楼是住宿空间,客人可以在每层楼找到所有的盥洗设施和卫生间。屋顶上的露台是用餐区,可以为预定的客人提供早餐和晚餐。从这里可以尽情享受曼谷的美景。
▼胶囊旅店
▼浴室
▼标准的客房
▼楼梯空间
▼位于楼梯一侧的洗手间
▼天台
▼剖立面
▼平面
客服
消息
收藏
下载
最近




















