查看完整案例

收藏

下载
该项目位于维尔纽斯的Paupys区。 一个新开发的生活区,与老城区有良好的联系,并且该地区内部有舒适的基础设施。
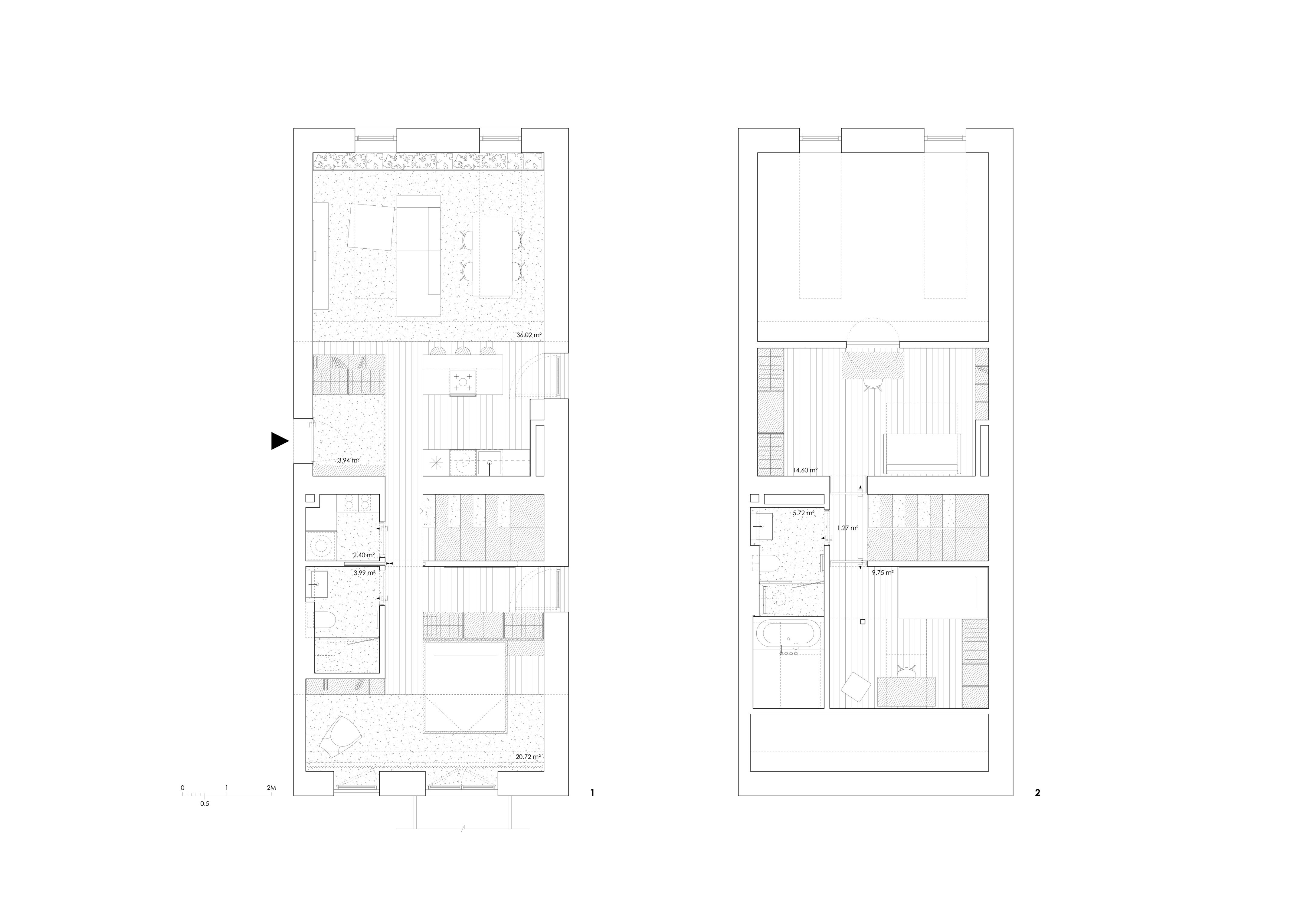
两层楼公寓中的木质组合物让人感觉舒适,带有一点小木屋的感觉。 98平方米的公寓分为上下两层。 一楼设有带厨房、用餐区、起居区的主区域以及带更衣室和浴室的主卧室。 二楼是两间卧室和浴室区。 楼层与礼堂相连,如楼梯。 它不仅仅是楼梯,它还可以作为楼梯多用途的体积元素。
由于隐藏在一楼天花板中的关键工程系统使空间太低,我们在中央部分创造了一个舒适的木世界。 木材的温暖在日常使用中很有吸引力。 公寓两侧的阁楼空间增强了客厅和卧室的空间。 它补偿了高度感。 二楼的圆窗是卧室的窗户。 最初它是一个开放空间的房间,但根据客户的要求,它必须是封闭的私人房间。 因此,它在公寓的整体外观中创造了一个有趣的细节。 卧室的浮动床与地板细节相对应。 床只接触到木头所在的地板,并漂浮在瓷砖上。 公寓整体构成的一些优雅细节。
公寓基本上只使用一种材料,即木材。 因此,周围外壳的白色帆布非常清楚地表明了公寓舒适和压抑的区域。 但这并不令人沮丧,而是在木振兴的帮助下更加充满活力。 客厅的绿化线,为公寓的概念提供了一点对比色。
平面与结构图:
设计师:YCL studio
坐落:Vilnius / Lithuania / 2023
语言:English
客服
消息
收藏
下载
最近



























