查看完整案例

收藏

下载
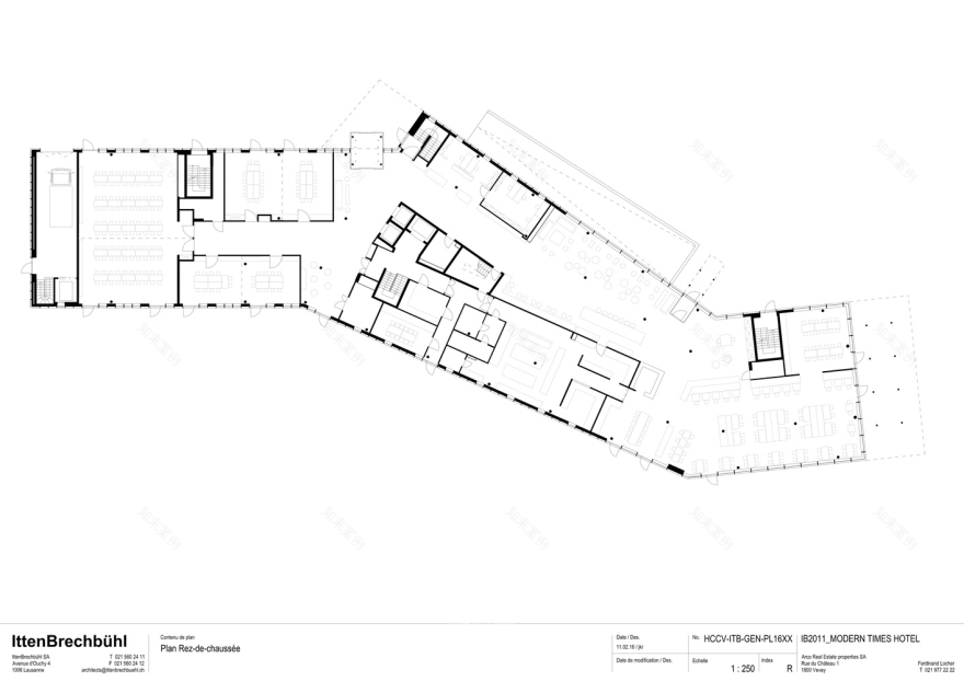
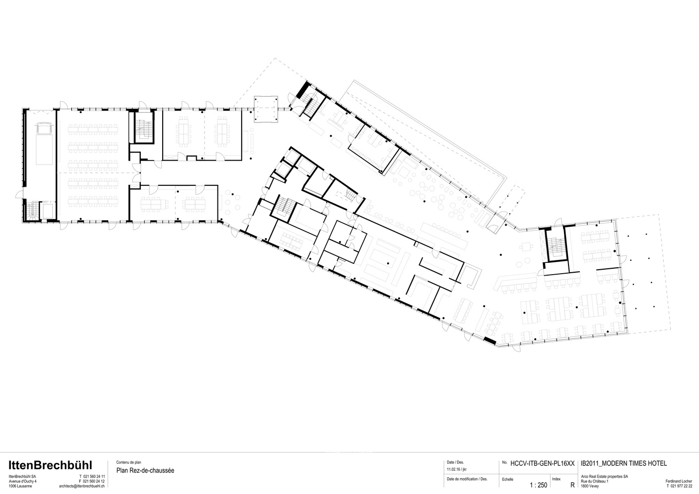
摩登时代(Modern Times)酒店坐拥完美地势,位于俯视瑞士Vevey镇的山丘上,由Itten+Brechbühl建筑事务所主持设计,总承包商HRS实施建设。它毗邻高速公路所以交通方便,与新查理卓别林博物馆仅几步之遥,离Vevey镇中心和著名的UNESCO世界遗产Lavaux葡萄园都很近。得益于它显眼的位置,该建筑仿佛展开双臂欢迎着刚驶下主路的来访者。摩登时代酒店成了该地区的新门面,也是查理卓别林曾来访Vevey镇的象征。
该酒店位于北面主路和南面静谧的未开发的住宅区。通过利用本身地势,与山腰平行而建,该酒店成为界定且保护整个可开发住宅区的建筑。
建筑体块完美地嵌入自然倾斜的地势,充分利用这个条件并身处一个大型的景观花园之中。人们在公园中心可以漫步在地中海色彩之间,来到酒店南面阳台俯瞰的一个小池塘边。该露台配有天棚,坐拥“Rochers de Naye”山丘最美的景观视野。
建筑沿着地块长边展开,而它的立面则只分裂成两个折面,突显酒店的主入口和餐厅的位置。金属装饰如同缎带环绕着建筑,强调水平线条。暖色调的水平玻璃窗板——棕色、铜色和灰色——赋予建筑优雅且冷静的质感。酒店的北立面则是一系列随着观察位置和日光变化而变化的彩板。
酒店首层是一个独特而开放的空间,由主接待台、餐厅、酒吧和会议设施组成。不同的活动在主建筑中独立地进行,使得酒店一年四季充满活力。不同空间的装饰也根据它们特殊的气氛要求有所区别:在接待区域,展示了艺术家Charles Morgan以卓别林的电影“摩登时代(Modern Times)”为灵感创作的一个动态雕塑,向原本以黑白为主色调的设计中加入了一抹金属笔触;在会议室,优雅的实木地板设计;鲜活的紫色、橙色和蓝色赋予酒吧一种纽约休闲吧的感觉;餐厅采用凡尔赛石地板,通过采用米色或灰色带蓝绿色点缀的淡色灯饰,使整个氛围变得更加私密。
客服
消息
收藏
下载
最近





































