查看完整案例

收藏

下载
项目名称:丽景半岛国际酒店 BUENA VISTA PENINSULA HOTEL
项目面积:18000平米
项目地点:中国烟台
设计公司:思锐空间设计有限公司THREE INTERIOR DESIGN CO., LTD
酒店开业时间:2015
项目描述:
中国烟台丽景半岛国际酒店是丽景旗下的一间新酒店。酒店已于2015年揭幕,新酒店位于市中心,共有195间客房,凭着时尚、独特的设计以及丽景品牌的魅力,迅速成为了本地区最热门的精品酒店新宠,并得到了设计界及酒店行业的认可。
项目主创团队
方案:王雪辉,岳伟,闫海收
表现:庄鹏,庞永甲,贾铭莉,蒋莹莹
深化设计:贾志远,杜帅,王洪运,张述方,王桂朋,苗苘
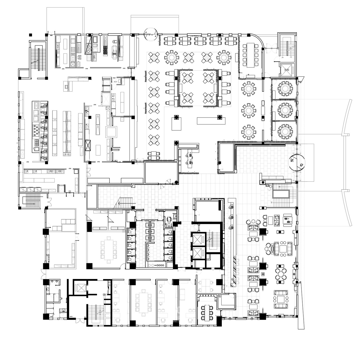
酒店整体设计风格独特,每个区域都有各自的特点。大堂入口处以胶东特有的剪纸为主题,加以艺术提炼并通过灯光色彩变幻将传统文化以时尚的方式呈现出来,结合地面意大利
REX艺术地砖,打造出中国画传统的水墨重彩行云流水的东方意境。
半岛
lounge & bar则给人带来欧式古典特有的氛围,色彩艳丽的现代家具同西方传统家具被设计师安置的错落有致,巧妙的利用了建筑本身的多重穿插空间。接待前台与酒吧台贯穿为一体,一直延伸至大堂深处。
-------- THE TEAHOUSE --------
转过酒吧区便到了藏在半岛深处的茶室,简约的设计手法同外面的大堂吧形成了鲜明的对比,一动一静,恍如入到室外仙境。
位于首层的半岛特色餐厅渔味小厨采用了大量原色透孔耐火砖作为主背景,辅以天花上设计师精心设计的中国民间面模装置艺术,高对比的色彩运用,将视觉艺术与传统文化完美融合。同时也赋予了餐厅独特的个性签名。
餐厅入口墙面的瀑布挂盘在深色的木制墙面衬托下非常抢眼。
裙楼二层的餐饮宴会空间依然延续了半岛餐饮的风格,设有大宴会厅及多个餐饮包房。重新设计的套框图案地毯同天花发光造型相得益彰,设计团队采用了多种不同颜色镜面组合出装饰墙。
PDR DETAIL
质朴的红色大漆包房门把手、墙面的藤编造型、每个房间不同主题的艺术品,给每一位客人带来最真挚的亲切感。
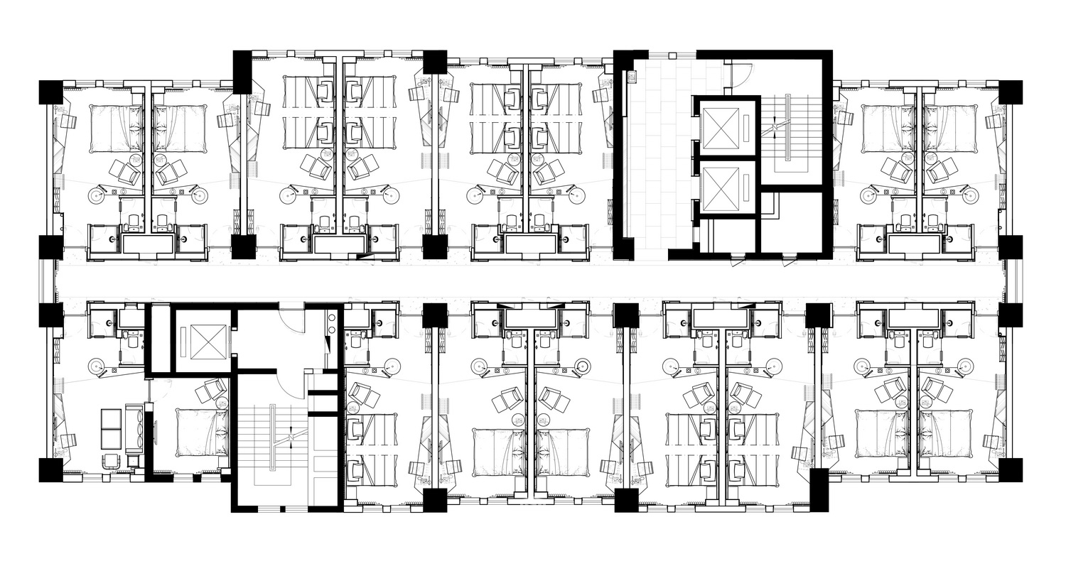
-------- GUESTROOM --------
山和海是这座城市的灵魂,半岛酒店为客人准备了简约时尚舒适的山、海主题风格的客房
GUESTROOM OCEAN
设计师选择了不张扬的灰蓝调墙纸结合漂流木床背板,圆木桶造型洗面台,恰倒好处的诠释了不同的海文化。
GUESTROOM OCEAN
开敞式客房卫生间的设计独具匠心,房间里充满想象力的色彩搭配,家具配饰,设计师细致独到的眼光,每一处都充满了惊喜。
GUESTROOM MOUNTAIN
墙面古朴的木地板搭配天然条石,铜床头杆和充满田园气息的格子布创造出不同的酒店生活方式。
GUESTROOM MOUNTAIN
半岛酒店的裙楼三层提供给客人多间宽敞舒适的半岛精选房,更加开敞的空间、完善的设备、跳跃的色彩能满足住客不同的需求。
客服
消息
收藏
下载
最近










































