查看完整案例

收藏

下载
项目名称:韩国圆形屋顶住宅
位置:韩国
建筑师:Todot建筑师和合作伙伴
圆圆的天空和棱角分明的地面-那句“天是圆的,地是角的。”是中国天文学著作《周髀算经》中的一句老话。古代远东亚洲人认为天空和建筑物之间的边界是曲线。出于这个原因,传统的韩国建筑具有独特的弧形屋顶线条。我们在设计建筑方面采取了哲学的方法,而不是曲线形式本身。该场地的形状是不寻常的三角形,它将一条道路分割成一个尖角。坐在正前方明荣市政厅和Mojeon公园,场地向附近的户外空间开放。尽管该地点位于村庄的入口处,在形式和位置方面非常突出,但它已经被废弃了很长时间,就像一个交通岛一样。客户要求该计划是零售商店与多户住宅混合。沿着场地两侧的交通和行人流,零售商店放置在底层,不干扰人流。
场地的形状是城市轴线和公园边界的产物。我们以交错的方式放置体量,从最尖锐的角落开始,因为我们想在体量之间创建拱顶状的空隙空间,这增加了狭窄场地的深度,并为路人创造了面对零售商店的机会。从路上看不到商店,游客自然会被吸引到拱廊街和中间的商店。该项目旨在创造一个缓慢的场地内流通流,以改善和延长游客的体验,因为两侧的流通渗透到商店。设计的重点是通过熟悉的形式而不是强烈和陌生的形式的扭曲来揭示它的存在。圆形屋顶似乎有一种特殊的能量和氛围,可能会激发人们的灵感,让居民在观看圆形天空时感到舒适。虽然同质空间也很好,但建筑内部和外部的圆形屋顶可以提供不同的体验。
垂直的墙壁和屋顶线无缝连接,简单的线条重复出现,使房子的横截面成为它的立面。桶形拱顶系统是一种古老的石砌体结构,一系列拱门现在被混凝土或钢铁所取代。最近,工程木结构已纳入该系统。为了实现这种具有薄截面的结构,我们设计了2x8s、2x10s和OSB板的组合。坐在底层粗糙的混凝土平台上,光滑的拱门同时创造了屋顶和墙壁,凹进的窗户突出了拱形的屋顶线条。面向天空的半圆形窗户将居民与环境联系起来。这座建筑可以作为一个实体来阅读,但是一旦你走进去,每个房间都感觉像一条长长的隧道,并且作为空间中的独立实体存在。我们希望这些不寻常的空间将提供特殊的体验,该项目将发挥催化剂的作用,振兴该地区。
韩国圆形屋顶住宅外部实景图
韩国圆形屋顶住宅外部实景图
韩国圆形屋顶住宅外部实景图
韩国圆形屋顶住宅外部实景图
韩国圆形屋顶住宅外部实景图
t
韩国圆形屋顶住宅外部实景图
韩国圆形屋顶住宅内部实景图
韩国圆形屋顶住宅内部实景图
韩国圆形屋顶住宅内部实景图
韩国圆形屋顶住宅内部实景图
韩国圆形屋顶住宅内部实景图
韩国圆形屋顶住宅内部实景图
韩国圆形屋顶住宅内部实景图
韩国圆形屋顶住宅内部实景图
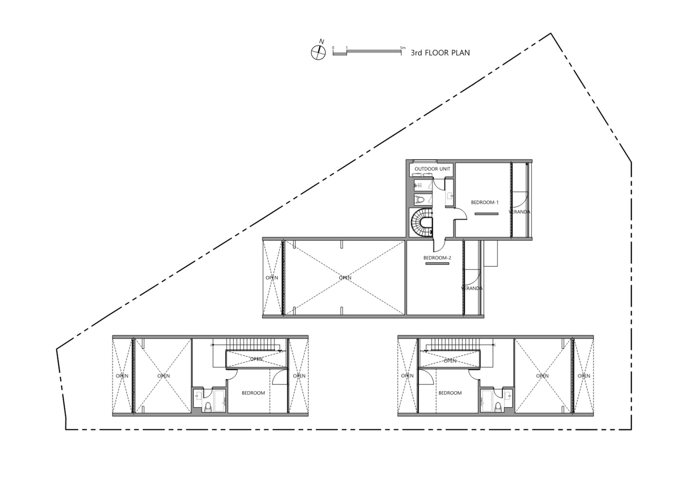
韩国圆形屋顶住宅平面图
韩国圆形屋顶住宅平面图
韩国圆形屋顶住宅平面图
韩国圆形屋顶住宅剖面图
韩国圆形屋顶住宅剖面图
韩国圆形屋顶住宅立面图
韩国圆形屋顶住宅立面图
韩国圆形屋顶住宅立面图
韩国圆形屋顶住宅立面图
客服
消息
收藏
下载
最近


























